Ingatlan360 logo
  • Magánszemélyeknek
  • Közvetítőknek
  • Hirdetésfeladás
  • Árak és hirdetési lehetőségek
  • Mennyit ér az ingatlanom?
  • Ingatlan statisztikák

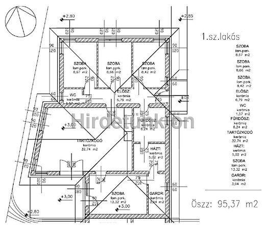
Eladó családi ház Pomáz

Pomáz képe
8
Pomáz 2. képe
Pomáz 3. képe8
242,8 M Ft
1 074 336 Ft / m²
226m2
Alapterület
803m2
Telekterület
10
Szoba
Szobák száma
10
Építés éve
2025
Ingatlan állapota
Felújítandó
Emelet
nincs megadva
Parkolás
nincs megadva
Légkondicionáló
Nincs
Közös költség
nincs megadva
Fűtés
nincs megadva
Fal építési anyaga
nincs megadva
Lift
Nincs
Az ingatlanról:
Pomázon a Meselia déli oldalában, csendes környezetben egy szintes, két önálló lakással rendelkező családi ház eladó.

Az építéssel kapcsolatos paraméterek:
- Tervezett átadás: a szerződést követő egy éven belül 
- hőszivattyús fűtés, padlófűtéssel, radiátorokkal
- magas minőségű hőszigetelés, ZÖLD hitelnek megfelelő energetikai besorolás
- több rétegű, műanyag nyílászárók
- választható belső burkolatok, szaniterek
- riasztó rendszer előkészítés
- 30 nm-es, az amerikai konyhás nappalihoz kapcsolódó terasz
- durva tereprendezés
- kulcsrakész átadás
Finanszírozási lehetőség:
- Zöld hitel kompatibilitás
- CSOK, hitel, illeték mentesség, Áfa visszatérítés igényelhető.
- Az alaprajz igény szerint még módosítható.

A beruházó a környék elismert építési vállalkozója, rengeteg referenciamunkával rendelkezik.

Egyéb jellemzők:

Villanyáram: Bevezetve (230 Volt).
Vízellátás: Van, saját vízórával.
Csatornázás: Közműhálózatba bekötve.
Gázellátás: Nincs a közelben.
Kilátás: Kertre néző.

Töltsd fel ingatlanhirdetésed ingyenesen!

Ingyenes hirdetésfeladás
Havi több mint egymillió ingatlankereső
Egyszerű és gyors hirdetésfeladás
Hirdetésfeladás
eladó
02. Tóth Helga - Hirdetünk ön helyett!Ingatlanreferens
+36 30...
iroda logo
Hirdetünk ön helyett!Iroda további hirdetései

Töltsd fel ingatlanhirdetésed ingyenesen!

Ingyenes hirdetésfeladás
Havi több mint egymillió ingatlankereső
Egyszerű és gyors hirdetésfeladás
Hirdetésfeladás
Bank360Bank360
Személyi kölcsön
Lakáshitel
Bankszámla
Utasbiztosítás
1 000 000 Ft50 000 000 Ft
6 hónap50 hónap