Ingatlan360 logo
  • Magánszemélyeknek
  • Közvetítőknek
  • Hirdetésfeladás
  • Árak és hirdetési lehetőségek
  • Mennyit ér az ingatlanom?
  • Ingatlan statisztikák

Eladó családi ház Siófok

Siófok képe
16
Siófok 2. képe
Siófok 3. képe16
86 M Ft
1 433 333 Ft / m²
60m2
Alapterület
300m2
Telekterület
3
Szoba
Fix 3%-os Otthon Start lakáshitel
Szobák száma
3
Építés éve
nincs megadva
Ingatlan állapota
Új
Emelet
nincs megadva
Parkolás
nincs megadva
Légkondicionáló
Nincs
Közös költség
nincs megadva
Fűtés
Egyéb
Fal építési anyaga
Tégla
Lift
nincs megadva
Az ingatlanról:
FIX 3%-os hitel Magyarország Kormányának támogatásával

Új építésű, kétszobás családi ház Siófok-Sóstón – költözzön be még idén!

Modern, praktikus elosztású otthon várja új tulajdonosát Siófok-Sóstó csendes, rendezett utcájában, új építésű családi házak környezetében. A Balatonparttól mindössze 10 perc sétára, az M7-es autópálya pedig 3 percnyi autóútra található – így a nyugalom és a kiváló közlekedés egyszerre adott.

A két különálló ház saját helyrajzi számmal, külön elektromos kapun juthatunk be.

A legforgalmasabb helyiség, az amerikai konyhás nappali kertoldali falfelülete teljes üvegfelületet kapott. Itt egy nagyméretű bukó-toló ajtó biztosítja a teraszkapcsolatot. Így a nagyméretű teraszról élvezhetjük a belső és a kerti életet is. A kedvező elosztás miatt a kert és terasz egy intim, privát pihenőzónát biztosít.

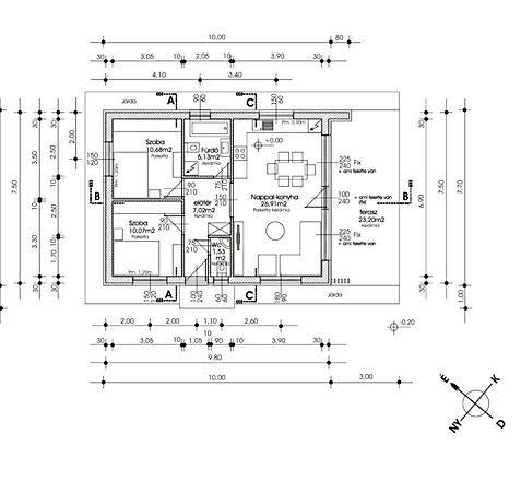
A ház elosztása:

Előtér: 6,8 nm

WC: 1,53 nm

Fürdőszoba: 5 nm

Szobák: 10,5 nm és 9,9 nm

Nappali-konyha-étkező: 26,3 nm, 5 méteres belmagassággal

Terasz: 23,2 nm

A kivitelezés magas műszaki színvonalon, több évtizedes szakmai tapasztalattal történik, garanciális átadással.

Jelenleg még lehetőség van az egyedi igények szerinti kialakításra, legyen szó műszaki tartalomról vagy belső designról.

Műszaki jellemzők:

Hőszivattyús fűtésrendszer 150 literes indirekt víztárolóval

Elektromos kiépítés: klíma kiállás és riasztórendszer előkészítés

Nyílászárók: 5 légkamrás, 3 rétegű VEKA ablakok, motoros vakolótokos redőnyökkel és szúnyoghálóval (kivéve a nappali tolóajtó)

Hőszigetelés: 10 cm EPS homlokzat, 10 cm XPS lábazat, 25 cm purhab a födémre, 10 cm lépésálló EPS a padlóban

Külső kialakítás:

Térkövezett gépkocsi-beálló

Járda körben

Elektromos nagykapu és kiskapu

Termőfölddel feltöltött, gyeptéglával és automata locsolórendszerrel ellátott kert

Extra lehetőség: A vásárláshoz kedvezményes Fundamenta Ingatlan Extra elérhető!

Töltsd fel ingatlanhirdetésed ingyenesen!

Ingyenes hirdetésfeladás
Havi több mint egymillió ingatlankereső
Egyszerű és gyors hirdetésfeladás
Hirdetésfeladás
eladó
Pfeffermann JuditIngatlanreferens
+36 70...
iroda logo
Fundamenta IngatlanIroda további hirdetései

Töltsd fel ingatlanhirdetésed ingyenesen!

Ingyenes hirdetésfeladás
Havi több mint egymillió ingatlankereső
Egyszerű és gyors hirdetésfeladás
Hirdetésfeladás
Bank360Bank360
Személyi kölcsön
Lakáshitel
Bankszámla
Utasbiztosítás
1 000 000 Ft50 000 000 Ft
6 hónap50 hónap