Ingatlan360 logo
  • Magánszemélyeknek
  • Közvetítőknek
  • Hirdetésfeladás
  • Árak és hirdetési lehetőségek
  • Mennyit ér az ingatlanom?
  • Ingatlan statisztikák

Eladó családi ház Siófok

Siófok képe
9
Siófok 2. képe
Siófok 3. képe9
129 M Ft
786 585 Ft / m²
164m2
Alapterület
718m2
Telekterület
4
Szoba
Fix 3%-os Otthon Start lakáshitel
Szobák száma
4
Építés éve
1956
Ingatlan állapota
Felújított
Emelet
nincs megadva
Parkolás
nincs megadva
Légkondicionáló
Van
Közös költség
nincs megadva
Fűtés
nincs megadva
Fal építési anyaga
nincs megadva
Lift
Nincs
Az ingatlanról:
Referens: SA14/103605
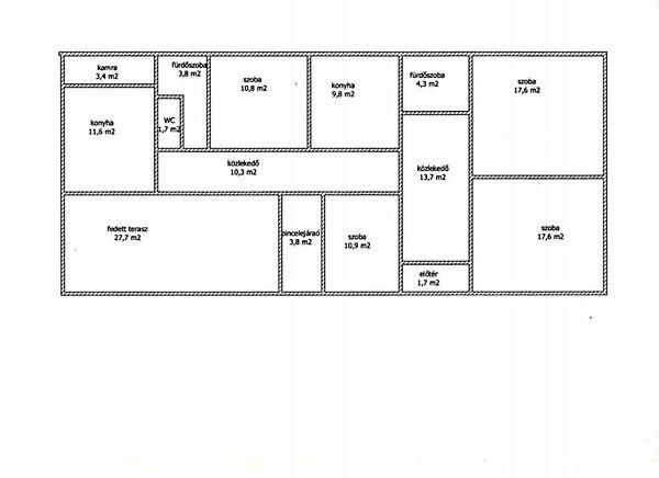
Eladásra kínálunk Siófokon egy igényesen felújított családi házat. Nyaraltatásra lett kialakítva, de alkalmas nagy család vagy több generáció együttélésére is. 4 szobát, 2 fürdőszobát, 1 beépített teraszt valamint szaunát, jakuzzit is tartalmaz. A telken található még egy garázs és több tárolóhelyiség is. Falazata tégla, tetőhéjazata pala, a terasz fedele bituzsindely. A műanyag és fa nyílászárók hőszigeteltek. 380 V-os elektromos hálózattal is rendelkezik. A melegvizet villanybojler, a fűtést központi gázkazán szolgáltatja. Az épületben hűtő- fűtő klímaberendezések is szolgálják a kényelmet.
A ház teljes berendezéssel kerül eladásra, ezek benne vannak a vételárban.
Az ingatlan a városközpont közelében fekszik, boltok, orvosi rendelő, iskola, óvoda, buszmegálló a közelben. A Balaton part 500 m távolságban.
Ha felkeltettük érdeklődését, keressen bizalommal!

Töltsd fel ingatlanhirdetésed ingyenesen!

Ingyenes hirdetésfeladás
Havi több mint egymillió ingatlankereső
Egyszerű és gyors hirdetésfeladás
Hirdetésfeladás
eladó
Swierczek Alexandra Bp. XIV. Ilka utcai irodaIngatlanreferens
+36 70...
iroda logo
Borka Tamás Irodavezető Bp., XIV., Ilka utcai irodaIroda további hirdetései

Töltsd fel ingatlanhirdetésed ingyenesen!

Ingyenes hirdetésfeladás
Havi több mint egymillió ingatlankereső
Egyszerű és gyors hirdetésfeladás
Hirdetésfeladás
Bank360Bank360
Személyi kölcsön
Lakáshitel
Bankszámla
Utasbiztosítás
1 000 000 Ft50 000 000 Ft
6 hónap50 hónap