Ingatlan360 logo
  • Magánszemélyeknek
  • Közvetítőknek
  • Hirdetésfeladás
  • Árak és hirdetési lehetőségek
  • Mennyit ér az ingatlanom?
  • Ingatlan statisztikák

Eladó ikerház Siófok

Siófok képe
15
Siófok 2. képe
Siófok 3. képe15
85 M Ft
1 250 000 Ft / m²
68m2
Alapterület
375m2
Telekterület
4
Szoba
Fix 3%-os Otthon Start lakáshitel
Szobák száma
4
Építés éve
1969
Ingatlan állapota
Felújított
Emelet
Földszint
Parkolás
Parkolóház
Légkondicionáló
Nincs
Közös költség
nincs megadva
Fűtés
Elektromos
Fal építési anyaga
Tégla
Lift
Nincs
Az ingatlanról:
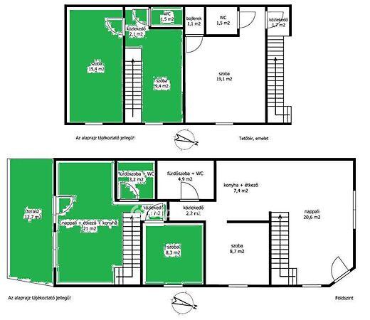
Balaton Déli part Siófok 68 m2 ikerházrész eladó Az önálló helyrajzi számú ingatlanban két apartman került kialakításra A 4 éve teljeskörűen felújított 62 m2 es utcafronti lakóteret növeli egy hangulatos 13 m2 es terasz a jól megtervezett udvaron pedig füves virágos kert 50 m2 es térkövezett terület valamint garázs és egyéb melléképület is helyet kapott így minden biztosított a mindennapi élet teendőihez vagy a pihentető feltöltő nyaraláshoz Az ingatlan fűtéséről és hűtéséről távolról irányítható klímák gondoskodnak továbbá minden szobában megoldott az elektromos fűtőpanel működtetése a telekre bevezetett gáz pedig a hagyományos fűtési rendszer kialakítását is lehetővé teszi A két szintes apartmanok igény szerint összenyithatók így akár egy nagy család részére is ideális lehetőség Az ingatlan elhelyezkedésének és kialakításának köszönhetően alkalmas akár többgenerációs családoknak is állandó lakhatásra vagy nyaralásra de befektetésként részben vagy egészben kiadásra is kiváló ritka lehetőség Óvoda iskola tömegközlekedés bevásárlási lehetőség egészségügyi intézmény a Belváros a Kikötő könnyen elérhető a Szabadstrand pedig csak pár perc séta Bővebb információért keressen telefonon

Töltsd fel ingatlanhirdetésed ingyenesen!

Ingyenes hirdetésfeladás
Havi több mint egymillió ingatlankereső
Egyszerű és gyors hirdetésfeladás
Hirdetésfeladás
eladó
Micskey Marianna VandaIngatlanreferens
+36 30...
iroda logo
Gárdony Bóné Kálmán utca 12 - OTP Ingatlanpont IrodaIroda további hirdetései

Töltsd fel ingatlanhirdetésed ingyenesen!

Ingyenes hirdetésfeladás
Havi több mint egymillió ingatlankereső
Egyszerű és gyors hirdetésfeladás
Hirdetésfeladás
Bank360Bank360
Személyi kölcsön
Lakáshitel
Bankszámla
Utasbiztosítás
1 000 000 Ft50 000 000 Ft
6 hónap50 hónap