Ingatlan360 logo
  • Magánszemélyeknek
  • Közvetítőknek
  • Hirdetésfeladás
  • Árak és hirdetési lehetőségek
  • Mennyit ér az ingatlanom?
  • Ingatlan statisztikák

Eladó családi ház Sümeg

Sümeg képe
17
Sümeg 2. képe
Sümeg 3. képe17
24,9 M Ft
311 250 Ft / m²
80m2
Alapterület
243m2
Telekterület
3
Szoba
Fix 3%-os Otthon Start lakáshitel
Szobák száma
3
Építés éve
1970
Ingatlan állapota
Felújítandó
Emelet
nincs megadva
Parkolás
Nincs
Légkondicionáló
Nincs
Közös költség
nincs megadva
Fűtés
nincs megadva
Fal építési anyaga
nincs megadva
Lift
Nincs
Az ingatlanról:
Legyen Öné ez a felújításra váró nagyon jó elosztással rendelkező családi ház Sümeg belvárosában.
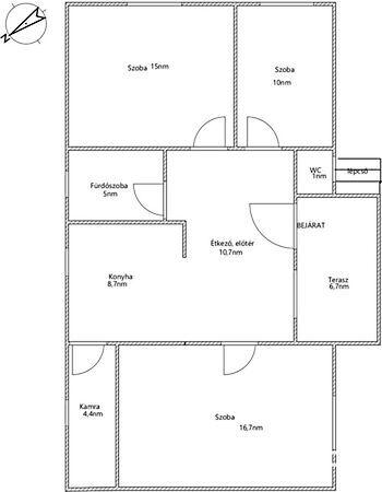
Az ingatlanba egy nagy méretű teraszról jutunk be a világos étkező és előtér együttesébe, ahonnan szemben a konyha és mellette a fürdőszoba, balra a konyhától a tágas nappali, - mely egybenyitható az étkezővel és a konyhával, - jobbra az előtérből pedig a két hálószoba nyílik. A ház elosztásából adódóan funkcionálisan jól elválasztható területekre osztható a ház. A tetőtér beépíthető, a betongerendás kefnis födém ezt lehetővé teszi. A padlásfeljáró jelenleg a kamrából nyílik, mely a konyhából megközelíthető, azonban a kamra másik oldalán a nappali található, melynek falát egybe lehet nyitni a tetőtérbe vezető feljárási lehetőséggel. Így az épület még tágasabb otthonná alakítható. Legyen Ön az, aki megálmodja és kialakítja otthonát ebben a sok lehetőséget rejtő ingatlanban.
A város központi és utcafronti elhelyezkedése lehetővé teszi akár kereskedelmi, vagy egyéb tevékenység folytatására is az ingatlant.
Jelenlegi állapota felújítandó. Az épületben villany, víz, csatorna és gáz bevezetése megtörtént. Jelenlegi tulajdonosai a gázórát leszereltették, mivel nem használták az épületet. A fürdőszoba szaniterei a zuhanyzó kivételével megvannak, helyre állíthatók, a zuhanykabin cseréje szükséges. A szobák laminált padlósak jelenleg, de felszedésük szükséges. A nyílászárók anyaga fa és műanyag, de mindegyik hő és hangszigetelt. Az ablakokon zsalugáterek biztosítják az ablakok külső védelmét és árnyékolást. A terasz fedett, a külső korlátok fémből készültek. Az épület beton alapon nyugszik, falazata B30-as tégla, a födém betongerendás kefnis, a tetőtérben szigetelő betonnal. Nyeregtetős fa tetőszerkezet, rajta pala fedéssel. Az épületben három jelenleg is működő kémény lehetőséget nyújt arra, is, hogy bárhol hangulatos kandallót helyezzünk el.
Az udvar teljesen zárt, az épület mögött épült házban lakóknak a bejáróra szolgalmi jog került bejegyzésre. Az épület mögött lévő zárt terület alkalmas akár garázs, vagy grillezőhely kialakítására is.
Várom hívását, jöjjön el, nézze meg, legyen az Öné! beépíthető tetőtér, csendes utca, jó közlekedés, közeli belváros, külön fürdő és wc, terasz, udvari gépjárműbeálló lehetőség
(További képekért és információkért kérem hívjon!)

Töltsd fel ingatlanhirdetésed ingyenesen!

Ingyenes hirdetésfeladás
Havi több mint egymillió ingatlankereső
Egyszerű és gyors hirdetésfeladás
Hirdetésfeladás
eladó
Sibak AndrásIngatlanreferens
+36 70...
iroda logo
Városi IngatlanirodaIroda további hirdetései

Töltsd fel ingatlanhirdetésed ingyenesen!

Ingyenes hirdetésfeladás
Havi több mint egymillió ingatlankereső
Egyszerű és gyors hirdetésfeladás
Hirdetésfeladás
Bank360Bank360
Személyi kölcsön
Lakáshitel
Bankszámla
Utasbiztosítás
1 000 000 Ft50 000 000 Ft
6 hónap50 hónap