Ingatlan360 logo
  • Magánszemélyeknek
  • Közvetítőknek
  • Hirdetésfeladás
  • Árak és hirdetési lehetőségek
  • Mennyit ér az ingatlanom?
  • Ingatlan statisztikák

Eladó családi ház Szászberek

Szászberek képe
8
Szászberek 2. képe
Szászberek 3. képe8
88 M Ft
586 667 Ft / m²
150m2
Alapterület
627m2
Telekterület
5
Szoba
Fix 3%-os Otthon Start lakáshitel
Szobák száma
5
Építés éve
2024
Ingatlan állapota
nincs megadva
Emelet
nincs megadva
Parkolás
nincs megadva
Légkondicionáló
Van
Közös költség
nincs megadva
Fűtés
Cirkófűtés
Fal építési anyaga
Tégla
Lift
Nincs
Az ingatlanról:
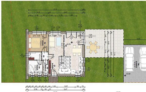
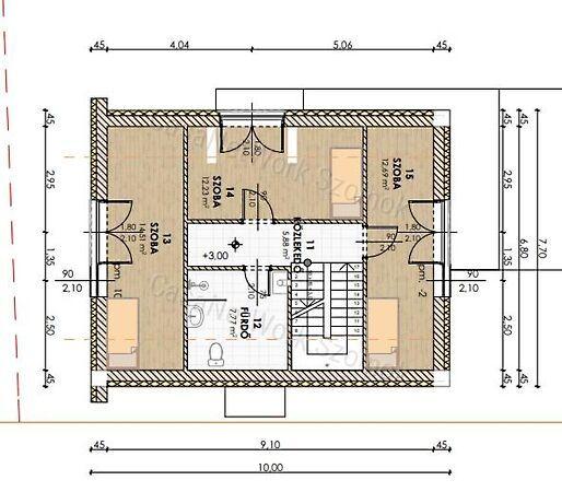
A Szolnoki CasaNetWork Ingatlaniroda megvételre kínál Szászbereken tégla építésű családi házat! Falusi CSOK igénybevehető!Szászberek dinamikusan fejlődő település, Szolnoktól 20 km-re fekszik, az M4-s autóút néhány perc menetidővel elérhető.A közbiztonság kiemelkedően jó, a településen magas színvonalú általános iskola működik, óvoda, bölcsőde szintén van a településen.Mind a műszaki, technológiai megvalósítás, mind a belső terek kialakítása a mai kor igényeinek, elvárásainak megfelelő.A hirdetési ár 50 % befizetése szerződéskötéskor.A lakások átadási határideje: szerződéskötést követően 1 év.Néhány jellemző az ingatlanról- kétszintes, tégla építésű családi ház 130 m2 alapterülettel, 20 m2 terasszal és 36 m2 garázzsal- amerikai konyhás nappali, 4 szoba, dupla komfort- hőszigetelt műanyag nyílászárók- padlófűtés (kondenzációs kazán)- belső burkolatok a tulajdonos által katalógusból választvaRészletes műszaki leírás irodánkban elérhető!Amennyiben a hirdetésben szereplő új építésű társasházi lakás, vagy bármely, a kínálatunkban található ingatlan felkeltette érdeklődését, hívjon bizalommal!|A hirdetésben szereplő információk a megbízótól kapott adatok alapján készültek.|Irodánk teljes körű szolgáltatással áll ügyfelei rendelkezésére: hitelügyintézés, ügyvédi szolgáltatás, ingatlan értékbecslés, energetikai tanúsítvány készítése.CasaNetWork - Ingatlanban otthon vagyunk!

Töltsd fel ingatlanhirdetésed ingyenesen!

Ingyenes hirdetésfeladás
Havi több mint egymillió ingatlankereső
Egyszerű és gyors hirdetésfeladás
Hirdetésfeladás
eladó
Nagy ViktóriaIngatlanreferens
+36 20...
iroda logo
CasaNetWork SzolnokIroda további hirdetései

Töltsd fel ingatlanhirdetésed ingyenesen!

Ingyenes hirdetésfeladás
Havi több mint egymillió ingatlankereső
Egyszerű és gyors hirdetésfeladás
Hirdetésfeladás
Bank360Bank360
Személyi kölcsön
Lakáshitel
Bankszámla
Utasbiztosítás
1 000 000 Ft50 000 000 Ft
6 hónap50 hónap