Ingatlan360 logo
  • Magánszemélyeknek
  • Közvetítőknek
  • Hirdetésfeladás
  • Árak és hirdetési lehetőségek
  • Mennyit ér az ingatlanom?
  • Ingatlan statisztikák

Eladó családi ház Szeged

Szeged képe
6
Szeged 2. képe
Szeged 3. képe6
115 M Ft
982 897 Ft / m²
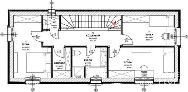
117m2
Alapterület
300m2
Telekterület
5
Szoba
Fix 3%-os Otthon Start lakáshitel
Szobák száma
5
Építés éve
2025
Ingatlan állapota
Új
Emelet
2.
Parkolás
nincs megadva
Légkondicionáló
Nincs
Közös költség
nincs megadva
Fűtés
nincs megadva
Fal építési anyaga
nincs megadva
Lift
Nincs
Az ingatlanról:
Home and People azonosító: 22272

Dudás Dóra 

 

Amennyiben kollégánk elfoglalt, kérjen visszahívást sms-ben a as telefonszámon!

 

117m2 
cirkófűtés

napfényes


4 szoba+ amerikai konyhás nappali+2 fürdő-3wc káddal és zuhanyzóval+külön vendég wc+előszoba 


Külső teherhordó falak 30 cm-es égetett kerámia falazóblokk - 12 cm külső homlokzati grafitos polisztirol szigetelés EPS, 10 cm lábazati hőszigetelés XPS


földszint felett vasbeton födém, emelet felett könnyűszerkezetes födém tűzgátló gipszkartonnal - hőszigetelt födém 25cm-s kőzetgyapot szigeteléssel, 1 réteg párazáró fóliával.


3 rétegű műanyag nyílászáró


jó megközelíthetőség


300m2 rendezett telek


 

Ajándék 17m2 terasz a 117m2 felett az árban!!!!

 

Irányár: 114. 999 000,- FT szerkezetkész ár!!!             Kulcsrakész: 124.999.000,-Ft !!!

 

Home and People azonosító: 22272

Amennyiben felkeltette érdeklődését hívjon bizalommal!

Dudás Dóra

Vezetőreferens

 

Ha további kérdése van az ingatlannal kapcsolatban, hívja a as telefonszámot, vagy érdeklődjön az Home and People  Ingatlanügynökség szegedi irodájában a Bécsi krt. 18.

Töltsd fel ingatlanhirdetésed ingyenesen!

Ingyenes hirdetésfeladás
Havi több mint egymillió ingatlankereső
Egyszerű és gyors hirdetésfeladás
Hirdetésfeladás
eladó
Dudás DóraIngatlanreferens
+36 70...

Töltsd fel ingatlanhirdetésed ingyenesen!

Ingyenes hirdetésfeladás
Havi több mint egymillió ingatlankereső
Egyszerű és gyors hirdetésfeladás
Hirdetésfeladás
Bank360Bank360
Személyi kölcsön
Lakáshitel
Bankszámla
Utasbiztosítás
1 000 000 Ft50 000 000 Ft
6 hónap50 hónap