Ingatlan360 logo
  • Magánszemélyeknek
  • Közvetítőknek
  • Hirdetésfeladás
  • Árak és hirdetési lehetőségek
  • Mennyit ér az ingatlanom?
  • Ingatlan statisztikák

Eladó családi ház Magyar, Szeged

Magyar, Szeged képe
15
Magyar, Szeged 2. képe
Magyar, Szeged 3. képe15
85,5 M Ft
427 500 Ft / m²
200m2
Alapterület
1653m2
Telekterület
4
Szoba
Fix 3%-os Otthon Start lakáshitel
Szobák száma
4
Építés éve
1974
Ingatlan állapota
Jó állapotú
Emelet
Földszint
Parkolás
nincs megadva
Légkondicionáló
Nincs
Közös költség
nincs megadva
Fűtés
Cirkófűtés
Fal építési anyaga
Tégla
Lift
Nincs
Az ingatlanról:
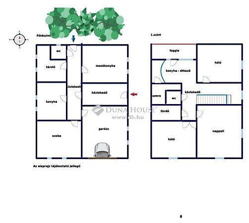
NAGYCSALÁDOSOK ÖSSZEKÖLTÖZŐK FIGYELMÉBE Szeged Szőreg frekventált részén kínálok megvételre egy az 1974 ben épült családi házat Az épület 1670 m2 es területen helyezkedik el Az aszfaltozott utcáról nyíló kapun keresztül juthatunk be a rendezett parkosított udvarra A 192 m2 es épület belső kétszintes praktikusan elrendezett lakótérből áll Felújítás keretén belül: 2008 ban víz villany gázvezetékek cseréje megtörtént 2016 ban a földszinti rész új burkolatot kapott Térelosztása az alábbi: Az épület földszintjén szoba konyha háztartási helyiség tároló wc közlekedő és az utcáról nyíló 22 m2 es garázs került kialakításra Az emeletre fa lépcső vezet a közlekedőből nyílnak a helyiségek: a 3 külön bejáratú szoba konyha – étkező fürdő és a szeparált mellékhelyiség A környezettel való kapcsolatot az étkezőből nyíló kertre néző 6 m2 es loggia biztosítja Az összes helyiség tágas kellemes életérzést nyújt A nyílászárók redőnnyel szúnyoghálóval felszereltek A szobák parkettával a többi helyiség járólappal burkolt Falai festettek fűtése egyedi gáz cirkó radiátor hőleadókkal A biztonságról riasztórendszer gondoskodik A kerítéssel körbe kerített telek füvesített termő gyümölcsfákkal szőlővel beültetett a lakóépületen kívül szerszámos bódé verem is található kert fúrt kút a telek összközműves víz villany gáz csatorna az ingatlan aszfaltozott utcában található Elhelyezkedés szempontjából kiváló A környéken minden szolgáltató egység pár perc sétával elérhető: iskola óvoda gyógyszertár orvosi rendelő élelmiszerbolt húsbolt posta gazdabolt szolárium pizzéria cukrászda stb Szeged Belvárosától autóval kb 15 perc útra található Tömegközlekedés is kiváló hiszen a közelben áll meg a 60Y os autóbusz Nagycsaládosoknak valamint két generáció együttélésére is kiválóan alkalmas További információért megtekintésért forduljon hozzám bizalommal

Töltsd fel ingatlanhirdetésed ingyenesen!

Ingyenes hirdetésfeladás
Havi több mint egymillió ingatlankereső
Egyszerű és gyors hirdetésfeladás
Hirdetésfeladás
eladó
Koloh ViktorIngatlanreferens
+36 30...
iroda logo
Kecskemét, Jókai utca 5.Iroda további hirdetései

Töltsd fel ingatlanhirdetésed ingyenesen!

Ingyenes hirdetésfeladás
Havi több mint egymillió ingatlankereső
Egyszerű és gyors hirdetésfeladás
Hirdetésfeladás
Bank360Bank360
Személyi kölcsön
Lakáshitel
Bankszámla
Utasbiztosítás
1 000 000 Ft50 000 000 Ft
6 hónap50 hónap