Ingatlan360 logo
  • Magánszemélyeknek
  • Közvetítőknek
  • Hirdetésfeladás
  • Árak és hirdetési lehetőségek
  • Mennyit ér az ingatlanom?
  • Ingatlan statisztikák

Eladó ikerház Duda, Szeged

Duda, Szeged képe
16
Duda, Szeged 2. képe
Duda, Szeged 3. képe16
89 M Ft
729 508 Ft / m²
122m2
Alapterület
256m2
Telekterület
3
Szoba
Fix 3%-os Otthon Start lakáshitel
Szobák száma
3
Építés éve
nincs megadva
Ingatlan állapota
Felújított
Emelet
nincs megadva
Parkolás
Udvarban
Légkondicionáló
Nincs
Közös költség
nincs megadva
Fűtés
Cirkófűtés
Fal építési anyaga
Tégla
Lift
Nincs
Az ingatlanról:
ELADÓ IKERHÁZ ÚJPETŐFITELEPEN

Szeged dinamikusan fejlődő és kiváló közlekedési adottságokkal rendelkező, de mégis csendes, békés, kertvárosias hangulatot árasztó városrészében eladó ez az 1981-ben épült ikerház egyik fele.

Az ingatlan 511 m2-es telken található, a 2 épületrész teljesen tükörképe egymásnak, használati megosztással rendelkezik így hitelezhető is.

A jobb oldali rész, ami eladóvá vált 2009-ben teljes körű felújításon esett át, a nyílászárók korszerű hőszigeteltre lettek cserélve, a külső homlokzat 5 cm-es szigetelést kapott, a villamos hálózat is fel lett újítva, 3 fázis is van. A padlástérben elkezdődött még egy szobának a kialakítása, de ezt majd az új tulajdonos igény szerint fejezheti be.

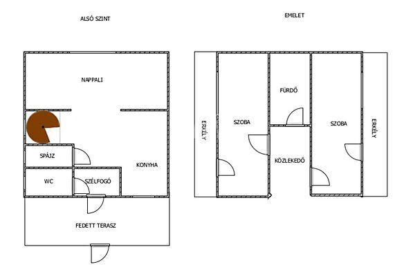
A fő épület 122 m2, belső 2 szintes, az alsó részen egy 20 m2-es fedett teraszról jutunk a házba, ahol wc, és spájz található a bejáratnál. az alsó szinten egy nagy közösségi tér lett kialakítva, itt kaphat helyet a konyha ( kialakítása az új tulajdonosra vár) és az étkező illetve a nappali.
Az emeleti részen 2 hálószoba, mindkettő erkély kapcsolattal és egy fördőszoba kapott helyet.

Az udvar hátsó részében található egy melléképület, szintén magosztva ahogy az ikerház is, itt egy beépített teraszról egy konyhába, abból pedig egy szobába juthatunk, ami akár egy külön lakrésze is lehet idősebb szülőnek, vagy önállósódni vágyó gyermeknek.

Minkét lakrész fűtéséről Ariston típusú vadonatúj kazán gondoskodik, radiátoros hőleadókkal.

Kiváló választás lehet gyermekes családnak, vagy több generáció összeköltözésére.

Az ingatlan tehermentes, rövid határidővel költözhető!

NÉZZE MEG AJÁNLATUNKAT SZEMÉLYESEN IS! ...TOVÁBBI, TÖBBEZRES INGATLAN KÍNÁLAT: www.gdn-ingatlan.hu - GDN azonosító: 377810

Töltsd fel ingatlanhirdetésed ingyenesen!

Ingyenes hirdetésfeladás
Havi több mint egymillió ingatlankereső
Egyszerű és gyors hirdetésfeladás
Hirdetésfeladás
eladó
Szil GabriellaIngatlanreferens
+36 30...
iroda logo
GDN IngatlanhálózatIroda további hirdetései

Töltsd fel ingatlanhirdetésed ingyenesen!

Ingyenes hirdetésfeladás
Havi több mint egymillió ingatlankereső
Egyszerű és gyors hirdetésfeladás
Hirdetésfeladás
Bank360Bank360
Személyi kölcsön
Lakáshitel
Bankszámla
Utasbiztosítás
1 000 000 Ft50 000 000 Ft
6 hónap50 hónap