Ingatlan360 logo
  • Magánszemélyeknek
  • Közvetítőknek
  • Hirdetésfeladás
  • Árak és hirdetési lehetőségek
  • Mennyit ér az ingatlanom?
  • Ingatlan statisztikák

Eladó családi ház Tiszaug

Tiszaug képe
9
Tiszaug 2. képe
Tiszaug 3. képe9
24,9 M Ft
230 556 Ft / m²
108m2
Alapterület
1170m2
Telekterület
5
Szoba
Fix 3%-os Otthon Start lakáshitel
Szobák száma
5
Építés éve
2001
Ingatlan állapota
Jó állapotú
Emelet
Földszint
Parkolás
nincs megadva
Légkondicionáló
Nincs
Közös költség
nincs megadva
Fűtés
Cirkófűtés
Fal építési anyaga
Tégla
Lift
Nincs
Az ingatlanról:
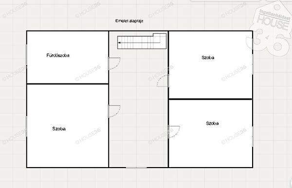
Tiszaugon eladó egy nagy családi ház Tiszaug egy csodálatos turista és horgász paradicsom a Tisza és a Holt Tisza ölelésében A ház főbb tulajdonságai: 5 szoba 2 fürdőszoba összközműves 108 26 m2 lakótér 1170 m2 bekerített telek ​ ​A HOUSE36 kínálatában lévő összes ingatlannal kapcsolatban tudok felvilágosítást nyújtani Szolgáltatásaink kereső ügyfeleink részére ingyenesek Figyelem az adatlap megbízónktól kapott adatok alapján készült pontosságáért felelősséget nem tudunk vállalni Az iroda legfrissebb aktuális kínálatát a HOUSE36 saját weboldalán találja

Töltsd fel ingatlanhirdetésed ingyenesen!

Ingyenes hirdetésfeladás
Havi több mint egymillió ingatlankereső
Egyszerű és gyors hirdetésfeladás
Hirdetésfeladás
eladó
Kocsis ZsuzsannaIngatlanreferens
+36 70...
iroda logo
HOUSE36 IngatlanhálózatIroda további hirdetései

Töltsd fel ingatlanhirdetésed ingyenesen!

Ingyenes hirdetésfeladás
Havi több mint egymillió ingatlankereső
Egyszerű és gyors hirdetésfeladás
Hirdetésfeladás
Bank360Bank360
Személyi kölcsön
Lakáshitel
Bankszámla
Utasbiztosítás
1 000 000 Ft50 000 000 Ft
6 hónap50 hónap