Ingatlan360 logo
  • Magánszemélyeknek
  • Közvetítőknek
  • Hirdetésfeladás
  • Árak és hirdetési lehetőségek
  • Mennyit ér az ingatlanom?
  • Ingatlan statisztikák

Eladó családi ház Tiszavasvári

Tiszavasvári képe
14
Tiszavasvári 2. képe
Tiszavasvári 3. képe14
36,9 M Ft
205 000 Ft / m²
180m2
Alapterület
1042m2
Telekterület
5
Szoba
Fix 3%-os Otthon Start lakáshitel
Szobák száma
5
Építés éve
1985
Ingatlan állapota
Jó állapotú
Emelet
Földszint
Parkolás
Udvarban
Légkondicionáló
Nincs
Közös költség
nincs megadva
Fűtés
Cirkófűtés
Fal építési anyaga
Tégla
Lift
Nincs
Az ingatlanról:
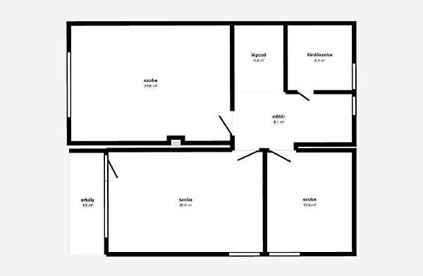
Eladó Tiszavasvári központi részén egy 180 négyzetméteres kétszintes családi ház tágas 1042 négyzetméteres telken Az ingatlan tégla falazatú masszív szerkezetű új lemeztetővel ellátott így hosszú távon is megbízható otthont kínál A házban három szoba és két félszoba található ami ideális nagyobb családok számára is A kert rendezett gondozott konyhakerttel ahol akár saját zöldségek is termeszthetők A környék jó elhelyezkedésű csendes és biztonságos mégis közel minden fontos szolgáltatáshoz Kényelmes tágas otthon Tiszavasvári egyik legkedveltebb részén OTP Banki hátterünknek köszönhetően finanszírozási igényekben pl Otthon Start Hitelprogram Babaváró Falusi CSOK CSOK Plusz Lakáshitel Személyi kölcsön stb illetve biztosítások tekintetében is díjmentesen soron kívüli ügyintézéssel segítem ügyfeleim Referenciaszám:M318263

Töltsd fel ingatlanhirdetésed ingyenesen!

Ingyenes hirdetésfeladás
Havi több mint egymillió ingatlankereső
Egyszerű és gyors hirdetésfeladás
Hirdetésfeladás
eladó
Lipcseiné Kozák JuditIngatlanreferens
+36 20...
iroda logo
Nyíregyháza Bocskai utca 18-20 - OTP Ingatlanpont IrodaIroda további hirdetései

Töltsd fel ingatlanhirdetésed ingyenesen!

Ingyenes hirdetésfeladás
Havi több mint egymillió ingatlankereső
Egyszerű és gyors hirdetésfeladás
Hirdetésfeladás
Bank360Bank360
Személyi kölcsön
Lakáshitel
Bankszámla
Utasbiztosítás
1 000 000 Ft50 000 000 Ft
6 hónap50 hónap