Ingatlan360 logo
  • Magánszemélyeknek
  • Közvetítőknek
  • Hirdetésfeladás
  • Árak és hirdetési lehetőségek
  • Mennyit ér az ingatlanom?
  • Ingatlan statisztikák

Eladó családi ház Családi házas, Törökbálint

Családi házas, Törökbálint képe
41
Családi házas, Törökbálint 2. képe
Családi házas, Törökbálint 3. képe41
320 M Ft
1 006 289 Ft / m²
318m2
Alapterület
528m2
Telekterület
9
Szoba
Szobák száma
9
Építés éve
2018
Ingatlan állapota
Újszerű
Emelet
nincs megadva
Parkolás
nincs megadva
Légkondicionáló
Nincs
Közös költség
nincs megadva
Fűtés
Elektromos
Fal építési anyaga
nincs megadva
Lift
Nincs
Az ingatlanról:
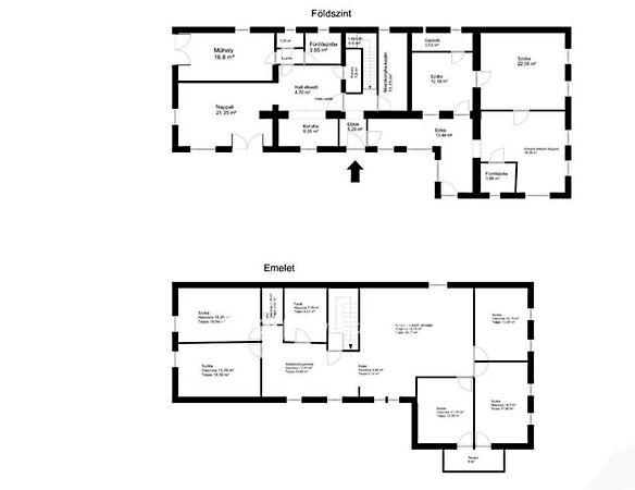
Törökbálint egyik csendes, kertvárosi részén eladó egy három lakásos, külön bejáratú családi ház, amely kiváló elosztású és remek adottságokkal rendelkezik.
Az ingatlan 528 m?-es, déli fekvésű telken fekszik, ahol gondozott kert, automata öntözőrendszer, ciszterna, kút, valamint négyállásos, fedett gépkocsibeálló található.
Földszinten található 2 lakás, amelyben konyha-étkező, két szoba, fürdőszoba, külön wc, kamra és mosókonyha található.
Illetve a második lakásban konyha-étkező, 2 szoba, gardrób, fürdőszoba, dolgozórész található.
Az emeleti lakásban amerikai konyhás nappali, 5 szoba, gardrób és közlekedő, fürdőszoba és külön WC található. Az otthon melegéről cirkós gázfűtés és infrapanel, klímaberendezés gondoskodik.
Az ingatlan egy nyugodt környezetben helyezkedik el, akörnyék dombos, erdős, ideális kirándulásokhoz, sétákhoz.
Törökbálinton a boltok, bevásárlóközpont, gyógyszertár, iskola, óvoda és egyéb intézmények könnyen elérhetők.
Az M7-es autópálya autóval 5 perc, az M4-es metró kelenföldi végállomása pedig kb. 10 perc alatt elérhető. Buszmegálló, bolt, iskola és orvosi rendelő pár perc sétára található.
Ez az ingatlan ideális választás lehet nagycsaládosoknak, összeköltözőknek, együttélésre vágyóknak.Vevő ügyfelelinket díjmentes hiteltanácsadással és teljes körű ügyintézéssel segítjük az ingatlan megvásárlásában, a piaci hiteleknél kedvezményesebb konstrukcióval lepjük meg Önt.Bővebb információért keressen bizalommal.

Töltsd fel ingatlanhirdetésed ingyenesen!

Ingyenes hirdetésfeladás
Havi több mint egymillió ingatlankereső
Egyszerű és gyors hirdetésfeladás
Hirdetésfeladás
eladó
Verebes SzilviaIngatlanreferens
+36 50...

Töltsd fel ingatlanhirdetésed ingyenesen!

Ingyenes hirdetésfeladás
Havi több mint egymillió ingatlankereső
Egyszerű és gyors hirdetésfeladás
Hirdetésfeladás
Bank360Bank360
Személyi kölcsön
Lakáshitel
Bankszámla
Utasbiztosítás
1 000 000 Ft50 000 000 Ft
6 hónap50 hónap