Ingatlan360 logo
  • Magánszemélyeknek
  • Közvetítőknek
  • Hirdetésfeladás
  • Árak és hirdetési lehetőségek
  • Mennyit ér az ingatlanom?
  • Ingatlan statisztikák

Eladó családi ház Tószeg

Tószeg képe
21
Tószeg 2. képe
Tószeg 3. képe21
22 M Ft
215 686 Ft / m²
102m2
Alapterület
666m2
Telekterület
5
Szoba
Fix 3%-os Otthon Start lakáshitel
Szobák száma
5
Építés éve
1955
Ingatlan állapota
Átlagos
Emelet
Földszint
Parkolás
Udvarban
Légkondicionáló
Nincs
Közös költség
nincs megadva
Fűtés
Egyéb
Fal építési anyaga
Vályog
Lift
Nincs
Az ingatlanról:
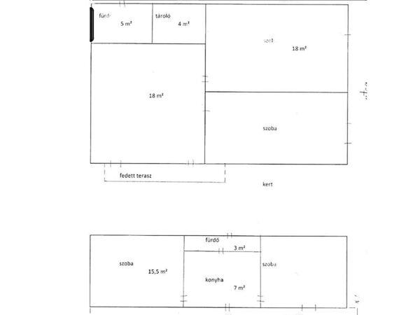
Jász Nagykun Szolnok vármegyében mindössze 15 km re Szolnoktól Tószegen eladó egy azonnal költözhető kétgenerációs családi ház A 666 nm es telken két különálló lakrész található így akár két család számára is ideális választás lehet A nagyobb 60 nm es épületben két tágas szoba kapott helyet amelyek még kialakításra várnak valamint egy 18 nm es nappali konyha egy 7 nm es fürdő WC és egy 5 nm es kamra A ház stabil beton alapra épült vályog falazattal fűtését kályha biztosítja a gáz pedig az utcában elérhető A kisebb 42 nm es házrészben két kényelmes szoba egy konyha valamint fürdő WC található a fűtést itt is kályha adja A bejárat előtt egy hangulatos nagy fedett terasz várja új lakóit tökéletes helyszínt teremtve a reggeli kávéhoz vagy egy nyugodt esti pihenéshez A telken ezen felül garázs és gazdasági épületek is rendelkezésre állnak így minden adott a kényelmes mindennapokhoz A településen falusi CSOK is igénybe vehető 22000000 Ft

Töltsd fel ingatlanhirdetésed ingyenesen!

Ingyenes hirdetésfeladás
Havi több mint egymillió ingatlankereső
Egyszerű és gyors hirdetésfeladás
Hirdetésfeladás
eladó
Szűcsné Gellér KatalinIngatlanreferens
+36 20...
iroda logo
Jászberény Szentháromság tér 2 - OTP Ingatlanpont IrodaIroda további hirdetései

Töltsd fel ingatlanhirdetésed ingyenesen!

Ingyenes hirdetésfeladás
Havi több mint egymillió ingatlankereső
Egyszerű és gyors hirdetésfeladás
Hirdetésfeladás
Bank360Bank360
Személyi kölcsön
Lakáshitel
Bankszámla
Utasbiztosítás
1 000 000 Ft50 000 000 Ft
6 hónap50 hónap