Ingatlan360 logo
  • Magánszemélyeknek
  • Közvetítőknek
  • Hirdetésfeladás
  • Árak és hirdetési lehetőségek
  • Mennyit ér az ingatlanom?
  • Ingatlan statisztikák

Eladó ikerház Velence

Velence képe
9
Velence 2. képe
Velence 3. képe9
79,9 M Ft
907 955 Ft / m²
88m2
Alapterület
518m2
Telekterület
5
Szoba
Fix 3%-os Otthon Start lakáshitel
Szobák száma
5
Építés éve
2026
Ingatlan állapota
Új
Emelet
Földszint
Parkolás
Udvarban
Légkondicionáló
Nincs
Közös költség
nincs megadva
Fűtés
Egyéb
Fal építési anyaga
Tégla
Lift
Nincs
Az ingatlanról:
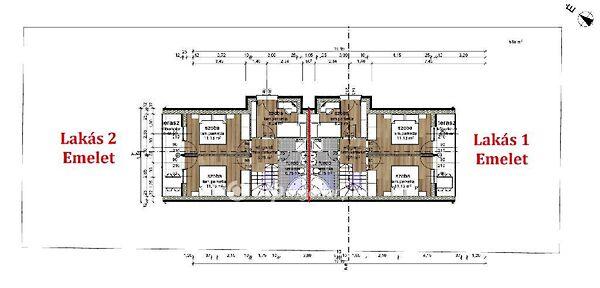
Velencén Budapesttől mindössze 47 km re modern ikerházi lakások eladók saját kerttel Fejér vármegyében Velence csendes zöldövezeti részén a számozott utcákban kínálok megvételre 88 m? hasznos alapterületű új építésű ikerházi lakásokat A nappali 3 5 szobás ingatlanok kamrával háztartási helyiséggel saját kertrésszel két terasszal és felszíni gépkocsibeállóval rendelkeznek így magas komfortfokozatot biztosítanak leendő tulajdonosaik számára Lakás 1 : 74 900 000 Ft Lakás 2 : 79 900 000 Ft Műszaki tartalom és felszereltség: Fűtés: levegő víz hőszivattyú padlófűtés Hűtés: 1 db klímaberendezés Alapozás: beton sávalap Vízszigetelés: 1 réteg BITUBIT GV?4 5 hegeszthető bitumenes lemez talajnedvesség ellen Teherhordó falak: 25 cm YTONG Födém: 20 cm monolit vasbeton lemez statikai terv szerint Válaszfalak: 10 cm Porotherm válaszfallap Homlokzati hőszigetelés: 12 cm grafitos EPS Zárófödém szigetelés: 2×15 cm Rockwool Multirock Földszinti födém szigetelés: 12 cm Austrotherm AT?L2 Külső nyílászárók: 3 rétegű üvegezés argongáz töltés dupla gumitömítés 5 légkamrás műanyag szerkezet Tetőfedés: betoncserép Burkolatok: ragasztott kerámia és laminált padló választható színben a teraszokon kőlap Falburkolatok: Fürdőszobában mennyezetig csempe Konyhában a munkapult fölötti rész csempézve Homlokzat: törtfehér vékonyvakolat szürke díszítő elemekkel Csapadékvíz elvezetés: tározóba vezetve A lakások elrendezése praktikus tágas és világos tereket biztosít a korszerű építészeti megoldások pedig alacsony fenntartási költséget eredményeznek A környék nyugodt családbarát a Velencei tó közelsége pedig különleges életminőséget kínál Az OTP Ingatlanpont teljeskörű ügyintézéssel áll az eladók és a vevők rendelkezésére A választott ingatlan finanszírozásához kedvezményes hitel és pénzügyi konstrukciókat kínálunk Otthon Start hitel CSOK Plusz teljeskörű ügyintézését vállaljuk Az adásvétel teljes folyamatát végigkísérjük és ügyvédi közreműködést biztosítunk Amennyiben modern energiahatékony otthont keres természetközeli környezetben ezek a velencei ikerházi lakások kiváló választást jelentenek

Töltsd fel ingatlanhirdetésed ingyenesen!

Ingyenes hirdetésfeladás
Havi több mint egymillió ingatlankereső
Egyszerű és gyors hirdetésfeladás
Hirdetésfeladás
eladó
Micskey Marianna VandaIngatlanreferens
+36 30...
iroda logo
Gárdony Bóné Kálmán utca 12 - OTP Ingatlanpont IrodaIroda további hirdetései

Töltsd fel ingatlanhirdetésed ingyenesen!

Ingyenes hirdetésfeladás
Havi több mint egymillió ingatlankereső
Egyszerű és gyors hirdetésfeladás
Hirdetésfeladás
Bank360Bank360
Személyi kölcsön
Lakáshitel
Bankszámla
Utasbiztosítás
1 000 000 Ft50 000 000 Ft
6 hónap50 hónap