Ingatlan360 logo
  • Magánszemélyeknek
  • Közvetítőknek
  • Hirdetésfeladás
  • Árak és hirdetési lehetőségek
  • Mennyit ér az ingatlanom?
  • Ingatlan statisztikák

Eladó családi ház Veresegyház csendes, Veresegyház

Veresegyház csendes, Veresegyház képe
10
Veresegyház csendes, Veresegyház 2. képe
Veresegyház csendes, Veresegyház 3. képe10
158 M Ft
1 060 403 Ft / m²
149m2
Alapterület
450m2
Telekterület
4
Szoba
Szobák száma
4
Építés éve
nincs megadva
Ingatlan állapota
Új
Emelet
nincs megadva
Parkolás
1 garázs
Légkondicionáló
Nincs
Közös költség
nincs megadva
Fűtés
nincs megadva
Fal építési anyaga
Tégla
Lift
Nincs
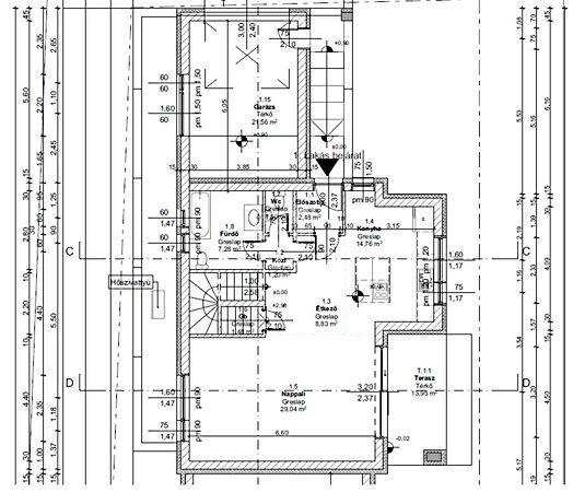
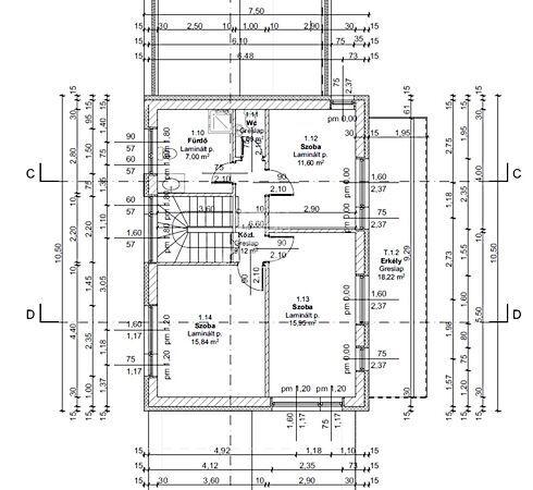
Az ingatlanról:
VERESEGYHÁZ, HEGYEK VÁROSRÉSZ KERTVÁROSI RÉSZÉN, ÚJ ÉPÍTÉSŰ, TELJESEN ELSZEPARÁLT, GARÁZZSAL ELVÁLASZOTT CSALÁDI HÁZ ELADÓ!!!

Veresegyház, Hegyek városrész csendes, kertvárosias részén, cca. 450 nm-es telek területtel, Új építésű, bruttó 181 nm-es, 4 szobás (nappali + 3 hálószoba, külön konyha, étkező), két szintes, vasbeton födémes (az emeleten is), hőszivattyús (levegő - vízes) padló fűtéssel, Dél - Keleti fekvésű, műanyag thermo dió színű (3 rétegű, 7 légkamrás) nyílászárós, szigetelt (15 cm dryvit), új építésű, a másik féltől teljesen elszaparált, garázzsal elválasztott, a másik lakóegységgel egy telken lévő családi ház (első) eladó.

Az ingatlan 30 cm-es síkra csiszolt téglából épül, 15 cm-es dryvit szigeteléssel, vasbeton födémmekel, cserép fedéssel, továbbá szimpla garázzsal.

Az ingatlan kulcsrakész állapotban kerül átadásra, riasztó előkészítéssel, szaniterekkel, burkolatokkal, rendezett kerttel, új kerítéssel, tér burkolt járdával. A belső ajtókat, szanitereket és a burkolatokat a belső műszaki tartalomban megjelölt összegig a vevő a saját igénye szerint választhatja.
A nyílászárók műanyag thermo dió színű hőszigetelt 3 rétegű, 7 légkamrás üvegezésűek, elektromos redőnnyel, igény estén rovarhálóval.

450 nm-es telek terület és a földszinti terasz és az emeleti erkély lehetőséget nyújt a pihenésre, kikapcsolódásra.

Iskola, óvoda, bölcsöde, posta, orvosi rendelő, bevásárlási lehetőség, patika, vonat - és busz megálló pár perces távolságra, az M0-ás, 3-mas főút személy gépkocsival gyorsan elérhető.

CSOK PLUSSZ, 5%-OS ÁFA IGÉNYELHETŐ!!!

Átadás: 1 éven belül, 2026. júniusban.

Építés éve: 2025
Méret: bruttó 181 nm
Falazat: 30 cm vastagságú síkra csiszolt okos tégla
Szigetelés: 15 cm dryvit
Nyílászárók: 3 rétegű, 7 légkamrás üvegezéssel, elektromos redőnnyel, igény esetén szúnyoghálóval.
Födém: vasbeton a földszinten és az emeleten is
Fűtés: hőszivattyús padlófűtéssel, igény esetén mennyezeti hűtéssel, áramellátás: H tarifa igényelhető
Állapot: új építésű
Parkolás: saját 22 nm-es garázs, elektromos kapu előkészítés.

Érdemes megnézni, bővebb információért hívjon bizalommal akár hétvégén is!
L.D

INGYENES hitel tanácsadás, CSOK Plusz ügyintézés, OTTHON START HITEL!
BANKFÜGGETLEN hitelcentrumunk az összes elérhető bank és hitelintézet ajánlatát versenyezteti az Ön kedvéért, ráadásul DÍJMENTESEN.

- Egyedi, bankfiókban nem elérhető kamat- és díjkedvezmények
- Hitelképesség vizsgálat
- Idő, energia és pénz megtakarítás
- Teljes hivatali ügyintézés ...TOVÁBBI, TÖBBEZRES INGATLAN KÍNÁLAT: www.gdn-ingatlan.hu - GDN azonosító: 390230

Töltsd fel ingatlanhirdetésed ingyenesen!

Ingyenes hirdetésfeladás
Havi több mint egymillió ingatlankereső
Egyszerű és gyors hirdetésfeladás
Hirdetésfeladás
eladó
Lenti DávidIngatlanreferens
+36 70...
iroda logo
GDN IngatlanhálózatIroda további hirdetései

Töltsd fel ingatlanhirdetésed ingyenesen!

Ingyenes hirdetésfeladás
Havi több mint egymillió ingatlankereső
Egyszerű és gyors hirdetésfeladás
Hirdetésfeladás
Bank360Bank360
Személyi kölcsön
Lakáshitel
Bankszámla
Utasbiztosítás
1 000 000 Ft50 000 000 Ft
6 hónap50 hónap