Ingatlan360 logo
  • Magánszemélyeknek
  • Közvetítőknek
  • Hirdetésfeladás
  • Árak és hirdetési lehetőségek
  • Mennyit ér az ingatlanom?
  • Ingatlan statisztikák

Eladó családi ház Visegrád

Visegrád képe
28
Visegrád 2. képe
Visegrád 3. képe28
110 M Ft
418 251 Ft / m²
263m2
Alapterület
1073m2
Telekterület
6
Szoba
Fix 3%-os Otthon Start lakáshitel
Szobák száma
6
Építés éve
1930
Ingatlan állapota
Jó állapotú
Emelet
nincs megadva
Parkolás
2 vagy több garázs
Légkondicionáló
Van
Közös költség
nincs megadva
Fűtés
Cirkófűtés
Fal építési anyaga
Tégla
Lift
nincs megadva
Az ingatlanról:
Az akciós ár MÁRCIUS 31-IG ÉRVÉNYES!

MEGLEPŐEN KIS REZSI - 2 külön bejárattal rendelkező lakása miatt DUPLA GÁZÁR-TÁMOGATÁS !

VISEGRÁDI KURIÓZUM?

Igen, mert kevés eladó ingatlan van Visegrádon! Ráadásul hibátlan ingatlan...

Teher- és permentes az ingatlan!

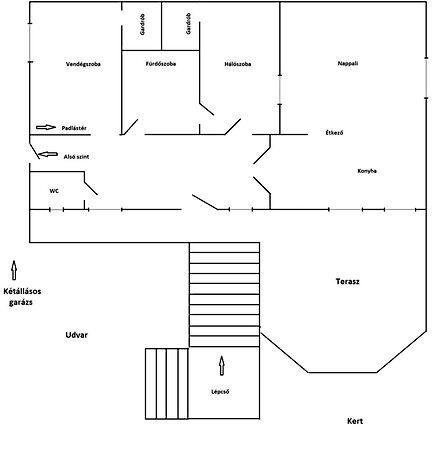
Az ingatlan Visegrád belvárosában található, csendes, kialakult környezetben, panorámás, családi ház besorolású!

Egy nyugalmat árasztó, gyönyörű kertben lévő belső 2 szintes, külső és belső lépcsőn is megközelíthető, így 2 külön bejáratú, 2 konyhás, 2 fürdőszobás lakásból a kertkapcsolatoshoz és az emeleti lakáshoz is óriási terasz tartozik!
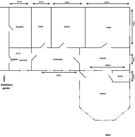
Jelenleg a tetőtérben 1 szoba lett kialakítva, így még bővíthető. A kertben egy gyönyörű borospince bújik meg. A földszinten lévő lakásban egy szaunával kombinált fürdőszoba lett kialakítva.

A garázsban 2 autó kényelmesen is elfér, egymás mellett!

Műszakilag is rendben van a ház, a kert is szépen karbantartott, nyugalmat árasztó!

VAN működő VEGYES TÜZELÉSŰ KAZÁNJA, GÁZKAZÁNJA ÉS 2 db HŰTŐ-FŰTŐ klímája is!

Bővebb információt telefonon vagy személyesen tudok adni az ingatlanról!
Beltér:
https://youtu.be/Z02tEoE80bQ

A fenti linket kimásolva sikerülni fog a videót megtekintenie a ház felső szintjén lévő lakásról!
SŐT!
(További videóval rendelkezem, a ház másik, vagyis a kertkapcsolatos lakásáról is!)
Környék:
Az ingatlan nagyon jó helyen van Visegrádon belül: nem árterületen, nem a hegytetőn, gyalogosan könnyen elérhető a tömegközlekedés, bevásárlás stb.
Csendes, mégis közel van minden, ami fontos a hétköznapi élethez: bevásárláshoz, orvoshoz, tömegközlekedéshez, szórakozáshoz stb.

Töltsd fel ingatlanhirdetésed ingyenesen!

Ingyenes hirdetésfeladás
Havi több mint egymillió ingatlankereső
Egyszerű és gyors hirdetésfeladás
Hirdetésfeladás
eladó
BINGO IngatlanirodaIngatlanreferens
+36 70...

Töltsd fel ingatlanhirdetésed ingyenesen!

Ingyenes hirdetésfeladás
Havi több mint egymillió ingatlankereső
Egyszerű és gyors hirdetésfeladás
Hirdetésfeladás
Bank360Bank360
Személyi kölcsön
Lakáshitel
Bankszámla
Utasbiztosítás
1 000 000 Ft50 000 000 Ft
6 hónap50 hónap