Ingatlan360 logo
  • Magánszemélyeknek
  • Közvetítőknek
  • Hirdetésfeladás
  • Árak és hirdetési lehetőségek
  • Mennyit ér az ingatlanom?
  • Ingatlan statisztikák

Eladó ikerház Szőlőtelep, Budapest, X. kerület

Szőlőtelep, Budapest, X. kerület képe
13
Szőlőtelep, Budapest, X. kerület 2. képe
Szőlőtelep, Budapest, X. kerület 3. képe13
145 M Ft
1 188 525 Ft / m²
122m2
Alapterület
231m2
Telekterület
4
Szoba
Fix 3%-os Otthon Start lakáshitel
Szobák száma
4
Építés éve
nincs megadva
Ingatlan állapota
Új
Emelet
nincs megadva
Parkolás
1 garázs
Légkondicionáló
Nincs
Közös költség
nincs megadva
Fűtés
nincs megadva
Fal építési anyaga
Tégla
Lift
Nincs
Az ingatlanról:
Új építésű, kétszintes ikerház prémium felszereltséggel és bútorzattal

Csendes környezet – Magas minőségű kivitelezés – Teljes digitális átláthatóság!

Budapest X. kerületének egyik legnyugodtabb mellékutcájában, kiváló közlekedési és infrastrukturális adottságok mellett készül ez a korszerű, kétszintes ikerház.
Az építkezés teljes folyamata átláthatóan nyomon követhető!

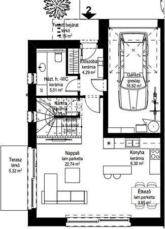
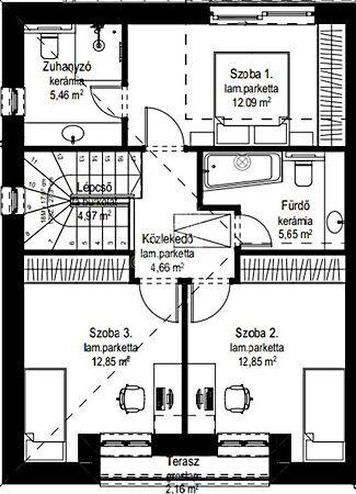
Főbb adatok

Hasznos alapterület: 122 m²

Telekméret: 231 m² saját kerttel

Szintek száma: földszint + emelet

Hálószobák: 3 külön nyíló szoba

Fürdőszobák: összesen 3 (2 az emeleten, 1 a földszinten)

Nappali: 33 m²-es amerikai konyhás tér, közvetlen teraszkapcsolattal

Parkolás: fedett garázs, nagyobb méretű autó számára is ideális

Műszaki felszereltség

POROTHERM 30 N+F téglafalak, monolit vasbeton födémszerkezet

15 cm homlokzati EPS hőszigetelés + 20 cm födémszigetelés

Hőszivattyúval működő mennyezeti fűtés és hűtés

3 rétegű hőszigetelt nyílászárók és biztonsági bejárati ajtó

Laminált parketta és kerámia burkolatok kombinációja

Terrán Zenit Max Carbon tetőcserép

Kiemelt extrák

Komplett okosotthon rendszer

Motoros alumínium redőnyök

Kamera- és riasztórendszer előkészítés

Videó kaputelefon

Elektromos kapu és autótöltési lehetőség

Automata kertöntöző

WPC kerítés, rejtett világítás, kültéri lámpatestek

Légtechnikai rendszer kiépítve

Digitális projektkövetés – PlanRadar

A vásárló:

Élőben követheti az építkezés előrehaladását telefonon

Kéthetente részletes fotódokumentációt kap

Az átadáskor digitálisan megkap minden szükséges hivatalos dokumentumot (garanciák, tervrajzok, jegyzőkönyvek)

Finanszírozási lehetőségek tárháza

Hitelből is megvásárolható

Díjmentes hitelügyintézés minden hazai bank felé

Elérhető aktuális állami támogatások

Várható átadás: 2026. III. negyedév
Ez az ingatlan ideális választás mindazok számára, akik modern, biztonságos és kényelmes otthont szeretnének. Ne hagyja ki ezt a kivételes lehetőséget!
ID: 390189 ...TOVÁBBI, TÖBBEZRES INGATLAN KÍNÁLAT: www.gdn-ingatlan.hu - GDN azonosító: 390189

Töltsd fel ingatlanhirdetésed ingyenesen!

Ingyenes hirdetésfeladás
Havi több mint egymillió ingatlankereső
Egyszerű és gyors hirdetésfeladás
Hirdetésfeladás
eladó
Hallai MónikaIngatlanreferens
+36 30...
iroda logo
GDN IngatlanhálózatIroda további hirdetései

Töltsd fel ingatlanhirdetésed ingyenesen!

Ingyenes hirdetésfeladás
Havi több mint egymillió ingatlankereső
Egyszerű és gyors hirdetésfeladás
Hirdetésfeladás
Bank360Bank360
Személyi kölcsön
Lakáshitel
Bankszámla
Utasbiztosítás
1 000 000 Ft50 000 000 Ft
6 hónap50 hónap