Ingatlan360 logo
  • Magánszemélyeknek
  • Közvetítőknek
  • Hirdetésfeladás
  • Árak és hirdetési lehetőségek
  • Mennyit ér az ingatlanom?
  • Ingatlan statisztikák

Eladó családi ház Több lakásos, Budapest, XIV. kerület

Több lakásos, Budapest, XIV. kerület képe
20
Több lakásos, Budapest, XIV. kerület 2. képe
Több lakásos, Budapest, XIV. kerület 3. képe20
369 M Ft
878 571 Ft / m²
420m2
Alapterület
449m2
Telekterület
19
Szoba
Szobák száma
19
Építés éve
nincs megadva
Ingatlan állapota
Felújítandó
Emelet
nincs megadva
Parkolás
1 garázs
Légkondicionáló
Nincs
Közös költség
nincs megadva
Fűtés
Cirkófűtés
Fal építési anyaga
Tégla
Lift
Nincs
Az ingatlanról:
A FEJLŐDŐ BOSNYÁK TÉR SZOMSZÉDSÁGÁBAN!!!

TÁRSASHÁZ!!! EGÉSZSÉGÜGYI INTÉZMÉNY!!! IRODAHÁZ!!! WELNESS KÖZPONT!!!

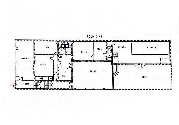
XIV. kerületben, ALSÓRÁKOSON, eladó egy bruttó 449 m2-es telken fekvő bruttó 600 m2-es családi ház. (nettó 420 m2) 10 szoba + 9 félszoba. A házban 5-6 lakás kialakítása lehetséges.

A ház az 1980-as években épült. A welness részleg az 1990-es években lett hozzáépítve.

A ház további jellemzői:

- PER- és TEHERMENTES

- RÖVID HATÁRIDŐVEL BIRTOKBA VEHETŐ

- CSENDES kertvárosi környezet

- terasz (kb. 70 m2)

- minden közmű egyedileg mérhető

- garázs (3 db.)

- kert

- klíma (2 db.)

Fűtése: cirkó és gázkazán. (3 DB.)

Közlekedés: kiváló (5, 69, 32-es busz, 3, 62, 62A villamos, 74, 74A, 82-es trolibusz, M1 MEXIKÓI ÚT metróállomás pár percen belül elérhető, 973 éjszakai járat).

Az M3 bevezető szakasza autóval 5 percen belül elérhető.

A hirdetésben feltüntetett adatok és információk csak tájékoztató jellegűek, jogi kötelezettséggel nem bíró jognyilatkozatnak minősülnek, mely nem tekinthető ajánlat tételnek és nem járnak az eladóra nézve kötelező ajánlati kötöttséggel.

Ügyfeleink részére BANKFÜGGETLEN hitelügyintéző kollégáink szívesen nyújtanak segítséget.

Amennyiben felkeltettem az érdeklődését vagy bármely további kérdése lenne, keressen bizalommal.

Akár hétvégén is!

CSA ...TOVÁBBI, TÖBBEZRES INGATLAN KÍNÁLAT: www.gdn-ingatlan.hu - GDN azonosító: 376343

Töltsd fel ingatlanhirdetésed ingyenesen!

Ingyenes hirdetésfeladás
Havi több mint egymillió ingatlankereső
Egyszerű és gyors hirdetésfeladás
Hirdetésfeladás
eladó
Csóka AnnamáriaIngatlanreferens
+36 30...
iroda logo
GDN IngatlanhálózatIroda további hirdetései

Töltsd fel ingatlanhirdetésed ingyenesen!

Ingyenes hirdetésfeladás
Havi több mint egymillió ingatlankereső
Egyszerű és gyors hirdetésfeladás
Hirdetésfeladás
Bank360Bank360
Személyi kölcsön
Lakáshitel
Bankszámla
Utasbiztosítás
1 000 000 Ft50 000 000 Ft
6 hónap50 hónap