Ingatlan360 logo
  • Magánszemélyeknek
  • Közvetítőknek
  • Hirdetésfeladás
  • Árak és hirdetési lehetőségek
  • Mennyit ér az ingatlanom?
  • Ingatlan statisztikák

Eladó családi ház Szőlőliget, Budapest, XVII. kerület

Szőlőliget, Budapest, XVII. kerület képe
20
Szőlőliget, Budapest, XVII. kerület 2. képe
Szőlőliget, Budapest, XVII. kerület 3. képe20
399 M Ft
1 655 602 Ft / m²
241m2
Alapterület
1274m2
Telekterület
5
Szoba
Szobák száma
5
Építés éve
nincs megadva
Ingatlan állapota
Új
Emelet
nincs megadva
Parkolás
1 garázs
Légkondicionáló
Nincs
Közös költség
nincs megadva
Fűtés
nincs megadva
Fal építési anyaga
Tégla
Lift
Nincs
Az ingatlanról:
ÚJ LUXUS INGATLAN XVII. KERÜLETBEN !!!

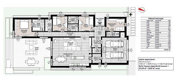
Megvételre kínálok Budapest XVII. kerület Rákosliget részen, Szőlőliget Öko lakóparkban, 1274nm-es telken, nettó 241nm-es, bruttó 271nm-es, 4 szoba + amerikaikonyhás nappalival rendelkező, új építésű, gyönyörű luxus ingatlant!

Épület Műszaki paraméterei:

Alapozás: a lakóépület alá vasalt sávalap készül C30/37-XC1 minőségű betonból, maximális
szemcseátmérő 16 mm, terülési osztály: F3.
A vasalt sávalapra két sor 30-as zsalukő kerül, amely össze lesz vasalva a sávalapokkal utólagos
tüskézéssel, valamint, az erre kerülő vasalt padozaLal.

Felmenő szerkezet: az épület 25 cm vastag Porotherm blokktégla falazattal és a falazatba
rejtett monolit vasbeton pillérekkel épül, a terveknek megfelelően.

Szigetelés: a vízszigetelés és a függőleges talajnedvesség elleni szigetelés oxidbitumenes
szigetelőlemezzel és 10 cm vastag lépésálló hőszigeteléssel készül.

Teherhordó falak: 25 cm vastag Porotherm blokktégla falazat készül, javított falazó
mészhabarcsba rakva. Az 50 cm-nél rövidebb hosszúságú teherhordó falak monolit vasbeton
pillérekként kerülnek kialakításra, melyek közül a homlokzatiak, a külső oldali teljes
homlokzati hőszigetelésen kívül, +5 cm-es XPS hőszigeteléssel ellátottan készülnek.

Homlokzati felületképzés: a homlokzati falfelület 15 cm vastag grafitos hőszigetelését
törtfehér színű vékonyvakolatot kap; a lábazatra zártcellás hőszigetelés készül, a terepszinttől
50 cm magasságig. A hőszigetelés rögzítése hőhídmentes dűbelek alkalmazásával történik.

Belső válaszfalak: Ytong válaszfalakkal osztoLuk a belső teret. A falak Q4 minőségi gleLeléssel
készülnek, design tapétával és helyenként kőburkolaLal.

Tetőszerkezet, bádogos szerkezetek: az épület felett ácsolt tetőszerkezet készül, kontyolt
nyeregtető kivitelben, az épület egyes helyiségeiben látszó szarufás kialakítással. A tető 20 cm
vastag ásványgyapot hőszigeteléssel, hőtükörfóliával és 5 cm vastag szálas hőszigeteléssel
ellátott. A koszorú hő-hídmentessége XPS hőszigetelés beépítésével biztosított. A ház esővíz
elvezetése a függőleges ereszcsatornák segítségével a ház körüli szikkasztókba történik.

Nyílászárók: a homlokzati nyílászárók egy része fix, egy részük pedig bukó-nyíló, emelő-toló
funkcióval van ellátva - hőszigetelt háromrétegű üvegezésűek. A homlokzati nyílászárók belül
műanyag-, kívül alumíniumborításúak. A nyílászárók hőátbocsátási értéke – Uw: 0,77W/m2K
Ug: 0,5W/m2K Psi: 0,033W/mK esetén Uf (tok-szárny)=1,1 W/ (m2K). A homlokzati
nyílászárók belül antracit-, kívül barna színűek UV stabil kialakítással.
A nyílászárók rejtett tokos, elektromos, alumíniumból készült rejtett tokos redőnnyel ellátottak,
amelyek telefonról is vezérelhetőek (Somfy IO rendszerrel). Minden ablak szúnyoghálóval
felszerelt - a teraszajtókra elhúzható pliszé kerül felszerelésre.
A beltéri nyílászárók a belsőépítész terveknek megfelelően kerülnek kialakításra. Beltéri ajtók
kerülnek beépítésre, nagy keménységű, sarkos tokborítással.

Külső burkolatok: a teraszok fagyálló padlólapokkal, a lakáshoz vezető járda és a gépkocsi
beállók térkő burkolattal készülnek.

Belső burkolatok: laminált- és Gres burkolatokkal készülnek a belső terek. A ház teljes belső
tere egyedi kialakítást kap.

Villamos munkák: a ház elektromos kapcsoló szekrényét a garázsban helyezzük el. A
kábeltévé és az internet bekötésre a kiépített vezetékrendszeren keresztül kerülhet sor.
A lakásban többzónás riasztó rendszer kerül kialakításra, távolról irányítható vezérléssel (okos
telefonnal vezérelhető). A holttérmentes HD kültéri kamerarendszer kiépítésre került.
A házhoz 1 db kaputelefon tartozik. Az épület homlokzatán a lámpatestek a tervek szerint
kerülnek kialakításra.
A villanyóra szekrény (3x32 A) az épületen kívül van elhelyezve, a vonatkozó szabvány szerint.
Elektromos gépkocsibeállókapu kerül felszerelésre, távirányítóval, illetve telefonról is
vezérelhető (intelligens IO) rendszerrel ellátott.

Víz-csatorna: a vízvezeték anyaga épületen kívüli szakaszon KPE műanyag cső, épületen belül
ötrétegű műanyagcső, Polifoam csőhéj hőszigeteléssel. A szennyvízcsatorna a földszinti
padozat alatt halad. A 125-ös gyűjtőcsatorna tisztító csőaknákkal épül a közcsatorna
csatlakozásig. A meleg vizet, hőszivattyú által keringtetett elektromos rendszer biztosítja. A
házhoz egy szabvány szerinti vízóraakna kerül kialakításra. A vízóraaknában kap helyet, a ház
vízfogyasztását mérő vízóra.

Elektromos hűtés/fűtés: a lakásban két féle fűtésrendszer kerül kialakításra
hőszivattyús rendszer, mely hűtést-fűtést biztosít (split rendszerrel működő) illetve padlófűtés
rendszer, helyiségekként külön vezérléssel (távolról is) minden helyiség klimatizált (kivéve a
fürdőszobák és a közlekedők).
Szaniter: a fürdőszobák épített zuhannyal, rejtett zuhanylefolyókkal készülnek, Grohe
termosztátos zuhanyfejjel, illetve Grohe egykaros csaptelepekkel. Villeroy and Boch porcelán
mosdók, Geberit belső tartályos WC-k kerülnek beépítésre.

Napelem: tetőre szerelt napelemes rendszer kerül felszerelésre (22 kWp), valamint 1 db
Profiszolár P3-2-10000 és 1 db SolaX X3-Hybrid 10.0-D-E inverter. Távleolvasású AD/VESZ
villanyóra méri a termelt és a fogyasztott elektromos áramot.

A házban megtalálható berendezések, bútorok.
A lakáshoz belsőépítész terveket járnak, de azok megvalósítása a Vevők feladata és költsége.

Fürdőszobák: épített zuhanykabin, ajtóval és rejtett zuhanylefolyókkal lesz kialakítva. A bútorokra felszerelhető porcelán szaniterek beépítésre kerülnek.

A ház intelligens rendszerekkel felszerelt, ennek köszönhetően az alábbiak, akár telefonról is
vezérelhetőek:
- Kamera rendszer kiépítésre kerül,
- Többzónás riasztó rendszer (Ajax),
- Redőnyök és árnyékolók,
- Gépkocsibeállókapu,
- Napelem,
- Wifi-s termosztátok.

Infrastruktúrája kiváló, 10perc sétára elérhető buszmegálló (46,146,146A,176E,276E,908,908A,968,998), autóval pedig rövid időn belül az M0-ra, vagy a belvárosba érhetünk.

INGYENES hiteltanácsadás! CSOK ügyintézés!
BANKFÜGGETLEN hitelcentrumunk minden elérhető bank és hitelintézet ajánlatát versenyezteti az Ön kedvéért, ráadásul DÍJMENTESEN.
Önnek nincs más dolga, mint elbeszélgetni Munkatársunkkal, Aki a hallott információk alapján versenyre hívja a bankokat, hogy Ön hosszú távon is a legjobb konstrukciót kaphassa, amiből végül Ön választhatja ki a nyertest!
Munkatársaink sokéves szakmai tapasztalattal állnak rendelkezésére, előre egyeztetve a normál munkaidő után is!

Amennyiben hirdetésem felkeltette érdeklődését, várom hívását, akár hétvégén is! V.I. ...TOVÁBBI, TÖBBEZRES INGATLAN KÍNÁLAT: www.gdn-ingatlan.hu - GDN azonosító: 370163

Töltsd fel ingatlanhirdetésed ingyenesen!

Ingyenes hirdetésfeladás
Havi több mint egymillió ingatlankereső
Egyszerű és gyors hirdetésfeladás
Hirdetésfeladás
eladó
Varga IstvánIngatlanreferens
+36 20...
iroda logo
GDN IngatlanhálózatIroda további hirdetései

Töltsd fel ingatlanhirdetésed ingyenesen!

Ingyenes hirdetésfeladás
Havi több mint egymillió ingatlankereső
Egyszerű és gyors hirdetésfeladás
Hirdetésfeladás
Bank360Bank360
Személyi kölcsön
Lakáshitel
Bankszámla
Utasbiztosítás
1 000 000 Ft50 000 000 Ft
6 hónap50 hónap