Ingatlan360 logo
  • Magánszemélyeknek
  • Közvetítőknek
  • Hirdetésfeladás
  • Árak és hirdetési lehetőségek
  • Mennyit ér az ingatlanom?
  • Ingatlan statisztikák

Eladó családi ház Alacskai, Budapest, XVIII. kerület

Alacskai, Budapest, XVIII. kerület képe
16
Alacskai, Budapest, XVIII. kerület 2. képe
Alacskai, Budapest, XVIII. kerület 3. képe16
142 M Ft
1 007 092 Ft / m²
141m2
Alapterület
400m2
Telekterület
4
Szoba
Fix 3%-os Otthon Start lakáshitel
Szobák száma
4
Építés éve
nincs megadva
Ingatlan állapota
Új
Emelet
nincs megadva
Parkolás
1 garázs
Légkondicionáló
Nincs
Közös költség
nincs megadva
Fűtés
Egyéb
Fal építési anyaga
Tégla
Lift
Nincs
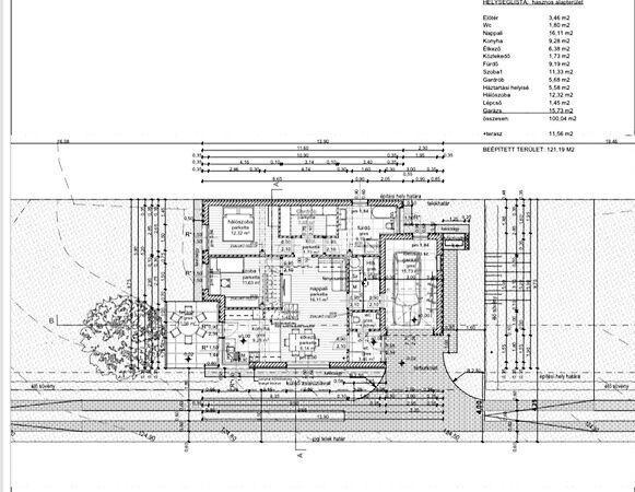
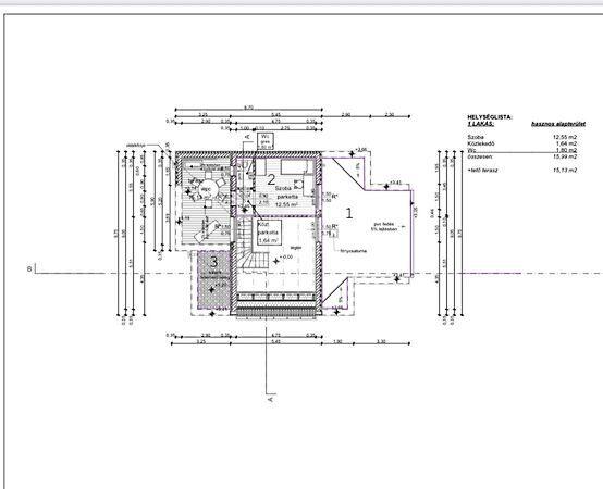
Az ingatlanról:
Almáskert Villa Park – Új építésű luxus családi házak a XVIII. kerület egyik legkedveltebb részén!

Fedezze fel Budapest egyik legnyugodtabb, családbarát övezetét az Almáskertben, ahol három különálló, új építésű, modern családi ház várja leendő tulajdonosait!

Mit kínálunk?
✅ Önálló, belső kétszintes házak (földszint + emelet)
✅ Nappali + 3 hálószoba
✅ 3 mellékhelyiség, kádas-zuhanyzós, dupla mosdós fürdőszoba
✅ Tágas gardrób, tetőterasz, saját parkosított kert
✅ Fűtött garázs elektromos, szekcionált kapuval

Minőség kompromisszumok nélkül!
Az otthonok a legkorszerűbb anyagokból készülnek:
25 cm-es extra hőszigetelő Ytong falazat
10 cm grafitos dryvit szigetelés
3 rétegű antracit nyílászárók, elektromos alumínium redőnyök
20 cm födémszigetelés, időtálló cserépfedés

Energiahatékony és jövőálló otthon:
Hőszivattyús fűtés és hűtés (H-tarifa)
Fan-coil és padlófűtés minden helyiségben
Előkészített napelemrendszer és elektromos autótöltő

Rugalmas kialakítás:
A burkolatok, szaniterek, beltéri ajtók egyedi igény szerint választhatók
A fürdőszobákat bútorozva adjuk át
Egyedi módosítások még kivitelezhetők az építkezés előrehaladásától függően

Műszaki átadás: 2025 nyarán
Ár: 142.000.000 Ft – kulcsrakész állapotban!

Babaváró, CSOK és kamattámogatott hitel igénybe vehető
Ügyvédi költséget az építtető/beruházó átvállalja
Építkezés látogatható előre egyeztetett időpontban

Ne maradjon le róla! Hívjon bizalommal a hét bármely napján, és ismerje meg álmai otthonát személyesen! ...TOVÁBBI, TÖBBEZRES INGATLAN KÍNÁLAT: www.gdn-ingatlan.hu - GDN azonosító: 384239

Töltsd fel ingatlanhirdetésed ingyenesen!

Ingyenes hirdetésfeladás
Havi több mint egymillió ingatlankereső
Egyszerű és gyors hirdetésfeladás
Hirdetésfeladás
eladó
Gombár RenátaIngatlanreferens
+36 70...
iroda logo
GDN IngatlanhálózatIroda további hirdetései

Töltsd fel ingatlanhirdetésed ingyenesen!

Ingyenes hirdetésfeladás
Havi több mint egymillió ingatlankereső
Egyszerű és gyors hirdetésfeladás
Hirdetésfeladás
Bank360Bank360
Személyi kölcsön
Lakáshitel
Bankszámla
Utasbiztosítás
1 000 000 Ft50 000 000 Ft
6 hónap50 hónap