Ingatlan360 logo
  • Magánszemélyeknek
  • Közvetítőknek
  • Hirdetésfeladás
  • Árak és hirdetési lehetőségek
  • Mennyit ér az ingatlanom?
  • Ingatlan statisztikák

Eladó családi ház Budapest, XX. kerület

Budapest, XX. kerület képe
6
Budapest, XX. kerület 2. képe
Budapest, XX. kerület 3. képe6
124,9 M Ft
1 178 302 Ft / m²
106m2
Alapterület
333m2
Telekterület
4
Szoba
Fix 3%-os Otthon Start lakáshitel
Szobák száma
4
Építés éve
nincs megadva
Ingatlan állapota
Új
Emelet
nincs megadva
Parkolás
1 garázs
Légkondicionáló
Nincs
Közös költség
nincs megadva
Fűtés
Padlófűtés
Fal építési anyaga
Tégla
Lift
nincs megadva
Az ingatlanról:
XX. Erzsébet Rózsadombján, a Gubacspusztai részen, csendes, békés környezetben, luxus kivitelű családi házak épülnek 2025 év végi átadással, bevezető áron, helyi kivitelezőtől!
A közel egy hektáros területen 16 db kétszintes, körbejárható családi házat kínálunk eladásra, melyek korszerű hőszivattyús padlófűtéssel, saját garázzsal, terasszal és erkélyekkel rendelkeznek! A kivitelező a tervezéskor a minimál design megvalósítására törekedett, mely még jobban emeli a környék exkuzivitását, és figyelembe veszi a kor építészeti elvárásait is! Az építkezés 2025 elején kezdődött, mindazonáltal folyamatosan tudunk önnek kulcsrakész referencia házakat mutatni, mert a kivitelező a környéken több projektet is megvalósít! A képek között néhány referencia ingatlan fotóit is elhelyeztük.
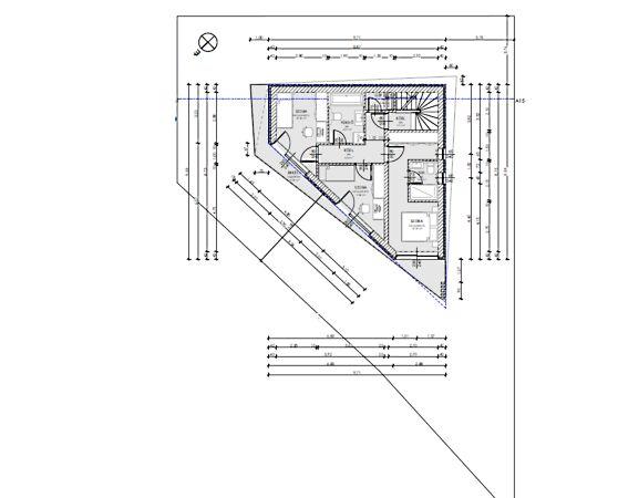
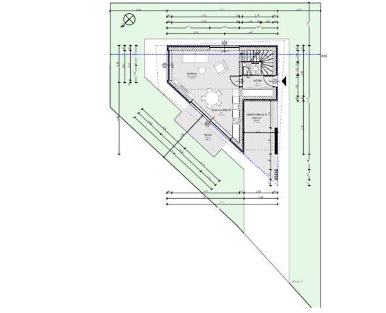
A hirdetésben szereplő családi ház 95 m2-es, nappali plusz három hálószobával és egy 17 m2-es, fedett autóbeállóval rendelkezik, 333 m2-es telken. A földszinti terasz mérete: 12 m2, az emeleti erkélyek mérete: 9,6 m2.

Műszaki leírás a lakások belső kialakításáról.
Burkolatok:
Az árak bruttó árak.
fürdőszoba: csempe ajtómagasságig 5.500.- Ft/m2
kerámia padlóburkolat 5.500/m2
WC: csempe 150cm-ig 5.500 Ft/m2
kerámia padlóburkolat 5.500 Ft/m2
szobák: laminált parketta vagy szőnyegpadló 5.500 Ft/m2
konyha: laminált parketta 5.500 Ft/m2
előszoba: laminált parketta 5.500 Ft/m2
A burkolásra megadott m2 árak segédanyagokkal együtt értendők (parketta esetében szegéllyel és polifómmal). Az általunk megadott áraktól bármilyen irányú eltérés lehetséges. Amennyiben az alapárat meghaladja a választott burkolat ára, azt a Beruházó nem egyenlíti ki, alapáron felüli összeg megfizetése mindig a Vevő kötelessége. A beruházó által megjelölt szaküzlet csak javaslat, az általunk javasolt partnernél történő burkolat választás esetén, Vevőt nem terheli a helyszínre szállítás feladata. Amennyiben nem az általunk megjelölt partner végzi a burkolatok szállítását, abban az esetben a Vevő feladatkörébe tartozik a burkolatot helyszínre szállítása és annak a lakásba való elhelyezése. Ebben az esetben a burkolati alapárat a Beruházó a burkolóanyagok hiánytalan helyszínre szállítását követően, a cég nevére szóló áfás számla ellenében tudja készpénzben megfizetni Vevő részére.
Konyhabútor nem kerül beépítésre.
Festés:
Diszperziós fehér festés
Nyílászárók:
Lakás bejárati ajtó:
1db műanyag biztonsági bejárati ajtó.

Belső nyílászárók:
Ajtók kilincsekkel MDF borítású dekorfóliás vagy erősített CPI fóliával ellátva
(kalkulált ár: 45.000 Ft)
Külső nyílászárók:
Német, műanyag profilú hőszigetelt ablakok, külső felület fehér színben, színazonos külső
párkánnyal, valamint erkélyajtók bukó-nyíló pánttal szerelve, illeszkedő
külső párkánnyal készre szerelve. TOLÓAJTÓK NEM KERÜLNEK BEÉPÍTÉSRE.
Az építési engedélyben szereplő méretekkel.
Általános meghatározás
Víz és fűtésszerelés:
padlófűtés kiépítése
nyomóvezeték: KPE, többrétegű műanyag csőből
lefolyó vezeték: PVC csőből
fűtéscsövezés: műanyag csővel + rézcsővel

vízcsövezés: műanyag csővel + rézcsővel
fűtés: Hőszivattyú-lakásonkénti hőmennyiségmérővel
meleg víz: Hőszivattyú - lakásonkénti vízórával
fürdőszobában: fürdőszobánként 1db elektromos törülközőszárítós radiátor
fürdőkád: 1db akril kád fehér színben, (kalk.ár: 55.000 Ft)
mosdó: 1db Alföldi vagy azzal megegyező (kalk.ár 25.000 Ft)
WC: 1-2 db beépített Geberit vagy azzal megegyező wc
kádtöltő csaptelep: egykaros krómozott kivitelben (kalk.ár: 19.500 Ft)
mosdó csaptelep: egykaros krómozott kivitelben (kalk.ár 19.500 Ft)
1 db mosógép kiállás a fürdőszobában vagy a konyhában elhelyezve
A lakásokban egyedi közműórák kerülnek elhelyezésre:
(hideg-meg víz 1-1 órával, elektromos áram villanyóra, fűtés hőmennyiségmérő) lakásonként önállóan
mérhetők
Elektromos szerelés:
elektromos teljesítmény: 1x 32A / lakás
elektromos hálózat kiépítése műanyag védőcsőben, vezetékekkel szerelve
A konyhában 1 db elektromos tűzhely kiállás 100x100-as kötődobozban
Prodax, Legrand vagy ezzel megegyező típusú elektromos szerelvények:
Konnektorok: Konyha: 4 db, Nappali: 4 db, szobánkként 2 db, közlekedőnkként 1 db,
fürdőszobánkként 2 db vízmentes.
Minden lámpatesthez 1 db kapcsoló
TV csatlakozás minden szobában és a nappaliban kiépítésre kerül
Épületszerkezet kialakítása:
Statikai Tervek szerint kerülnek kialakításra
Födémek: vasbeton
Teherhordó falazat: kitöltő falazású LEIER vagy Porotherm 30 N + vázkitöltéssel
Válaszfalak: 10 cm vastagságú LEIER N+F téglából falazva
Külső homlokzat kialakítása:
Dryvit rendszer: 10 cm Nikecell, Dryvit háló ragasztása + fedőszínezés, kiviteli terv szerint
Terasz:
Az építési engedélyben feltüntetett méretű terasz kerül kialakításra.
Teraszok lekerítése korláttal került kivitelezésre
Tereprendezés:
Tereprendezett terület kialakítása.
Műanyag redőny. Antracit színű garázskapu.

Fizetési ütemezés:

10 % FOGLALÓ
20 % LEMEZALAP ÉS FÖLDSZINTI FŐFALAK
20 % FÖLDSZINTI FÖDÉM ÉS EMELETI FŐFALAK
10 % BELSŐ VÁLASZFALAK ÉS KÜLSŐ NYÍLÁSZÁRÓK
5 % VILLANY ALAPSZERELÉS ÉS GÉPÉSZETI ALAPSZERELÉS
5% BELSŐ VAKOLÁS
10 % DRYVIT SZIGETELÉS
10 % HIDEG ÉS MELEG BURKOLATOK, BELSŐ NYÍLÁSZÁRÓK
10 % BIRTOKBAADÁSKOR.
A ház vételárán felüli költségek:
Ügyvédi munkadíj: 0,9 % tartalmazza az előszerződés, végleges szerződés díját.
Konyhabútort és lámpatesteket nem tartalmaz a vételár.
Az elírás és tévedés jogát fenntartjuk!

Töltsd fel ingatlanhirdetésed ingyenesen!

Ingyenes hirdetésfeladás
Havi több mint egymillió ingatlankereső
Egyszerű és gyors hirdetésfeladás
Hirdetésfeladás
eladó
Szabó ImreIngatlanreferens
+36 70...

Töltsd fel ingatlanhirdetésed ingyenesen!

Ingyenes hirdetésfeladás
Havi több mint egymillió ingatlankereső
Egyszerű és gyors hirdetésfeladás
Hirdetésfeladás
Bank360Bank360
Személyi kölcsön
Lakáshitel
Bankszámla
Utasbiztosítás
1 000 000 Ft50 000 000 Ft
6 hónap50 hónap