Ingatlan360 logo
  • Magánszemélyeknek
  • Közvetítőknek
  • Hirdetésfeladás
  • Árak és hirdetési lehetőségek
  • Mennyit ér az ingatlanom?
  • Ingatlan statisztikák

Eladó családi ház Hollandi, Budapest, XXI. kerület

Hollandi, Budapest, XXI. kerület képe
19
Hollandi, Budapest, XXI. kerület 2. képe
Hollandi, Budapest, XXI. kerület 3. képe19
179,5 M Ft
1 121 875 Ft / m²
160m2
Alapterület
539m2
Telekterület
5
Szoba
Szobák száma
5
Építés éve
nincs megadva
Ingatlan állapota
Átlagos
Emelet
nincs megadva
Parkolás
1 garázs
Légkondicionáló
Nincs
Közös költség
nincs megadva
Fűtés
Cirkófűtés
Fal építési anyaga
Tégla
Lift
Nincs
Az ingatlanról:
*Különleges lehetőség! 1970-80-as években épült, 3 szintes családi ház eladó!*
Egyedi ajánlat: 2 x 95 nm-es, két külön bejáratú lakás egy ingatlanban!

- *Alsó szint:*
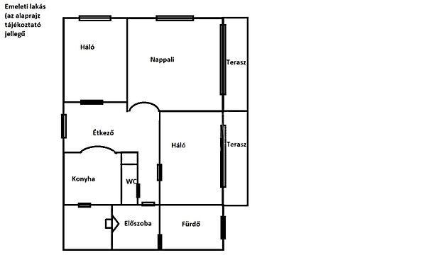
- Fedett teraszról érkezünk az előszobába, 2 szoba, étkező, konyha, spájz, kádas fürdőszoba, külön WC, és tartozik hozzá egy külön bejáratú szoba/tároló
- *Felső szint:*
- 3 szoba, étkező, konyha, zuhanyzós fürdőszoba, külön WC, előszoba

- Műszaki jellemzők:
- Téglából épült, műanyag nyílászárók redőnnyel, szúnyoghálóval
- Alsó szinten és fent is radiátoros fűtés (kazán és vegyestüzelésű kazán) fenti szinten egy klíma
- Melegvíz: villanybojler

Környezet:
-Az ingatlan közel a Dunaparthoz egy szépen gondozott saroktelken épült két ütemben. A kert locsolása fúrt kútról megoldható.
- 30 nm-es garázs az autónak

Érdekel? Szeretnél többet megtudni vagy megtekinteni az ingatlant?
Keress bizalommal! ...TOVÁBBI, TÖBBEZRES INGATLAN KÍNÁLAT: www.gdn-ingatlan.hu - GDN azonosító: 386554

Töltsd fel ingatlanhirdetésed ingyenesen!

Ingyenes hirdetésfeladás
Havi több mint egymillió ingatlankereső
Egyszerű és gyors hirdetésfeladás
Hirdetésfeladás
eladó
Fajta AnitaIngatlanreferens
+36 30...
iroda logo
GDN IngatlanhálózatIroda további hirdetései

Töltsd fel ingatlanhirdetésed ingyenesen!

Ingyenes hirdetésfeladás
Havi több mint egymillió ingatlankereső
Egyszerű és gyors hirdetésfeladás
Hirdetésfeladás
Bank360Bank360
Személyi kölcsön
Lakáshitel
Bankszámla
Utasbiztosítás
1 000 000 Ft50 000 000 Ft
6 hónap50 hónap