Ingatlan360 logo
  • Magánszemélyeknek
  • Közvetítőknek
  • Hirdetésfeladás
  • Árak és hirdetési lehetőségek
  • Mennyit ér az ingatlanom?
  • Ingatlan statisztikák

Eladó ikerház Budatétény modern, Budapest, XXII. kerület

Budatétény modern, Budapest, XXII. kerület képe
10
Budatétény modern, Budapest, XXII. kerület 2. képe
Budatétény modern, Budapest, XXII. kerület 3. képe10
175 M Ft
1 250 000 Ft / m²
140m2
Alapterület
500m2
Telekterület
5
Szoba
Szobák száma
5
Építés éve
nincs megadva
Ingatlan állapota
Új
Emelet
nincs megadva
Parkolás
Udvarban
Légkondicionáló
Nincs
Közös költség
nincs megadva
Fűtés
nincs megadva
Fal építési anyaga
Tégla
Lift
Nincs
Az ingatlanról:
A HÁTSÓ LAKÁS MÁR ELKELT!

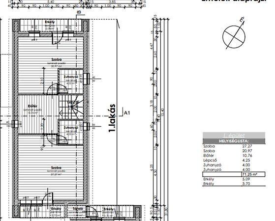
Budapest XXII. kerület kedvelt kertvárosi részén, Budatéténynél eladó egy most indult ikerházas építkezés első és hátsó lakása.

A lakásokhoz gépkocsi beálló és 500 m2-es kertrész tartozik.
Várható befejezés: 2026. január hó

Az első lakás ára 175 millió forint, lakótér alapterülete ~140 m2, terasz 28 m2, erkély 9 m2.
Második lakás ára 175 millió forint, lakótér alapterülete ~ 144 m2, terasz 20 m2, erkély 9 m2.

Fontos tudni, hogy az összeépítésnél a 2 lakás fala csak tárolón keresztül érintkezik!

Fűtés hőszivattyúval, padlófűtéssel történik.

Amennyiben bővebb információt szeretne a lakások műszaki paramétereiről, kérem keressen a megadott számon, akár hétvégén is!

INGYENES hitel tanácsadás, CSOK Plusz ügyintézés!
BANKFÜGGETLEN hitelcentrumunk az összes elérhető bank és hitelintézet ajánlatát versenyezteti az Ön kedvéért, ráadásul DÍJMENTESEN.

- Egyedi, bankfiókban nem elérhető kamat- és díjkedvezmények
- Hitelképesség vizsgálat
- Idő, energia és pénz megtakarítás
- Teljes hivatali ügyintézés

Amennyiben hirdetésem felkeltette az érdeklődését vagy egyéb információra van szüksége hívjon bizalommal! ...TOVÁBBI, TÖBBEZRES INGATLAN KÍNÁLAT: www.gdn-ingatlan.hu - GDN azonosító: 384277

Töltsd fel ingatlanhirdetésed ingyenesen!

Ingyenes hirdetésfeladás
Havi több mint egymillió ingatlankereső
Egyszerű és gyors hirdetésfeladás
Hirdetésfeladás
eladó
Dankóné Cserős ÉvaIngatlanreferens
+36 20...
iroda logo
GDN IngatlanhálózatIroda további hirdetései

Töltsd fel ingatlanhirdetésed ingyenesen!

Ingyenes hirdetésfeladás
Havi több mint egymillió ingatlankereső
Egyszerű és gyors hirdetésfeladás
Hirdetésfeladás
Bank360Bank360
Személyi kölcsön
Lakáshitel
Bankszámla
Utasbiztosítás
1 000 000 Ft50 000 000 Ft
6 hónap50 hónap