Ingatlan360 logo
  • Magánszemélyeknek
  • Közvetítőknek
  • Hirdetésfeladás
  • Árak és hirdetési lehetőségek
  • Mennyit ér az ingatlanom?
  • Ingatlan statisztikák

Eladó ikerház Egyszintes ikerház mindkét, Budapest, XXII. kerület

Egyszintes ikerház mindkét, Budapest, XXII. kerület képe
10
Egyszintes ikerház mindkét, Budapest, XXII. kerület 2. képe
Egyszintes ikerház mindkét, Budapest, XXII. kerület 3. képe10
107 M Ft
1 426 667 Ft / m²
75m2
Alapterület
157m2
Telekterület
3
Szoba
Fix 3%-os Otthon Start lakáshitel
Szobák száma
3
Építés éve
nincs megadva
Ingatlan állapota
Új
Emelet
nincs megadva
Parkolás
Udvarban
Légkondicionáló
Nincs
Közös költség
nincs megadva
Fűtés
nincs megadva
Fal építési anyaga
Tégla
Lift
Nincs
Az ingatlanról:
OTTHON START PROGRAM FELTÉTELINEK MEGFELELŐ, FIX 3%-OS, ÁLLAMI TÁMOGATÁSÚ LAKÁSHITELLEL MEGVÁSÁROLHATÓ INGATLAN!

EGYSZINTES ÚJ ÉPÍTÉSŰ IKERHÁZ DAIKIN ALTHERMA HŐSZIVATTYÚVAL!

XXII. kerületben, Nagytétény, CSENDES KERTVÁROSI környezetében, nettó 75 m2-es, nappali + 2 szobás (teraszos), MODERN, ÚJ ÉPÍTÉSŰ, IKERHÁZAT kínálunk eladásra!

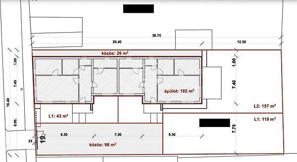
HELYISÉGEI FÖLDSZINTEN:
-előszoba(10,68m2), amerikai konyha nappali(26m2), 2 szoba(9,75m2, 14,43m2), fürdőszoba(6,25m2), WC(1,9m2), tároló(5,18m2), valamint 15 m2 és 3,89 m2-es terasz.

Az ingatlanhoz saját, kizárólagos használatú, lekerített TELEKRÉSZEK tartoznak.
Egy autóbeálló tartozik az ingatlanhoz, a kialakítását a vételár tartalmazza.
Az ingatlan telkén található egy fúrt kút.

Az épület: egyszintes (földszint)
Külső falazat: Leier 30 cm-es tégla, 10 cm-es Dryvit hőszigeteléssel.

Műanyag nyílászárok: FENSTHERM FUTURE vagy Kömmerling 5légkamrás, 76mm tokszélesség , 3rétegű üveg K=0,6 hőszigeteléssel.

Nagyon IGÉNYES KIVITELEZÉS, minőségi anyagok felhasználásával épül ( részletes Műszaki leírással és további anyagokkal rendelkezem.)

A fűtést és a melegvizet DAIKIN ALTHERMA HŐSZIVATTYÚ biztosítja padlófűtéssel, radiátorral kiépítve.

A vételár tartalmazza riasztó rendszer kiépítését, valamint kettő klíma kiállás kiépítését!

Külön mérőórák, szeparált telekrészek, különböző utcai bejáratok!

MÉRETEK, TÁJOLÁS, ELRENDEZÉS, AZ ALAPRAJZOKON.
( Belső átalakítás-kialakítás a Vevő igényei alapján megoldható )

KIVÁLÓ KÖZLEKEDÉSI LEHETŐSÉGEK, iskola, óvoda, bölcsőde, rendelő, Campona, Lidl, Aldi minden a közelben.

TERVEZETT ÁTADÁS: 2026. első negyedév!

A vételár NEM tartalmazza a hideg-meleg burkolatokat, redőny lamellákat, szúnyoghálókat, beltéri ajtókat, riasztóberendezést, csaptelepeket, klímaberendezést, szaniterek árait!
A munkadíj minden esetben benne van az árban.

Megtekinthető elkészült REFERENCIA munkák, OTTHON START HITEL, CSOK PLUSZ, babaváró, kedvezményes HITELEK FELVEHETŐK!
(Szükség esetén ingyenes hitelügyintézéssel)

Az ingatlan megtekintése előre egyeztetett időpontban lehetséges, akár hétvégén is. Bővebb információkkal kapcsolatban várom jelentkezését, keressen bizalommal a hét minden napján! ...TOVÁBBI, TÖBBEZRES INGATLAN KÍNÁLAT: www.gdn-ingatlan.hu - GDN azonosító: 387777

Töltsd fel ingatlanhirdetésed ingyenesen!

Ingyenes hirdetésfeladás
Havi több mint egymillió ingatlankereső
Egyszerű és gyors hirdetésfeladás
Hirdetésfeladás
eladó
Nyegrutz TiborIngatlanreferens
+36 30...
iroda logo
GDN IngatlanhálózatIroda további hirdetései

Töltsd fel ingatlanhirdetésed ingyenesen!

Ingyenes hirdetésfeladás
Havi több mint egymillió ingatlankereső
Egyszerű és gyors hirdetésfeladás
Hirdetésfeladás
Bank360Bank360
Személyi kölcsön
Lakáshitel
Bankszámla
Utasbiztosítás
1 000 000 Ft50 000 000 Ft
6 hónap50 hónap