Ingatlan360 logo
  • Magánszemélyeknek
  • Közvetítőknek
  • Hirdetésfeladás
  • Árak és hirdetési lehetőségek
  • Mennyit ér az ingatlanom?
  • Ingatlan statisztikák

Eladó családi ház Zalaszentgrót

Zalaszentgrót képe
14
Zalaszentgrót 2. képe
Zalaszentgrót 3. képe14
61,9 M Ft
412 667 Ft / m²
150m2
Alapterület
363m2
Telekterület
Fix 3%-os Otthon Start lakáshitel
Szobák száma
nincs megadva
Építés éve
1950
Ingatlan állapota
Felújított
Emelet
nincs megadva
Parkolás
Udvarban
Légkondicionáló
Nincs
Közös költség
nincs megadva
Fűtés
Gáz (cirkó)
Fal építési anyaga
nincs megadva
Lift
Nincs
Az ingatlanról:
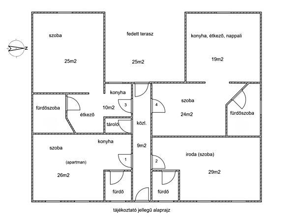
Zala vármegye, Zalaszentgrót, belvárosi felújított és korszerűsített 150m2-es lakóingatlan eladó. Az ingatlanban négy, közös folyosóról nyíló, külön bejáratú lakóegység került kialakításra. Az alaprajzon 1.számmal jelölt, utcafronti apartmanban egy légtérben szoba konyhával, és fürdőszoba, a 2. sz. egységben jelenleg iroda, fürdővel, a 3.sz lakrészben (apartmanban) konyha étkezővel, tároló és szoba, míg a 4.számmal jelölt lakrészben szoba, konyha étkezővel, nappalival és fürdőszoba került kialakításra. Az épületet nagyméretű fedett terasz, míg a 363m2-es gondozott telken szerszámtároló és gépjárműbeálló teszi teljessé. A közelmúltban felújított (vezetékek, burkolatok, tető, nyílászárók…) lakóingatlan melegéről központi fűtés gondoskodik, radiátoros hőleadókkal, egységenként külön termosztáttal. Az ingatlan alkalmas lehet állandó lakhatásra, vagy befektetésnek (szálláshely szolgáltatás, iroda stb.) egyaránt.

Töltsd fel ingatlanhirdetésed ingyenesen!

Ingyenes hirdetésfeladás
Havi több mint egymillió ingatlankereső
Egyszerű és gyors hirdetésfeladás
Hirdetésfeladás
eladó
Melczer IngatlanIngatlanreferens
+36 30...

Töltsd fel ingatlanhirdetésed ingyenesen!

Ingyenes hirdetésfeladás
Havi több mint egymillió ingatlankereső
Egyszerű és gyors hirdetésfeladás
Hirdetésfeladás
Bank360Bank360
Személyi kölcsön
Lakáshitel
Bankszámla
Utasbiztosítás
1 000 000 Ft50 000 000 Ft
6 hónap50 hónap