Ingatlan360 logo
  • Magánszemélyeknek
  • Közvetítőknek
  • Hirdetésfeladás
  • Árak és hirdetési lehetőségek
  • Mennyit ér az ingatlanom?
  • Ingatlan statisztikák

Eladó ipari Kossuth, Kecskemét

Kossuth, Kecskemét képe
15
Kossuth, Kecskemét 2. képe
Kossuth, Kecskemét 3. képe15
185 M Ft
1 321 429 Ft / m²
140m2
Alapterület
Szobák száma
nincs megadva
Építés éve
nincs megadva
Ingatlan állapota
Jó állapotú
Emelet
Földszint
Parkolás
Udvarban
Légkondicionáló
Nincs
Közös költség
nincs megadva
Fűtés
Cirkófűtés
Fal építési anyaga
Tégla
Lift
Nincs
Az ingatlanról:
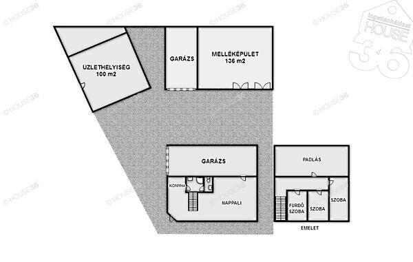
Hunyadivárosban eladó egy 844 m2 es telken lévő nappali 2 szobás családi ház a hozzá tartozó melléképülettel és üzlethelyiséggel Egyéb jellemzők: magas minőségű burkolatok egyedi cseresznyefa beltéri ajtók műanyag nyílászárók redőny szúnyogháló cirkó fűtés padló radiátor 38 as Porotherm tégla 13 cm szigetelés elektromos kapu elektromos garázskapu fürdőszobákban Hüppe zuhanykabin Laufen wc Wellis masszázs kád klíma térburkolt udvar különálló 100 m2 es üzlethelyiség melléképület 136 m2 Padlófűtés 3 6 állásos garázs A tulajdonos kéréséreaz ingatlan bemutatása egy személyes konzultáció után történik ahol részletes tájékoztatást kaphat az ingatlan paramétereiről és egyébkényelmi szolgáltatásairól Figyelem az adatlap megbízónktól kapott adatok alapján készült pontosságáért felelősséget nem tudunk vállalni Az iroda legfrissebb aktuális kínálatát a HOUSE36 saját weboldalán találja

Töltsd fel ingatlanhirdetésed ingyenesen!

Ingyenes hirdetésfeladás
Havi több mint egymillió ingatlankereső
Egyszerű és gyors hirdetésfeladás
Hirdetésfeladás
eladó
Lajkó TamásIngatlanreferens
+36 70...
iroda logo
HOUSE36 IngatlanhálózatIroda további hirdetései

Töltsd fel ingatlanhirdetésed ingyenesen!

Ingyenes hirdetésfeladás
Havi több mint egymillió ingatlankereső
Egyszerű és gyors hirdetésfeladás
Hirdetésfeladás
Bank360Bank360
Személyi kölcsön
Lakáshitel
Bankszámla
Utasbiztosítás
1 000 000 Ft50 000 000 Ft
6 hónap50 hónap