Ingatlan360 logo
  • Magánszemélyeknek
  • Közvetítőknek
  • Hirdetésfeladás
  • Árak és hirdetési lehetőségek
  • Mennyit ér az ingatlanom?
  • Ingatlan statisztikák

Eladó ipari Liszt Ferenc, Vecsés

Liszt Ferenc, Vecsés képe
20
Liszt Ferenc, Vecsés 2. képe
Liszt Ferenc, Vecsés 3. képe20
279 M Ft
768 595 Ft / m²
363m2
Alapterület
1112m2
Telekterület
Szobák száma
nincs megadva
Építés éve
nincs megadva
Ingatlan állapota
nincs megadva
Emelet
nincs megadva
Parkolás
nincs megadva
Légkondicionáló
Nincs
Közös költség
nincs megadva
Fűtés
nincs megadva
Fal építési anyaga
nincs megadva
Lift
Nincs
Az ingatlanról:
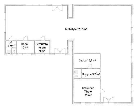
Vecsésen a Liszt Ferenc utcában 1112 m2-es telken eladó egy 363 m2-es területtel rendelkező gépesített ablak és belső ajtók gyártására szakosodott asztalos üzem.

Az üzem tartozásmentes, könyvelt Kft.-vel, érvényes működési engedéllyel együtt eladó.

A beton sávalapra téglából épült ingatlan 3 szakaszban készült, 1982-ben, 1993-ban és 2010-ben. Kialakításra került egy iroda, bemutatóterem, fürdő, mellékhelyiségek kazánház, garzon lakás és műhelytér. A nyílászárók saját gyártású fa thermó üvegekkel szereltek.

Fűtésről vegyes tüzelésű kazán gondoskodik radiátoros hőleadással.

Az ingatlanhoz tartozik egy 108 m2-es nyitott, padlóburkolattal ellátott szín, mely raktárnak van kialakítva.

A biztonságért kamera és riasztórendszer felel.

Gépek:

-Paoloni csiszológép
-Paoloni ST 98 kontaktcsiszoló
-Paoloni TA50p ablakgyártó marógép
-Paoloni TC1200 asztali marógép
-OAV szalgfűrész
-Veba 400-as abrikter /gyalugép/
-Robland D630 gyalugép
-Futura 4 fejes gyalugép
-Lapszabászgép
-Asztali körfűrész
-Toronyfúró
-LT 270 kompresszor
-Központi porszívó

A marógépekehez számtalan marófej tartozik.

Villamos áram terhelhetősége: 3X50A

INGYENES hitel tanácsadás !
BANKFÜGGETLEN hitelcentrumunk az összes elérhető bank és hitelintézet ajánlatát versenyezteti az Ön kedvéért, ráadásul DÍJMENTESEN.

- Egyedi, bankfiókban nem elérhető kamat- és díjkedvezmények
- Hitelképesség vizsgálat
- Idő, energia és pénz megtakarítás
- Teljes hivatali ügyintézés

Amennyiben hirdetésem felkeltette az érdeklődését vagy egyéb információra van szüksége hívjon bizalommal! ...TOVÁBBI, TÖBBEZRES INGATLAN KÍNÁLAT: www.gdn-ingatlan.hu - GDN azonosító: 372715

Töltsd fel ingatlanhirdetésed ingyenesen!

Ingyenes hirdetésfeladás
Havi több mint egymillió ingatlankereső
Egyszerű és gyors hirdetésfeladás
Hirdetésfeladás
eladó
Horváth PéterIngatlanreferens
+36 70...
iroda logo
GDN IngatlanhálózatIroda további hirdetései

Töltsd fel ingatlanhirdetésed ingyenesen!

Ingyenes hirdetésfeladás
Havi több mint egymillió ingatlankereső
Egyszerű és gyors hirdetésfeladás
Hirdetésfeladás
Bank360Bank360
Személyi kölcsön
Lakáshitel
Bankszámla
Utasbiztosítás
1 000 000 Ft50 000 000 Ft
6 hónap50 hónap