Eladó iroda Északi, Dunaharaszti
588 M Ft
506 024 Ft / m²
1162m2
Alapterület
11217m2
Telekterület
10
Szoba
Szobák száma
10
Építés éve
nincs megadva
Ingatlan állapota
Jó állapotú
Emelet
2.
Parkolás
Udvarban
Légkondicionáló
Nincs
Közös költség
nincs megadva
Fűtés
Gáz (cirkó)
Fal építési anyaga
Tégla
Lift
Nincs
Az ingatlanról:
Dunaharaszti frekventált iparterületén, irodaház Eladó!
Az ingatlan kiváló cégközpontnak és/vagy munkásszállónak is!
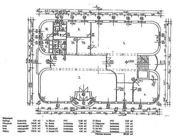
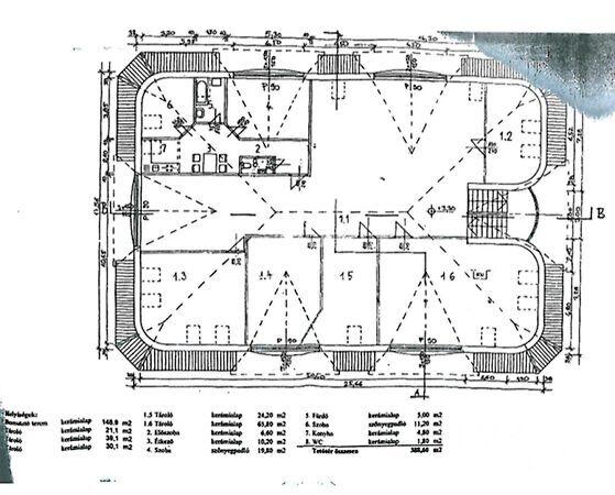
Kereskedelmi, szolgáltató gazdasági területen kínálom megvételre az 1995-ben épült, irodaházként funkcionáló háromszintes, néhány éve részben felújított ingatlant, mely 1162 m2, szintenként (3 X 380 m2) alapterületű.
A 6000 m2-es sík, teljes közművel ellátott telekterületen elhelyezkedő többfunkciós ingatlan telephely besorolású, kerítéssel határolt zöld terület, parkosított kerttel, több gépjármű részére biztosított parkolóval.
AZ IRODAÉPÜLET FŐBB JELLEMZŐI:
- 1162 m2 alapterületű, két szintes (+pince)
- Porotherm 38-as falazat, tetőborítása bitumenes zsindely héj,
- szintenként korszerű vizesblokk és irodai konyha,
- a legfelső emeleten kialakításra került egy kis lakás 60 nm,
- saját hőközponttal rendelkezik az épület + klímák,
- tűz és riasztórendszer,
- kiépített LAN-kábel hálózat és telefonhálózat,
- kerítéssel határolt zöldterület,
- parkosított kert, több gépjármű részére biztosított parkoló.
AZ INGATLAN ELHELYEZKEDÉSÉNEK ELŐNYEI:
A Dunaharaszti ipari park nyújtotta lehetőségek számos előnyt kínálnak. Fejlett infrastruktúra.
A frekventált ipari park megközelítése aszfaltozott közúton és üzemi úton, M0 autóútról 51-es számú útra letérve, könnyen megközelíthető.
Kiváló tömegközlekedés.
Rendezett környezet.
Amivel segítjük az Ön ingatlanvásárlását:
- ingyenes hitelügyintézés,
- jogi háttér,
- földhivatali ügyintézés,
- energetikai tanúsítvány,
- a vevő számára az ingatlanközvetítés ingyenes.
Irodánk 30 éves szakmai tapasztalattal áll ügyfelei rendelkezésére!
Várom szíves megkeresését! ...TOVÁBBI, TÖBBEZRES INGATLAN KÍNÁLAT: www.gdn-ingatlan.hu - GDN azonosító: 382853
Az ingatlan kiváló cégközpontnak és/vagy munkásszállónak is!
Kereskedelmi, szolgáltató gazdasági területen kínálom megvételre az 1995-ben épült, irodaházként funkcionáló háromszintes, néhány éve részben felújított ingatlant, mely 1162 m2, szintenként (3 X 380 m2) alapterületű.
A 6000 m2-es sík, teljes közművel ellátott telekterületen elhelyezkedő többfunkciós ingatlan telephely besorolású, kerítéssel határolt zöld terület, parkosított kerttel, több gépjármű részére biztosított parkolóval.
AZ IRODAÉPÜLET FŐBB JELLEMZŐI:
- 1162 m2 alapterületű, két szintes (+pince)
- Porotherm 38-as falazat, tetőborítása bitumenes zsindely héj,
- szintenként korszerű vizesblokk és irodai konyha,
- a legfelső emeleten kialakításra került egy kis lakás 60 nm,
- saját hőközponttal rendelkezik az épület + klímák,
- tűz és riasztórendszer,
- kiépített LAN-kábel hálózat és telefonhálózat,
- kerítéssel határolt zöldterület,
- parkosított kert, több gépjármű részére biztosított parkoló.
AZ INGATLAN ELHELYEZKEDÉSÉNEK ELŐNYEI:
A Dunaharaszti ipari park nyújtotta lehetőségek számos előnyt kínálnak. Fejlett infrastruktúra.
A frekventált ipari park megközelítése aszfaltozott közúton és üzemi úton, M0 autóútról 51-es számú útra letérve, könnyen megközelíthető.
Kiváló tömegközlekedés.
Rendezett környezet.
Amivel segítjük az Ön ingatlanvásárlását:
- ingyenes hitelügyintézés,
- jogi háttér,
- földhivatali ügyintézés,
- energetikai tanúsítvány,
- a vevő számára az ingatlanközvetítés ingyenes.
Irodánk 30 éves szakmai tapasztalattal áll ügyfelei rendelkezésére!
Várom szíves megkeresését! ...TOVÁBBI, TÖBBEZRES INGATLAN KÍNÁLAT: www.gdn-ingatlan.hu - GDN azonosító: 382853
Töltsd fel ingatlanhirdetésed ingyenesen!
Ingyenes hirdetésfeladás
Havi több mint egymillió ingatlankereső
Egyszerű és gyors hirdetésfeladás
Töltsd fel ingatlanhirdetésed ingyenesen!
Ingyenes hirdetésfeladás
Havi több mint egymillió ingatlankereső
Egyszerű és gyors hirdetésfeladás
Személyi kölcsön
Lakáshitel
Bankszámla
Utasbiztosítás
1 000 000 Ft50 000 000 Ft
6 hónap50 hónap