Ingatlan360 logo
  • Magánszemélyeknek
  • Közvetítőknek
  • Hirdetésfeladás
  • Árak és hirdetési lehetőségek
  • Mennyit ér az ingatlanom?
  • Ingatlan statisztikák

Eladó iroda Nyíregyháza

Nyíregyháza képe
4
Nyíregyháza 2. képe
Nyíregyháza 3. képe4
81,6 M Ft
995 244 Ft / m²
82m2
Alapterület
Szobák száma
nincs megadva
Építés éve
2026
Ingatlan állapota
Új
Emelet
Földszint
Parkolás
nincs megadva
Légkondicionáló
Nincs
Közös költség
nincs megadva
Fűtés
nincs megadva
Fal építési anyaga
nincs megadva
Lift
Nincs
Az ingatlanról:
 

Kivételes lehetőség Nyíregyháza szívében! A belváros legfrekventáltabb részén, modern, A+ energetikai besorolású társasház földszintjén kínálunk eladásra egy 81,61 m²-es, exkluzív kivitelezésű irodát.

 

Az épületről röviden:

 

Épület típusa: Új építésű, lifttel felszerelt, modern társasház

Energetika: A+ besorolás – rendkívül alacsony fenntartási költségek

Fűtés / hűtés: korszerű hőszivattyús rendszer – energiahatékony, kényelmes megoldás egész évben

Kivitelezés: magas minőségű építőanyagok, modern építészeti megoldások

 

Szintek:

Alagsor: teremgarázs (16 parkoló)

Földszint: teremgarázs (10 parkoló), tárolók, előcsarnok, iroda

1–4. emelet: 26 lakás.

Várható átadás:2026 év vége.

 

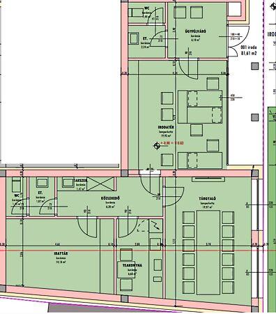
 Iroda részletei:

 

Helyiségek:

Ügyfélváró

Irodatér

Tárgyaló

Teakonyha

Irattár

Közlekedő

2 db előtér

2 db külön WC

 

Burkolatok, beltéri ajtók, szaniterek, világítótestek:
A vevő ízlésének megfelelően választhatóak – lehetőség van a belső design teljes testreszabására.

Parkolás:

Opcionálisan vásárolható teremgarázs.

 

Áraink az ÁFÁ-T nem tartalmazzák.

 

A remek lokáció, a prémium technikai háttér és a rugalmas belső kialakítás miatt kiváló befektetés, akár kiadásra is.Vegye fel velünk a kapcsolatot még ma, hogy elsőként tekinthesse meg ezt a kivételes irodát, és személyre szabott ajánlatot kapjon.

Egyéb jellemzők:

Villanyáram: Bevezetve (230 - 400 Volt).
Vízellátás: Van, saját vízórával.
Kilátás: Utcára.

Töltsd fel ingatlanhirdetésed ingyenesen!

Ingyenes hirdetésfeladás
Havi több mint egymillió ingatlankereső
Egyszerű és gyors hirdetésfeladás
Hirdetésfeladás
eladó
Székely EdinaIngatlanreferens
+36 20...
iroda logo
Pancsusák SándorIroda további hirdetései

Töltsd fel ingatlanhirdetésed ingyenesen!

Ingyenes hirdetésfeladás
Havi több mint egymillió ingatlankereső
Egyszerű és gyors hirdetésfeladás
Hirdetésfeladás
Bank360Bank360
Személyi kölcsön
Lakáshitel
Bankszámla
Utasbiztosítás
1 000 000 Ft50 000 000 Ft
6 hónap50 hónap