Ingatlan360 logo
  • Magánszemélyeknek
  • Közvetítőknek
  • Hirdetésfeladás
  • Árak és hirdetési lehetőségek
  • Mennyit ér az ingatlanom?
  • Ingatlan statisztikák

Eladó iroda Zalaegerszeg

Zalaegerszeg képe
7
Zalaegerszeg 2. képe
Zalaegerszeg 3. képe7
39 M Ft
999 744 Ft / m²
39m2
Alapterület
Szobák száma
nincs megadva
Építés éve
nincs megadva
Ingatlan állapota
nincs megadva
Emelet
Földszint
Parkolás
nincs megadva
Légkondicionáló
Nincs
Közös költség
nincs megadva
Fűtés
nincs megadva
Fal építési anyaga
nincs megadva
Lift
Nincs
Az ingatlanról:
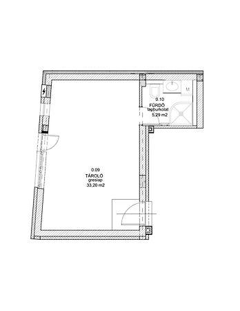
Zala megye, Zalaegerszeg 39m2-es újépítésű belvárosi iroda eladó. A háromszintes, négy lakásos, szigetelt társasház földszintjén található, utcafronti bejárattal is rendelkező ingatlanban egy tágas fogadótér, és egy vizesblokk került kialakításra. Az iroda igény esetén akár lakássá is alakítható A melegről padlófűtés, a hűtésről egyedi vezérlésű klíma gondoskodik. A 2024 nyarán átadásra kerülő ingatlanban többi között rovarhálóval, motoros redőnyökkel felszerelt homlokzati nyílászárók, kaputelefon, igényes minőségű, a megajánlott termékek közül szabadon választott hideg-és meleg burkolatok, internet-és televízió szolgáltatások előkábelezése stb. szolgálja az új tulajdonos kényelmét. Az irodához a társasház zárt udvarán felszíni gépjárműbeálló külön megvásárolható (5M Ft+ÁFA). A hirdetésben a jelenlegi (2024.07-08) aktuális bruttó ár szerepel.

Töltsd fel ingatlanhirdetésed ingyenesen!

Ingyenes hirdetésfeladás
Havi több mint egymillió ingatlankereső
Egyszerű és gyors hirdetésfeladás
Hirdetésfeladás
eladó
Melczer IngatlanIngatlanreferens
+36 30...

Töltsd fel ingatlanhirdetésed ingyenesen!

Ingyenes hirdetésfeladás
Havi több mint egymillió ingatlankereső
Egyszerű és gyors hirdetésfeladás
Hirdetésfeladás
Bank360Bank360
Személyi kölcsön
Lakáshitel
Bankszámla
Utasbiztosítás
1 000 000 Ft50 000 000 Ft
6 hónap50 hónap