Ingatlan360 logo
  • Magánszemélyeknek
  • Közvetítőknek
  • Hirdetésfeladás
  • Árak és hirdetési lehetőségek
  • Mennyit ér az ingatlanom?
  • Ingatlan statisztikák

Eladó téglalakás Balatonszepezd

Balatonszepezd képe
17
Balatonszepezd 2. képe
Balatonszepezd 3. képe17
120,1 M Ft
1 765 702 Ft / m²
68m2
Alapterület
3
Szoba
Szobák száma
3
Építés éve
nincs megadva
Ingatlan állapota
Új
Emelet
Földszint
Parkolás
Udvarban
Légkondicionáló
Nincs
Közös költség
nincs megadva
Fűtés
Elektromos
Fal építési anyaga
Tégla
Lift
Nincs
Az ingatlanról:
A Lido Home Balatonalmádi Ingatlaniroda eladásra kínálja az alábbi ÚJ ÉPÍTÉSŰ prémium lakást Balatonszepezden!
Fő jellemzői:
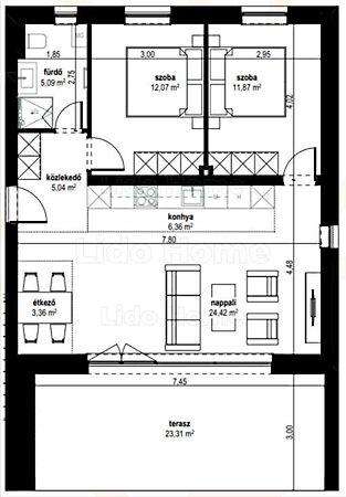
-Földszinti, 2 szoba+nappalis lakás, 23,31 m2-es terasszal, 98 m2 saját kertrésszel.
-A projekt 3 db épületből áll, épületenként 3 szinttel rendelkezik.
-Minden lakáshoz tágas terasz tartozik, csodás balatoni kilátással, emellett a földszinti lakások saját kerttel, az emeletek lakásai pedig saját tárolóval rendelkeznek.
-A teherhordó és külső falak 30 cm vastag Porotherm 30 N+F neo téglából, falazóhabarccsal készülnek, biztosítva a stabil és tartós szerkezetet.
-A belső válaszfalak POROTHERM 10 N+F lapokból épülnek, cementes-mészhabarccsal falazva, a lakások optimális térbeosztásáért.
-A nyílászárók fa-aluminium tokos szerkezetűek, háromrétegű üvegezéssel; a belső párkány tömörfa, a külső fémlemez burkolatú.
-A belső ajtók fa tok- és szárnyszerkezetűek, míg a bejárati ajtók acél biztonsági ajtók, a maximális védelmet és eleganciát biztosítva.
-Az épületben modern multi-split klímarendszer biztosítja a hűtést és fűtést, a vizesblokkokban pedig elektromos padlófűtés javítja a komfortérzést.
-A lakóparkhoz 20 m² privát horgászstég is tartozik.
-A precíz kivitelezés és igényes design mellett futópályák, kültéri edzőrészek biztosítják a mozgás örömét a mindennapokban.
-A lakások kulcsrakészen kerülnek átadásra, prémium anyaghasználattal és modern dizájnnal!
-Várható átadás: 2027 május
Balatonszepezd festői, nyugodt települése és a közeli Szepezdfürdő vízparti üdülőterülete ideális választás mindazoknak, akik a Balaton közelségét és a csendes, panorámás környezetet keresik - akár állandó lakhatásra, akár befektetésre!
Lido Home - Ingatlanok egy életen át!

Töltsd fel ingatlanhirdetésed ingyenesen!

Ingyenes hirdetésfeladás
Havi több mint egymillió ingatlankereső
Egyszerű és gyors hirdetésfeladás
Hirdetésfeladás
eladó
Vincze GyöngyiIngatlanreferens
+36 30...
iroda logo
Lido Home BalatonalmádiIroda további hirdetései

Töltsd fel ingatlanhirdetésed ingyenesen!

Ingyenes hirdetésfeladás
Havi több mint egymillió ingatlankereső
Egyszerű és gyors hirdetésfeladás
Hirdetésfeladás
Bank360Bank360
Személyi kölcsön
Lakáshitel
Bankszámla
Utasbiztosítás
1 000 000 Ft50 000 000 Ft
6 hónap50 hónap