Ingatlan360 logo
  • Magánszemélyeknek
  • Közvetítőknek
  • Hirdetésfeladás
  • Árak és hirdetési lehetőségek
  • Mennyit ér az ingatlanom?
  • Ingatlan statisztikák

Eladó téglalakás Barackos - Tetőtéri, Budakeszi

Barackos - Tetőtéri, Budakeszi képe
17
Barackos - Tetőtéri, Budakeszi 2. képe
Barackos - Tetőtéri, Budakeszi 3. képe17
45 M Ft
957 447 Ft / m²
47m2
Alapterület
2
Szoba
Fix 3%-os Otthon Start lakáshitel
Szobák száma
2
Építés éve
nincs megadva
Ingatlan állapota
Új
Emelet
2.
Parkolás
Nincs
Légkondicionáló
Nincs
Közös költség
nincs megadva
Fűtés
Cirkófűtés
Fal építési anyaga
Tégla
Lift
Nincs
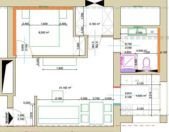
Az ingatlanról:
Közvetlenül a Budakeszi Vadaspark szomszédságában található lakóparkban kínálunk eladásra tetőtéri lakásokat.

A lakások előkészített és kulcsrakész állapotban is megvásárolhatóak.

• 47 m2 bruttó alapterület, (előkészített) befejezésre váró ingatlan ára: 30 MFt.
• 47 m2 bruttó alapterület, kulcsrakész állapot "mintatervek" alapján megvalósított ingatlan ára: 45 MFt.

A "mintatervek" alapján egy nettó hasznos 42 m2 alapterületű lakás lenne kialakítva, amely nappali + hálószoba + gardrób + konyha + fürdőszoba helyiségekből állna.

• Nappali 21,18 m2
• Hálószoba 8,29 m2
• Gardrób: 3,18 m2
• Konyha: 4,69 m2
• Fürdőszoba – mosdó 4,5 m2

A belmagasság lehetővé teszi a lakóterület bővítését akár 15-20 m2-rel is. Újratervezéssel szabadon lehet kialakítani a lakás végleges elrendezését az egyedi ötletek és a saját igények testreszabásának figyelembevételével..

Parkolni a lakópark előtti területen lehet igény szerint teremgarázs is bérelhető.

Az ingatlan banki hitel nélkül vásárolható meg.

Az ingatlan megtekintése előre egyeztetett időpontban lehetséges, akár hétvégén is.
Amennyiben felkeltette az érdeklődését, további kérdéseivel kapcsolatban várom jelentkezését. ...TOVÁBBI, TÖBBEZRES INGATLAN KÍNÁLAT: www.gdn-ingatlan.hu - GDN azonosító: 374631

Töltsd fel ingatlanhirdetésed ingyenesen!

Ingyenes hirdetésfeladás
Havi több mint egymillió ingatlankereső
Egyszerű és gyors hirdetésfeladás
Hirdetésfeladás
eladó
László IstvánIngatlanreferens
+36 30...
iroda logo
GDN IngatlanhálózatIroda további hirdetései

Töltsd fel ingatlanhirdetésed ingyenesen!

Ingyenes hirdetésfeladás
Havi több mint egymillió ingatlankereső
Egyszerű és gyors hirdetésfeladás
Hirdetésfeladás
Bank360Bank360
Személyi kölcsön
Lakáshitel
Bankszámla
Utasbiztosítás
1 000 000 Ft50 000 000 Ft
6 hónap50 hónap