Ingatlan360 logo
  • Magánszemélyeknek
  • Közvetítőknek
  • Hirdetésfeladás
  • Árak és hirdetési lehetőségek
  • Mennyit ér az ingatlanom?
  • Ingatlan statisztikák

Eladó téglalakás Fonyód

Fonyód képe
6
Fonyód 2. képe
Fonyód 3. képe6
92,9 M Ft
1 498 758 Ft / m²
62m2
Alapterület
3
Szoba
Fix 3%-os Otthon Start lakáshitel
Szobák száma
3
Építés éve
2024
Ingatlan állapota
Új
Emelet
nincs megadva
Parkolás
nincs megadva
Légkondicionáló
Van
Közös költség
nincs megadva
Fűtés
Egyéb
Fal építési anyaga
Tégla
Lift
Nincs
Az ingatlanról:
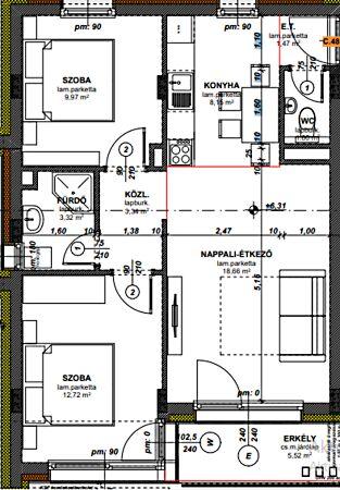
Kitűnő befektetési lehetőséget kinál a CasaNetWork Ingatlanszövetség!!! Vízközeli, új építésű, akár örökpanorámás kilátású, mai műszaki követelményeknek megfelelő, téglából épült társasházi lakásokat!!!Fonyódligeten élje meg az álmát!!! A vasútállomástól 50 méterre található lakások a lehető legjobb helyen találhatók befektetésre vagy akár saját célra. Ha nincs autója és éppen vonattal közlekedik, 1 percre a vasútállomástól csak le kell rakni a lakásban a bőröndöt és 200 métert suhanva egy kényelmes papucsban már csobbanhatunk a strandon. Nincs szükség törülközőre vagy csomagra hogy helyet keressünk a parton és felügyeljük rá. Szabadon fürödhetünk, úszkálhatunk, utána meg a társasház tetején lévő napozóágyas részen meg is szárítkozhatunk, miközben gyönyörködhetünk a balatoni panorámás kilátásban vagy a csodás naplementében. Ez egy igazi életérzés amit nem szabad kihagyni!!A Kunszentmártoni CasaNetWork Ingatlaniroda megvételre kínál Fonyódligeten egy új építésű 2. emeleti lakást, erkéllyel! - a 3 szintes, 51 lakásos társasházban a második emeleten helyezkedi el - tégla építésű, 59 m2-es, több mint 5 m2-es erkély tartozik hozzá - a lakásban előtér, 2 szoba, nappali+étkező közlekedő, fürdőszoba, illemhelyiség, konyha és erkély került kialakításra - műszaki leírás kérhető hozzá és akár a hideg vagy meleg burkolatokat is ki tudja választani a megadott m2 áron az igényének megfelelően - az otthon melegéről önálló levegő-víz hőszivattyú gondoskodik, beépített fan-coil berendezésekkel, "H" tarifás, így minimális a lakás rezsije - a magas műszaki felszereltséggel rendelkező lakások BB energetikai besorolásúak, CSOK és Állami támogatások igényelhetők! - a nyílászárók műanyagból készültek   - tárolóhely, parkolóhely vagy garázs igényelhető hozzá térítés ellenében - kiváló infrastruktúra, Fonyód központi része is csak 2-3 kilométerre található - a lakások végleges átadása hamarosan megtörténik - bármilyen kérdése van akár fizetési feltételekről, vagy a lakásokkal kapcsolatosan információról, leírásokról, elérhetőségeimen megteheti     Amennyiben az 183800238 számú eladó fonyódligeti lakások, vagy bármely a kínálatunkban található ingatlan felkeltette érdeklődését, kérem hívjon bizalommal!/A hirdetésben szereplő információk a megbízótól kapott adatok alapján készültek./Irodánk teljes körű szolgáltatással áll ügyfelei rendelkezésére: hitelügyintézés, ügyvédi szolgáltatás, ingatlan értékbecslés, energetikai tanúsítvány készítéseCasaNetWork-Ingatlanban otthon vagyunk!

Töltsd fel ingatlanhirdetésed ingyenesen!

Ingyenes hirdetésfeladás
Havi több mint egymillió ingatlankereső
Egyszerű és gyors hirdetésfeladás
Hirdetésfeladás
eladó
Drégelyvári ÁrpádIngatlanreferens
+36 20...
iroda logo
CasaNetWork KunszentmártonIroda további hirdetései

Töltsd fel ingatlanhirdetésed ingyenesen!

Ingyenes hirdetésfeladás
Havi több mint egymillió ingatlankereső
Egyszerű és gyors hirdetésfeladás
Hirdetésfeladás
Bank360Bank360
Személyi kölcsön
Lakáshitel
Bankszámla
Utasbiztosítás
1 000 000 Ft50 000 000 Ft
6 hónap50 hónap