Ingatlan360 logo
  • Magánszemélyeknek
  • Közvetítőknek
  • Hirdetésfeladás
  • Árak és hirdetési lehetőségek
  • Mennyit ér az ingatlanom?
  • Ingatlan statisztikák

Eladó téglalakás Debrecen

Debrecen képe
4
Debrecen 2. képe
Debrecen 3. képe4
62,2 M Ft
1 554 750 Ft / m²
40m2
Alapterület
2
Szoba
Szobák száma
2
Építés éve
2025
Ingatlan állapota
nincs megadva
Emelet
nincs megadva
Parkolás
nincs megadva
Légkondicionáló
Nincs
Közös költség
nincs megadva
Fűtés
Távfűtés
Fal építési anyaga
nincs megadva
Lift
Nincs
Az ingatlanról:
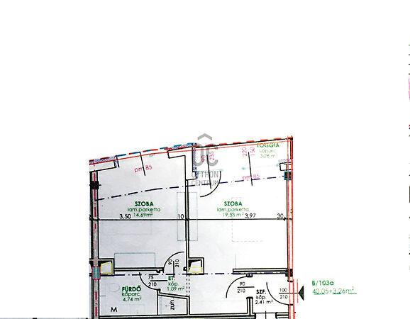
Debrecen abszolút Belvárosában, de mégis csendes övezetben, modern, egyedi megjelenésű, liftes társasház épül a földszinten 4 üzlettel és a -1 szinten teremgarázs parkolókkal. A lakások között vannak földszinti kertkapcsolatosak, és penthouse jellegűek is. A projekt tervezésénél, az elsődleges szempont az otthonos, élhető lakások építése volt. Az épületben helyet kapó lakások mindegyike egyedileg kialakított tágas terekkel, jó funkcionalitással és nagy méretű loggiákkal, teraszokkal rendelkezik. A lakások minőségi anyagok felhasználásával készülnek, a legkorszerűbb 3 rétegű üvegezésű ablakokkal, hőszivattyús klímával ellátottak. A belvárosban található ingatlan pár perc sétára található a Nagytemplomtól, a Piactól és a Bevásárló központoktól. Egyéb információért hívjon bizalommal. Ez az 1. emeleti lakás 40,05 nm-es, nappali-étkező-konyha, + 1 szobás, 3,26 nm-es erkéllyel.
Projekt bemutatása

-
Villanyáram: van.
Vízellátás: van.
Csatornázás: van.
Gázellátás: nincs.

Töltsd fel ingatlanhirdetésed ingyenesen!

Ingyenes hirdetésfeladás
Havi több mint egymillió ingatlankereső
Egyszerű és gyors hirdetésfeladás
Hirdetésfeladás
eladó
Rácz ZsoltIngatlanreferens
+36 70...

Töltsd fel ingatlanhirdetésed ingyenesen!

Ingyenes hirdetésfeladás
Havi több mint egymillió ingatlankereső
Egyszerű és gyors hirdetésfeladás
Hirdetésfeladás
Bank360Bank360
Személyi kölcsön
Lakáshitel
Bankszámla
Utasbiztosítás
1 000 000 Ft50 000 000 Ft
6 hónap50 hónap