Ingatlan360 logo
  • Magánszemélyeknek
  • Közvetítőknek
  • Hirdetésfeladás
  • Árak és hirdetési lehetőségek
  • Mennyit ér az ingatlanom?
  • Ingatlan statisztikák

Eladó téglalakás Debrecen

Debrecen képe
10
Debrecen 2. képe
Debrecen 3. képe10
59 M Ft
1 439 024 Ft / m²
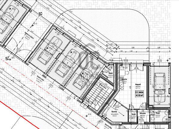
41m2
Alapterület
2
Szoba
Fix 3%-os Otthon Start lakáshitel
Szobák száma
2
Építés éve
2025
Ingatlan állapota
nincs megadva
Emelet
nincs megadva
Parkolás
nincs megadva
Légkondicionáló
Nincs
Közös költség
nincs megadva
Fűtés
nincs megadva
Fal építési anyaga
nincs megadva
Lift
Nincs
Az ingatlanról:

Projekt bemutatása

Debrecen – Hatvan utcai kert
Modern, energiahatékony újépítésű lakások eladók – már csak 3 lakás leköthető!

Debrecen nyugati, kertvárosias részén, a Hatvan utcai kertben épül a 3 ütemes, 21 lakásos modern társasház következő épülete.
A 3. ütemből már csak 3 lakás elérhető!

Lakások
41,9–81,8 m² alapterület
minden lakáshoz erkély/terasz
földszinti lakások saját kerttel
ideális első otthonnak, családoknak vagy befektetésnek

Műszaki tartalom
AA+ energetikai besorolás
hőszivattyús mennyezetfűtés–hűtés + padlófűtés
Porotherm 30 N+F tégla
15 cm grafitos hőszigetelés
3 rétegű, argon töltésű nyílászárók
alacsony rezsiköltség
Burkolatok
hidegburkolat: 9 000 Ft/m²
melegburkolat: 5 000 Ft/m²
Konyhabútor nincs az árban.
Az ár kulcsrakész állapotra vonatkozik.

Garázsok
A földszinten 21 db, 18 m²-es garázs épül
Irányár: 13 M Ft

Lokáció
csendes, kertvárosias környezet
gyors belvárosi megközelítés
kiváló infrastruktúra
hosszú távon értékálló környék

Építkezés és átadás
építkezés kezdete: várhatóan 2026 január
műszaki átadás: 2026. III–IV. negyedév

Finanszírozás
készpénz
hitel
CSOK igényelhető
Már csak 3 lakás maradt – gyorsan fogynak a helyek!
További információért, alaprajzokért vagy egyeztetésért várom hívását!
Villanyáram: van.
Vízellátás: van.
Csatornázás: van.
Gázellátás: nincs.

Töltsd fel ingatlanhirdetésed ingyenesen!

Ingyenes hirdetésfeladás
Havi több mint egymillió ingatlankereső
Egyszerű és gyors hirdetésfeladás
Hirdetésfeladás
eladó
Szaszala ZsoltIngatlanreferens
+36 70...

Töltsd fel ingatlanhirdetésed ingyenesen!

Ingyenes hirdetésfeladás
Havi több mint egymillió ingatlankereső
Egyszerű és gyors hirdetésfeladás
Hirdetésfeladás
Bank360Bank360
Személyi kölcsön
Lakáshitel
Bankszámla
Utasbiztosítás
1 000 000 Ft50 000 000 Ft
6 hónap50 hónap