Ingatlan360 logo
  • Magánszemélyeknek
  • Közvetítőknek
  • Hirdetésfeladás
  • Árak és hirdetési lehetőségek
  • Mennyit ér az ingatlanom?
  • Ingatlan statisztikák

Eladó téglalakás Kisbojtár, Budapest, III. kerület

Kisbojtár, Budapest, III. kerület képe
7
Kisbojtár, Budapest, III. kerület 2. képe
Kisbojtár, Budapest, III. kerület 3. képe7
213 M Ft
2 597 561 Ft / m²
82m2
Alapterület
3
Szoba
Szobák száma
3
Építés éve
nincs megadva
Ingatlan állapota
Új
Emelet
2.
Parkolás
1 garázs
Légkondicionáló
Nincs
Közös költség
nincs megadva
Fűtés
nincs megadva
Fal építési anyaga
Tégla
Lift
Nincs
Az ingatlanról:
Oázis Óbuda szívében – Napsütötte teraszok, elegáns otthonok, kertvárosi hangulat.

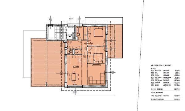
Alapterület: 82,89 m²

Teraszok összesen: 92,64 m²

Ár: 213 M Ft
A teremgarázs ára 8 M Ft, melyet kötelező megvenni

Energetikai besorolás: A+


A beruházásról:

A Kisbojtár Projekt a III. kerület egyik legkedveltebb részén, a Bojtár utca és a Kisbojtár utca találkozásánál épült. A Bécsi és Szentendrei utak között található lakóövezet csendes, barátságos és kertvárosias hangulatú, ugyanakkor remek közlekedési kapcsolatokkal rendelkezik.

Bölcsőde, óvoda, iskolák, valamint több szuper- és hipermarket pár perc alatt elérhetők — így az otthon egyszerre nyugodt és praktikus elhelyezkedésű, ideális választás az igényes otthonkeresők számára.


Az épület és a lakások:

A projekt két épületében összesen 8 lakás került kialakításra:

63 m²-től egészen 83 m²-es nagyteraszos penthouse lakásokig

Földszinten kertkapcsolatos otthonok.

Emeleteken tágas teraszos lakások.

Felső szinteken egy-egy különleges elrendezésű lakás

A pinceszinten teremgarázs-beállók és közös gépészeti helyiségek találhatók. Az épületek kialakítását világos terek, átgondolt alaprajzok, esztétikus és praktikus megoldások jellemzik.


Műszaki tartalom
A+ energetikai besorolás

Daikin levegő–levegő hőszivattyús fűtés, padlófűtéssel

Szobánként 1–1 hűtő-fűtő fancoil

5 légkamrás, 3 rétegű nyílászárók

Elektromos alumínium redőny előkészítés

Nagylapos fürdőszobai burkolatok

15 cm kőzetgyapot homlokzati szigetelés

A korszerű gépészetnek és szigetelésnek köszönhetően egész évben kellemes belső klíma és alacsony fenntartási költség biztosított.


A kínált lakás

Ez a különleges penthouse jellegű, 82,89 m²-es II. emeleti lakás a projekt ékköve. A 92,64 m²-es, körbeölelő terasz páratlan szabadtéri életteret kínál — tökéletes helyszín reggeli kávéhoz, pihenéshez vagy baráti összejövetelekhez.

Az ingatlan azonnal beköltözhető, per- és tehermentes.

Ár: 213 M Ft

Garázs külön megvásárolható: 8 M Ft


Miért különleges?
Exkluzív, kis lakásszámú társasház

Penthouse jellegű lakás hatalmas terasszal

Modern technológia, energiahatékonyság

Kiváló elhelyezkedés, teljes infrastruktúra

Presztízs, értékállóság, remek befektetés ...TOVÁBBI, TÖBBEZRES INGATLAN KÍNÁLAT: www.gdn-ingatlan.hu - GDN azonosító: 388133

Töltsd fel ingatlanhirdetésed ingyenesen!

Ingyenes hirdetésfeladás
Havi több mint egymillió ingatlankereső
Egyszerű és gyors hirdetésfeladás
Hirdetésfeladás
eladó
Vargová EvaIngatlanreferens
+36 70...
iroda logo
GDN IngatlanhálózatIroda további hirdetései

Töltsd fel ingatlanhirdetésed ingyenesen!

Ingyenes hirdetésfeladás
Havi több mint egymillió ingatlankereső
Egyszerű és gyors hirdetésfeladás
Hirdetésfeladás
Bank360Bank360
Személyi kölcsön
Lakáshitel
Bankszámla
Utasbiztosítás
1 000 000 Ft50 000 000 Ft
6 hónap50 hónap