Ingatlan360 logo
  • Magánszemélyeknek
  • Közvetítőknek
  • Hirdetésfeladás
  • Árak és hirdetési lehetőségek
  • Mennyit ér az ingatlanom?
  • Ingatlan statisztikák

Eladó téglalakás Bakáts, Budapest, IX. kerület

Bakáts, Budapest, IX. kerület képe
19
Bakáts, Budapest, IX. kerület 2. képe
Bakáts, Budapest, IX. kerület 3. képe19
125 M Ft
1 157 407 Ft / m²
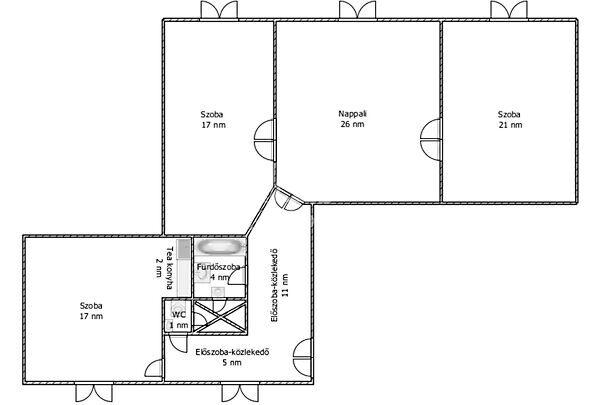
108m2
Alapterület
4
Szoba
Szobák száma
4
Építés éve
nincs megadva
Ingatlan állapota
Jó állapotú
Emelet
Földszint
Parkolás
Nincs
Légkondicionáló
Nincs
Közös költség
nincs megadva
Fűtés
Cirkófűtés
Fal építési anyaga
Tégla
Lift
Van
Az ingatlanról:
Belvárosi befektetés!

Figyelem: az ingatlan jelenleg hosszú távra bérbe lett adva, így a vásárlás kizárólagos feltétele a jól fizető bérlő megtartása!! A bérleti díj 301.000 Ft/hó + rezsi. A bérleti szerződés 2024.08 01- től minimum 2 év, de opcionálisan akár 5 év időtartamra szól.

Reprezentatív főtér, sétáló utca, kávézók, éttermek, nos tulajdonosként ez a környezet fogadja minden érkezésnél és távozásnál.
A gondos közös képviseletnek köszönhetően a társasház folyamatosan karbantartott. A KEDVEZŐ KÖZÖS KÖLTSÉG-be épített tartalékképzésnek köszönhetően a ház jelentős megtakarítással rendelkezik!

A 107 négyzetméter alapterületű ingatlan, hatalmas nappalijával és a 3 nagyméretű szobájával jelenleg iskolaként funkcionál.

Figyelem: a társasház rendelkezik egy elvi hozzájárulással, melynek értelmében a jelenlegi lépcsőházi bejárattól függetlenül egy másik - az utcafront felé közvetlen - bejárat is nyithat! Ily módon az ingatlan bármely utcaportálos szolgáltatás üzemeltetésére, illetve cég székhelyként is optimális lehet.

Lakás jellemzői:
- műanyag (2 rétegű) nyílászárók + redőnyök,
- kombi-cirkó kazán,
- hatalmas terek,
- beköltözhető állapot,
- kedvező (18.000Ft) közös költség,
- utcafronti bejárat kialakításának lehetősége. ...TOVÁBBI, TÖBBEZRES INGATLAN KÍNÁLAT: www.gdn-ingatlan.hu - GDN azonosító: 369668

Töltsd fel ingatlanhirdetésed ingyenesen!

Ingyenes hirdetésfeladás
Havi több mint egymillió ingatlankereső
Egyszerű és gyors hirdetésfeladás
Hirdetésfeladás
eladó
Kecskeméti ZsoltIngatlanreferens
+36 30...
iroda logo
GDN IngatlanhálózatIroda további hirdetései

Töltsd fel ingatlanhirdetésed ingyenesen!

Ingyenes hirdetésfeladás
Havi több mint egymillió ingatlankereső
Egyszerű és gyors hirdetésfeladás
Hirdetésfeladás
Bank360Bank360
Személyi kölcsön
Lakáshitel
Bankszámla
Utasbiztosítás
1 000 000 Ft50 000 000 Ft
6 hónap50 hónap