Ingatlan360 logo
  • Magánszemélyeknek
  • Közvetítőknek
  • Hirdetésfeladás
  • Árak és hirdetési lehetőségek
  • Mennyit ér az ingatlanom?
  • Ingatlan statisztikák

Eladó téglalakás Mikes, Kecskemét

Mikes, Kecskemét képe
5
Mikes, Kecskemét 2. képe
Mikes, Kecskemét 3. képe5
120 M Ft
1 500 000 Ft / m²
80m2
Alapterület
4
Szoba
Szobák száma
4
Építés éve
2024
Ingatlan állapota
Új
Emelet
1.
Parkolás
nincs megadva
Légkondicionáló
Nincs
Közös költség
nincs megadva
Fűtés
Egyéb
Fal építési anyaga
Tégla
Lift
Nincs
Az ingatlanról:
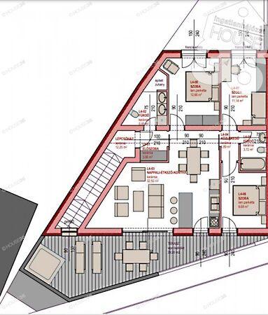
CSAK NÁLUNK CSAK NÁLUNK ÉS CSAK 4 DB Kecskemét belvárosában EXCLUSIVE lakások eladók A belváros szívében de csendes kisutcában egy 4 lakásos újonnan épülő társasházban kínáljuk ezeket az ingatlanokat A társasházban 3 db lakáson belül 2 szintes saját kertkapcsolatos sorházi lakás kerül kialakításra illetve 1 db exclusive 1 szintes lakás külön bejárattal amerikai konyhával nappalival 3 hálóval 2 fürdővel nagy terasszal Mindegyik lakáshoz tartozik 1 db fedett gépkocsibeálló zárt udvaron belül elektromos töltővel 5 db kerül kialakításra Az épületben hőszivattyús hűtés fűtés és napelemek lesznek kialakítva lakás: 92 45 m2 terasz: 16 27 m2 erkély: 4 56 m2​ lakás: 92 45 m2 terasz: 16 27 m2 erkély: 4 56 m2 lakás: 97 01 m2 terasz: 19 10 m2 erkély: 4 56 m2 lakás: 80 14 m2 terasz: 29 20 m2 Az iroda legfrissebb aktuális kínálatát a HOUSE36 saját weboldalán találja

Töltsd fel ingatlanhirdetésed ingyenesen!

Ingyenes hirdetésfeladás
Havi több mint egymillió ingatlankereső
Egyszerű és gyors hirdetésfeladás
Hirdetésfeladás
eladó
Bagó DiánaIngatlanreferens
+36 70...
iroda logo
HOUSE36 IngatlanhálózatIroda további hirdetései

Töltsd fel ingatlanhirdetésed ingyenesen!

Ingyenes hirdetésfeladás
Havi több mint egymillió ingatlankereső
Egyszerű és gyors hirdetésfeladás
Hirdetésfeladás
Bank360Bank360
Személyi kölcsön
Lakáshitel
Bankszámla
Utasbiztosítás
1 000 000 Ft50 000 000 Ft
6 hónap50 hónap