Ingatlan360 logo
  • Magánszemélyeknek
  • Közvetítőknek
  • Hirdetésfeladás
  • Árak és hirdetési lehetőségek
  • Mennyit ér az ingatlanom?
  • Ingatlan statisztikák

Eladó téglalakás Kecskemét

Kecskemét képe
4
Kecskemét 2. képe
Kecskemét 3. képe4
72 M Ft
288 000 Ft / m²
250m2
Alapterület
5
Szoba
Fix 3%-os Otthon Start lakáshitel
Szobák száma
5
Építés éve
nincs megadva
Ingatlan állapota
Jó állapotú
Emelet
Földszint
Parkolás
Udvarban
Légkondicionáló
Nincs
Közös költség
nincs megadva
Fűtés
Egyéb
Fal építési anyaga
Tégla
Lift
Nincs
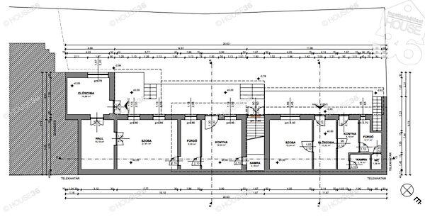
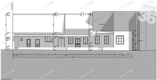
Az ingatlanról:
Kecskemét történelmi belvárosában eladó egy igazán különleges ingatlan Az épület kiváló befektetés a belvárost kedvelők és a felújítást kedvelők számára Az épület 2 hrsz on van bejegyezve Egy nagyobb de akár 3 kisebb ingatlan is kialakítható a jelenlegi épületrészekből vagy akár el is bontható Az épület földszinti része 135 4 m2 és 3 bejárattal rendelkezik az emelet jelenleg 100 m2 összesen 235 m2 Építési tervekkel önálló teljeskörű tulajdonjog használattal a kb 300 m2 es udvarra 2 beállási lehetőséggel Ha felkeltette érdeklődését keressen meg és megmutatom a lehetőségeket ​Az adatok tájékoztató jellegűek FIGYELEM Az adatok Megbízónktól kapott információk alapján készültek pontosságukért felelősséget nem tudunk vállalni Hívjon szolgáltatásaink Vevőink részére díjmentesek Amennyiben eladó vagy kiadó ingatlana van kérem forduljon hozzám bizalommal Az iroda legfrissebb aktuális kínálatát a HOUSE36 saját weboldalán találja

Töltsd fel ingatlanhirdetésed ingyenesen!

Ingyenes hirdetésfeladás
Havi több mint egymillió ingatlankereső
Egyszerű és gyors hirdetésfeladás
Hirdetésfeladás
eladó
Várnagy KrisztinaIngatlanreferens
+36 70...
iroda logo
HOUSE36 IngatlanhálózatIroda további hirdetései

Töltsd fel ingatlanhirdetésed ingyenesen!

Ingyenes hirdetésfeladás
Havi több mint egymillió ingatlankereső
Egyszerű és gyors hirdetésfeladás
Hirdetésfeladás
Bank360Bank360
Személyi kölcsön
Lakáshitel
Bankszámla
Utasbiztosítás
1 000 000 Ft50 000 000 Ft
6 hónap50 hónap