Ingatlan360 logo
  • Magánszemélyeknek
  • Közvetítőknek
  • Hirdetésfeladás
  • Árak és hirdetési lehetőségek
  • Mennyit ér az ingatlanom?
  • Ingatlan statisztikák

Eladó téglalakás Komárom

Komárom képe
9
Komárom 2. képe
Komárom 3. képe9
54,8 M Ft
1 033 245 Ft / m²
53m2
Alapterület
2
Szoba
Fix 3%-os Otthon Start lakáshitel
Szobák száma
2
Építés éve
nincs megadva
Ingatlan állapota
nincs megadva
Emelet
nincs megadva
Parkolás
nincs megadva
Légkondicionáló
Nincs
Közös költség
nincs megadva
Fűtés
Egyéb
Fal építési anyaga
nincs megadva
Lift
Nincs
Az ingatlanról:
ÚJ ÉPÍTÉSŰ, MODERN OTTHONOK KOMÁROM LÁTVÁNYOSAN FEJLŐDŐ, KEDVELT RÉSZÉN – ERKÉLLYEL, SAJÁT TÁROLÓVAL ÉS PARKOLÓVAL!

KULCSRAKÉSZ ÁTADÁS: 2025 ŐSZÉN

Ha minőségi otthont keresel, vagy biztos befektetésben gondolkodsz, ezt a lehetőséget nem érdemes kihagynod!

Miért válaszd ezt a projektet?
- Gazdaságos fenntartás – modern hőszivattyús fűtési és hűtési rendszer
- Korszerű technológia – minőségi építőanyagok és 3 rétegű üvegezésű nyílászárók
- Tökéletes elhelyezkedés – közel a Duna-parthoz, a Csillag erődhöz és a termálfürdőhöz
- Kiváló közlekedés – pár perc a városközpont

A társasházról:
- 3 emeletes, 15 lakásos modern, zárt épület
- A földszinten üzlethelyiség
- Minden lakáshoz erkély, saját tároló és parkoló tartozik

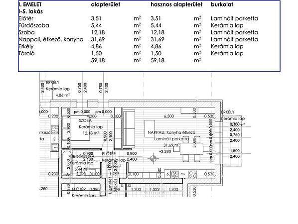
I. emelet, 5. lakás:
➡ Alapterület: 52,82 m² – 47.538.000 Ft
➡ Erkély: 4,86 m² – 4.374.000 Ft
➡ Tároló: 1,5 m² – 1.350.000 Ft
➡ Kültéri parkoló: 1.500.000 Ft
Bruttó összesen: 54.762.000 Ft

Kulcsrakész műszaki tartalom:
Szerkezet és falak:
- 38 cm égetett kerámia falazóelem
- Homlokzati szigetelés – DRYVIT rendszer CEMIX vakolattal
- Válaszfalak: 10 cm-es POROTHERM válaszfallap
- Lakáselválasztó fal: 20 cm-es SILKA hanggátló fal

Nyílászárók:
- Műanyag profilrendszerű ablakok és erkélyajtók – 3 rétegű üvegezéssel (REHAU)
- Árnyékolástechnika

Belső ajtók:
- Furatolt faforgácslap ajtók átfogótokkal, festett kivitelben

Felületképzés:
- Vakolt, glettelt falak, 2 rétegű diszperziós festéssel
- Fürdőszoba teljes fali csempézéssel

Gépészet:
- Lakásonként levegő-víz hőszivattyús rendszer – padlófűtés és fan-coilos hűtés
- Áramellátás: 1×32 A + H tarifa a hőszivattyúnak

Villamoshálózat:
- Kapcsolók és dugaljak: Schneider típusú szerelvények
- Lámpa előkészítés biztosított

Gyengeáramú szerelés:
- Kaputelefon rendszer
- TV és internet hálózat (PICK-UP Kft. szolgáltató)

Beépített szaniterek:
- Fürdőszoba: Alföldi fali WC, Como mosdó (60 cm) + szekrény, 170×75 cm fürdőkád, Kludi csaptelepek
- 1 db törölközőszárítós elektromos radiátor
- Konyhabútor opcionálisan rendelhető

Beépített burkolatok ára:

Fürdő + WC csempe: 5.500 Ft + ÁFA/m²
Járólap: 5.500 Ft + ÁFA/m²
Szobák és nappali laminált padló: 3.900 Ft + ÁFA/m²
Erkély: fagyálló kerámia

Finanszírozás és ügyintézés:
INGYENES hitelszűrés és tanácsadás – 18 bank ajánlatából választhatod ki a legjobbat!
CSOK Plusz, kamattámogatott hitelek és Babaváró hitel igényelhető
Teljes körű jogi képviselet

Ne dönts, amíg ezt az ingatlant nem láttad!
Érdeklődj most és foglald le álmaid otthonát! Nagy Edit 06 30 6 226 317

Töltsd fel ingatlanhirdetésed ingyenesen!

Ingyenes hirdetésfeladás
Havi több mint egymillió ingatlankereső
Egyszerű és gyors hirdetésfeladás
Hirdetésfeladás
eladó
Nagy EditIngatlanreferens
+36 30...
iroda logo
Dot-Ing 2001 Kft. Iroda további hirdetései

Töltsd fel ingatlanhirdetésed ingyenesen!

Ingyenes hirdetésfeladás
Havi több mint egymillió ingatlankereső
Egyszerű és gyors hirdetésfeladás
Hirdetésfeladás
Bank360Bank360
Személyi kölcsön
Lakáshitel
Bankszámla
Utasbiztosítás
1 000 000 Ft50 000 000 Ft
6 hónap50 hónap