Ingatlan360 logo
  • Magánszemélyeknek
  • Közvetítőknek
  • Hirdetésfeladás
  • Árak és hirdetési lehetőségek
  • Mennyit ér az ingatlanom?
  • Ingatlan statisztikák

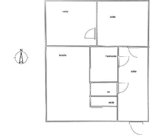
Eladó panel lakás Mátészalka

Mátészalka képe
20
Mátészalka 2. képe
Mátészalka 3. képe20
31 M Ft
596 154 Ft / m²
52m2
Alapterület
2
Szoba
Fix 3%-os Otthon Start lakáshitel
Szobák száma
2
Építés éve
1974
Ingatlan állapota
Jó állapotú
Emelet
3.
Parkolás
Udvarban
Légkondicionáló
Nincs
Közös költség
nincs megadva
Fűtés
Központi (egyedi mérővel)
Fal építési anyaga
Panel
Lift
Nincs
Az ingatlanról:
Mátészalkán eladó lakás a város szívében kiváló befektetési lehetőség akár Otthon Start Hitellel is megvásárolható Eladásra kínálunk egy jó állapotú 52m2 es 2 szobás lakást a város egyik csendes részén egy átlagos állapotú társasház 3 emeletén A lakás legfőbb előnyei: Erkély tartozik hozzá amely ideális lehet pihenésre vagy növények elhelyezésére Az épület előtt nagy kényelmes parkoló található ami ritkaság a környéken A környék kimondottan nyugodt családias hangulatú ugyanakkor rendkívül központi elhelyezkedésű Alacsony közös költség Az ingatlan belső állapota átlagos így felújítás után saját igényekre szabható vagy azonnal hasznosítható bérbeadás céljából Amennyiben hitelre van szüksége ingyenes előbírálatot készítek soron kívül rugalmas időbeosztással az Ön időbeosztásához igazodva Ne hagyja ki ezt a remek lehetőséget keressen bizalommal további információért vagy időpont egyeztetésért OTP Banki hátterünknek köszönhetően finanszírozási igényekben pl Otthon Start Hitelprogram Babaváró Lakáshitel Személyi kölcsön stb díjmentesen soron kívüli ügyintézéssel segítem ügyfeleim Referenciaszám: M318368

Töltsd fel ingatlanhirdetésed ingyenesen!

Ingyenes hirdetésfeladás
Havi több mint egymillió ingatlankereső
Egyszerű és gyors hirdetésfeladás
Hirdetésfeladás
eladó
Kiss GyulaIngatlanreferens
+36 70...
iroda logo
Nyíregyháza Bocskai utca 18-20 - OTP Ingatlanpont IrodaIroda további hirdetései

Töltsd fel ingatlanhirdetésed ingyenesen!

Ingyenes hirdetésfeladás
Havi több mint egymillió ingatlankereső
Egyszerű és gyors hirdetésfeladás
Hirdetésfeladás
Bank360Bank360
Személyi kölcsön
Lakáshitel
Bankszámla
Utasbiztosítás
1 000 000 Ft50 000 000 Ft
6 hónap50 hónap