Ingatlan360 logo
  • Magánszemélyeknek
  • Közvetítőknek
  • Hirdetésfeladás
  • Árak és hirdetési lehetőségek
  • Mennyit ér az ingatlanom?
  • Ingatlan statisztikák

Eladó téglalakás Mosonmagyaróvár

Mosonmagyaróvár képe
7
Mosonmagyaróvár 2. képe
Mosonmagyaróvár 3. képe7
52 M Ft
684 211 Ft / m²
76m2
Alapterület
2
Szoba
Fix 3%-os Otthon Start lakáshitel
Szobák száma
2
Építés éve
1910
Ingatlan állapota
Átlagos
Emelet
1.
Parkolás
nincs megadva
Légkondicionáló
Nincs
Közös költség
nincs megadva
Fűtés
nincs megadva
Fal építési anyaga
nincs megadva
Lift
Nincs
Az ingatlanról:
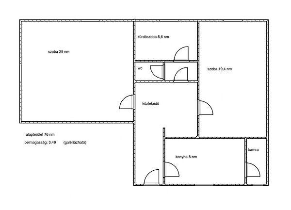
Eladó Mosonmagyaróvár kedvelt ipartelepi részén, egy patinás, 1900-as évek elején épült, masszív téglaépületben található, 76 nm-es, magasföldszinti lakás. Az ingatlan kivételes lehetőségeket rejt: tágas terei, 3,49 méteres belmagassága és stabil szerkezete azonnal magával ragadja a látogatót.

Miért érdemes ezt a lakást választania?

Azonnal költözhető műszaki tartalom: A legfontosabb és legköltségesebb felújításokon már túl vagyunk!

ÚJ FŰTÉSRENDSZER: Korszerű, kondenzációs gázkazán gondoskodik a melegről, így a rezsi alacsonyan tartható.

HŐSZIGETELT NYÍLÁSZÁRÓK: Az ablakokat modern műanyagra cserélték.

Térnövelés felfelé: A 3,49 méteres belmagasság nemcsak elegáns „polgári” életérzést ad, hanem lehetőséget biztosít állógaléria kialakítására is, amivel a hasznos alapterület akár 20-30 nm-rel növelhető!

Befektetői aranybánya – Két lakás egyben? Az alaprajz zseniális elosztásának és a vizesblokkok központi elhelyezkedésének köszönhetően az ingatlan kis ráfordítással két külön bejáratú garzonlakássá vagy egy nappali + 3 hálószobás nagycsaládos otthonná alakítható. (A 29 nm-es nagyszoba önmagában is két helyiségre osztható).

Praktikus extrák: A lakáshoz tartozik két saját pincehelyiség (tárolásra kiváló) és egy hatalmas, rendezett padlásrész használati joga. A lépcsőház tiszta, a lakóközösség csendes, az udvar rendezett, így a nyugalom garantált.

Elhelyezkedés: Kiváló lokáció az ipartelepi részen: közel a munkahelyekhez, mégis nyugodt környezetben. A vastag falak nyáron hűvöset, télen meleget tartanak.

Ez az ingatlan tökéletes választás annak, aki szereti a tágas tereket, de nem akar a gépészeti felújítással bajlódni, illetve befektetőknek, akik a határ közelsége miatt kiadásban gondolkodnak.

Töltsd fel ingatlanhirdetésed ingyenesen!

Ingyenes hirdetésfeladás
Havi több mint egymillió ingatlankereső
Egyszerű és gyors hirdetésfeladás
Hirdetésfeladás
eladó
DIngatlanreferens
+36 30...

Töltsd fel ingatlanhirdetésed ingyenesen!

Ingyenes hirdetésfeladás
Havi több mint egymillió ingatlankereső
Egyszerű és gyors hirdetésfeladás
Hirdetésfeladás
Bank360Bank360
Személyi kölcsön
Lakáshitel
Bankszámla
Utasbiztosítás
1 000 000 Ft50 000 000 Ft
6 hónap50 hónap