Ingatlan360 logo
  • Magánszemélyeknek
  • Közvetítőknek
  • Hirdetésfeladás
  • Árak és hirdetési lehetőségek
  • Mennyit ér az ingatlanom?
  • Ingatlan statisztikák

Eladó téglalakás Mosonmagyaróvár

Mosonmagyaróvár képe
7
Mosonmagyaróvár 2. képe
Mosonmagyaróvár 3. képe7
49,9 M Ft
860 345 Ft / m²
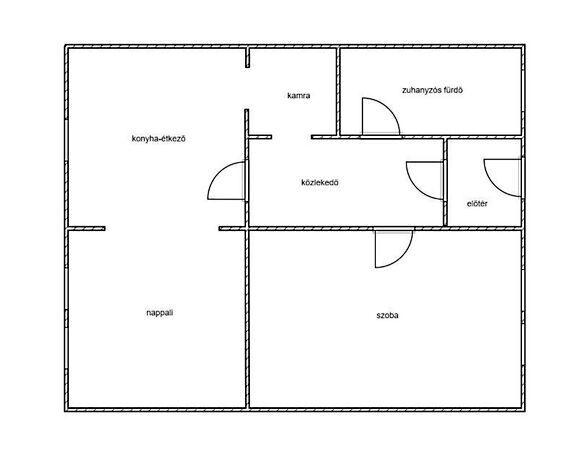
58m2
Alapterület
120m2
Telekterület
2
Szoba
Fix 3%-os Otthon Start lakáshitel
Szobák száma
2
Építés éve
1970
Ingatlan állapota
Átlagos
Emelet
nincs megadva
Parkolás
nincs megadva
Légkondicionáló
Nincs
Közös költség
nincs megadva
Fűtés
nincs megadva
Fal építési anyaga
nincs megadva
Lift
Nincs
Az ingatlanról:
Szeretne egy olyan otthont, ahol nem kell emeleteket másznia, mégis saját kertre és bőséges tárolóra vágyik? Megtalálta!

Miért jó ez Önnek?

Garantált kényelem: 58 nm-es, földszinti, akadálymentesen megközelíthető lakás.

Alacsony rezsi, biztos meleg: Gázkazán mellett egy hangulatos fatüzelésű kályha is gondoskodik a melegről (a hálót is fűti!).

Minden készen áll: Felújított konyha és fürdő (2019), gépesített konyhabútor és modern műanyag nyílászárók redőnyökkel.

Extra tárolás: Dupla garázs, két tároló, saját padlásrész és egy üvegházas kertrész a hobbikhoz!

Helyszín: Mosonmagyaróvár környéke (Alkotmány utca)
Irányár: 49,9 M Ft

Érdekli? Nézzük meg együtt!

Töltsd fel ingatlanhirdetésed ingyenesen!

Ingyenes hirdetésfeladás
Havi több mint egymillió ingatlankereső
Egyszerű és gyors hirdetésfeladás
Hirdetésfeladás
eladó
DIngatlanreferens
+36 30...

Töltsd fel ingatlanhirdetésed ingyenesen!

Ingyenes hirdetésfeladás
Havi több mint egymillió ingatlankereső
Egyszerű és gyors hirdetésfeladás
Hirdetésfeladás
Bank360Bank360
Személyi kölcsön
Lakáshitel
Bankszámla
Utasbiztosítás
1 000 000 Ft50 000 000 Ft
6 hónap50 hónap