Ingatlan360 logo
  • Magánszemélyeknek
  • Közvetítőknek
  • Hirdetésfeladás
  • Árak és hirdetési lehetőségek
  • Mennyit ér az ingatlanom?
  • Ingatlan statisztikák

Eladó téglalakás Pápa

Pápa képe
22
Pápa 2. képe
Pápa 3. képe22
53 M Ft
883 167 Ft / m²
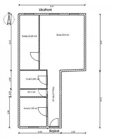
60m2
Alapterület
2
Szoba
Fix 3%-os Otthon Start lakáshitel
Szobák száma
2
Építés éve
1876
Ingatlan állapota
Felújított
Emelet
Földszint
Parkolás
Udvarban
Légkondicionáló
Nincs
Közös költség
nincs megadva
Fűtés
Cirkófűtés
Fal építési anyaga
Tégla
Lift
Nincs
Az ingatlanról:
ELADÓ INGATLAN PÁPA BELVÁROSÁBAN Ne hagyja ki ezt a KIVÉTELES LEHETŐSÉGET hogy egy rendkívül SOKOLDALÚ ingatlan tulajdonosa legyen mindössze pár percre a város központjától A 60 m2 es hasznos alapterületű lakás kettő szobával rendelkezik így elegendő TÉR áll rendelkezésre egy kényelmes életvitelhez Az ingatlan fűtése GÁZ CIRKÓ KAZÁNNAL történik egy nagyfokú ENERGIATAKARÉKOSSÁG és HATÉKONYSÁG jellemzi az otthont A radiátoros hőleadás a hideg téli hónapokban is kényelmet biztosít Az INGATLAN KIALAKÍTÁSA praktikusan szolgálja a lakók igényeit ELHELYEZKEDÉSE IDEÁLIS mindössze 6 perc gyalogtávolságra van Pápa központjától ahol minden szükséges szolgáltatás elérhető: bevásárlóközpont iskola óvoda és orvosi rendelő a közvetlen közelben Az INGATLAN BESOROLÁSA társasházi lakás de 300 m2 es közös használatú udvar is tartozik hozzá amely számtalan KREATÍV LEHETŐSÉGET nyújt a szabadidő hasznos eltöltésére A házban 11 lakás taláhatól A lakáshoz garázs is tartozik mely a vételár részét képezi 10 éve teljes felújításon esett át Megtörtént a vezetékek cseréje új burkolat került kialakításra A lakásban található összes bútor és berendezés szintén a vételár részét képezi Ne hagyja ki ezt a KIVÉTELES lehetőséget tekintse meg személyesen és legyen része Pápa nyüzsgő de mégis családias közösségének Referenciaszám: M315005 52990000 Ft Amennyiben az ingatlan felkeltette érdeklődését esetleg bármivel kapcsolatban kérdése lenne keressen Bizalommal Verrasztó Edina: 36703156380 Referencia szám: M315005 IN

Töltsd fel ingatlanhirdetésed ingyenesen!

Ingyenes hirdetésfeladás
Havi több mint egymillió ingatlankereső
Egyszerű és gyors hirdetésfeladás
Hirdetésfeladás
eladó
Verrasztó Edina IrénIngatlanreferens
+36 70...
iroda logo
Celldömölk Kossuth Lajos utca 15 - OTP Ingatlanpont IrodaIroda további hirdetései

Töltsd fel ingatlanhirdetésed ingyenesen!

Ingyenes hirdetésfeladás
Havi több mint egymillió ingatlankereső
Egyszerű és gyors hirdetésfeladás
Hirdetésfeladás
Bank360Bank360
Személyi kölcsön
Lakáshitel
Bankszámla
Utasbiztosítás
1 000 000 Ft50 000 000 Ft
6 hónap50 hónap