Ingatlan360 logo
  • Magánszemélyeknek
  • Közvetítőknek
  • Hirdetésfeladás
  • Árak és hirdetési lehetőségek
  • Mennyit ér az ingatlanom?
  • Ingatlan statisztikák

Eladó téglalakás Salgótarján

Salgótarján képe
14
Salgótarján 2. képe
Salgótarján 3. képe14
26,4 M Ft
269 388 Ft / m²
98m2
Alapterület
4
Szoba
Fix 3%-os Otthon Start lakáshitel
Szobák száma
4
Építés éve
1999
Ingatlan állapota
Jó állapotú
Emelet
4.
Parkolás
Nincs
Légkondicionáló
Nincs
Közös költség
nincs megadva
Fűtés
Gáz (egyedi)
Fal építési anyaga
nincs megadva
Lift
Nincs
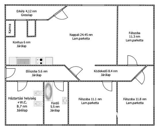
Az ingatlanról:
Salgótarjánban, (Vásártér), 1999-ben épült, kiváló állapotú, kelet-nyugati tájolású, 98 nm-es, 4. emeleti, 1+3 félszobás, tehermentes lakás eladó!

Ritkán elérhető ilyen állapotú, ilyen méretű belvárosi lakás! Használja ki a lehetőséget!

Az ingatlanban 1 szoba (nappali), 3 félszoba, fürdőszoba, külön nyíló W.C., konyha, kamra, közlekedő, előszoba, erkély található.

A fűtést és a meleg víz ellátást gázos kombi cirkó kazán biztosítja.

A lakás egyedi tervek alapján, a társasház tetőterének beépítésével került kialakításra 1999-ben.

Méretéből, tagolásából adódóan nagyobb családok, fiatal házasok ideális választása lehet (CSOK igényelhető 4 gyerekre!).

A lakás felett található tágas padlás kiváló tárolási lehetőséget biztosít.

Igény esetén a nappaliba kéménybe kötött kandalló beépíthető, ezáltal fokozva a komfortérzetet.

A külső szigeteléssel ellátott társasház, az egyik legrendezettebb a környéken, lakói barátságosak, összetartóak.

Besztercei lakás beszámítása, értékegyeztetéssel lehetséges!

A városközpont 5 percen belül gyalogosan elérhető, buszmegálló, vasútállomás, orvosi rendelő, SPAR, piac 200 méteren belül található. alacsony fenntartás, csendes utca, jó közlekedés, közeli belváros, külön fürdő és wc, redőnyözött, erkély, amerikai konyha, külső hőszigetelés, saját tároló, beépített szekrény
(További képekért és információkért kérem hívjon!)

Töltsd fel ingatlanhirdetésed ingyenesen!

Ingyenes hirdetésfeladás
Havi több mint egymillió ingatlankereső
Egyszerű és gyors hirdetésfeladás
Hirdetésfeladás
eladó
Tatár TamásIngatlanreferens
+36 70...
iroda logo
Városi IngatlanirodaIroda további hirdetései

Töltsd fel ingatlanhirdetésed ingyenesen!

Ingyenes hirdetésfeladás
Havi több mint egymillió ingatlankereső
Egyszerű és gyors hirdetésfeladás
Hirdetésfeladás
Bank360Bank360
Személyi kölcsön
Lakáshitel
Bankszámla
Utasbiztosítás
1 000 000 Ft50 000 000 Ft
6 hónap50 hónap