Ingatlan360 logo
  • Magánszemélyeknek
  • Közvetítőknek
  • Hirdetésfeladás
  • Árak és hirdetési lehetőségek
  • Mennyit ér az ingatlanom?
  • Ingatlan statisztikák

Eladó téglalakás Szécsény

Szécsény képe
5
Szécsény 2. képe
Szécsény 3. képe5
13,1 M Ft
279 000 Ft / m²
47m2
Alapterület
2
Szoba
Fix 3%-os Otthon Start lakáshitel
Szobák száma
2
Építés éve
1958
Ingatlan állapota
Felújítandó
Emelet
Földszint
Parkolás
Udvarban
Légkondicionáló
Nincs
Közös költség
nincs megadva
Fűtés
Elektromos
Fal építési anyaga
Tégla
Lift
Nincs
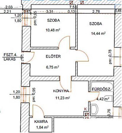
Az ingatlanról:
Eladó Szécsény Történelmi belvárosában egy földszinti 47 nm lakás Kiváló befektetési lehetőség Akár kiadás szálláshely szempontjából akár tovább értékesítésben gondolkodik Ha most szeretne ingatlant vásárolni ez egy kihagyhatatlan ajánlat Kiváló környezet Szécsény központjában Földszint Négyes Lakás 47 nm két szobás konyha étkező előszoba fürdőszoba wc kamra Új hang hőszigetelt fa bejárati ajtó került beépítésre 12 ponton záródó biztonsági zárral A lakást elektromos fűtőpanelekkel ajánlott felszerelni Vastag falai téglából épültek így kiváló a hang és hőszigetelési képessége Víz villany csatorna vezetékek cseréje megtörtént A lakás teljes felújítását új tulajdonosa fejezheti be így teljesen a saját igényeire szabhatja Az épületben 15 lakás található ebből 12 földszinti 3 emeleti Telek 2180 nm Udvarba való bejutást távirányításos úszókapu biztosítja Udvarban parkolók kialakítására lesz lehetőség Szécsény Nógrád Vármegye egyik legrégebbi települése A vármegye északi részén közel a Szlovák határhoz helyezkedik el A környék tele van természeti és kulturális látványosságokkal Az épülettől pár percre található a Forgách Lipthay Kastélymúzeum a Szécsényi Ferences Templom és Kolostor illetve a Szécsényi Várkert Iskola óvoda autóbusz állomás pár perc sétára található Ha felkeltettem érdeklődését kérem hívjon bizalommal akár hétvégén is és tekintsük meg együtt az ingatlant Az ingatlanra vállalkozói vállalati hitel megfelelő feltételek mellett felvehető Babaváró hitel ügyintézését is vállalom Amennyiben a vásárláshoz el kellene adni jelenlegi ingatlanát állok rendelkezésére Az OTP Bank Nyrt által nyújtott kedvezményes hitelek ügyfeleink rendelkezésére állnak Használja ki a lehetőséget hogy kedvezőbb kamatozású OTP Bank hitelhez juthat ha az OTP Ingatlanpont kínálatából vásárol Ingatlant kereső ügyfeleink részére szolgáltatásaink és az ingatlanvásárlással ingatlan felújítással kapcsolatos hitel ügyintézése ingyenes Referencia szám: M312307 IN

Töltsd fel ingatlanhirdetésed ingyenesen!

Ingyenes hirdetésfeladás
Havi több mint egymillió ingatlankereső
Egyszerű és gyors hirdetésfeladás
Hirdetésfeladás
eladó
Fórizs Péter MátyásIngatlanreferens
+36 20...
iroda logo
Gyomaendrőd Szabadság tér 5. - OTP Ingatlanpont IrodaIroda további hirdetései

Töltsd fel ingatlanhirdetésed ingyenesen!

Ingyenes hirdetésfeladás
Havi több mint egymillió ingatlankereső
Egyszerű és gyors hirdetésfeladás
Hirdetésfeladás
Bank360Bank360
Személyi kölcsön
Lakáshitel
Bankszámla
Utasbiztosítás
1 000 000 Ft50 000 000 Ft
6 hónap50 hónap