Ingatlan360 logo
  • Magánszemélyeknek
  • Közvetítőknek
  • Hirdetésfeladás
  • Árak és hirdetési lehetőségek
  • Mennyit ér az ingatlanom?
  • Ingatlan statisztikák

Eladó téglalakás Szeged

Szeged képe
6
Szeged 2. képe
Szeged 3. képe6
39,5 M Ft
896 932 Ft / m²
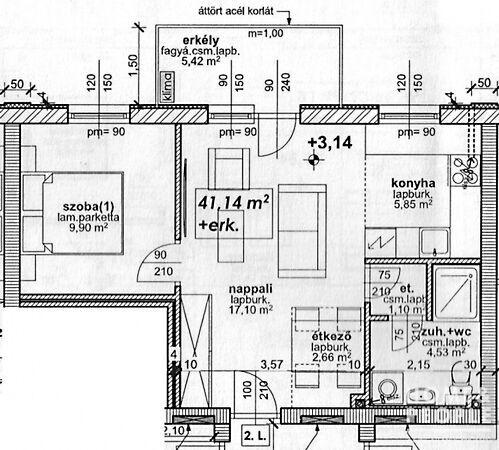
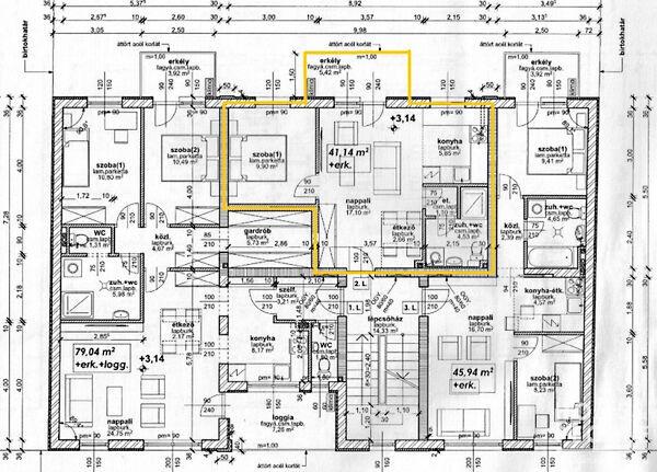
44m2
Alapterület
2
Szoba
Fix 3%-os Otthon Start lakáshitel
Szobák száma
2
Építés éve
2023
Ingatlan állapota
Új
Emelet
1.
Parkolás
nincs megadva
Légkondicionáló
Nincs
Közös költség
nincs megadva
Fűtés
nincs megadva
Fal építési anyaga
nincs megadva
Lift
Nincs
Az ingatlanról:
Home & People Ingatlanazonosító: #19056

 

Ország Gábor Tel:

Amennyiben kollégánk elfoglalt, kérjen visszahívást sms-ben a as telefonszámon!

 

Új építésű lakások és irodák Szeged legjobb négyzetméter árain!

Szegeden, a rókusi városrészben, belvároshoz közel, új építésű, kulcsrakész lakások és két iroda eladó!

 

A feltüntetett árak kulcsrakész állapotra történő befejezésre értendőek!

Kulcsrakész átadás várható időpontja: 2024. III. negyedév

A kivitelező igény és megegyezés szerint a szerkezetkész állapotban is hajlandó eladni a lakásokat, úgy az ár természetesen kedvezőbb!

 

Ugyan itt opcionálisan, garázs, illetve gépkocsi beálló vásárlási lehetőség is van a lakásokhoz.

Garázs: 10M Ft/db

Gépkocsi beálló: 3,5M Ft/db

 

A hirdetéseinkben feltüntetett árak a kivitelezőével megegyezőek!

Cégünk az ügyfeleink részére ingyenesen vállalja, a megegyezés sikeres lebonyolítását, jogi tanácsadást, illetve teljes körű CSOK és hitelügyintézést!

 

Amennyiben felkeltettem érdeklődését, kérem hívjon bizalommal.

Szolgáltatásaink vevőink részére díjmentesek.

Kérje ingyenes tájékoztatásunkat telefonon, vagy személyesen irodánkban a Bécsi krt. 18. szám alatt!

A kínálatában található összes ingatlannal kapcsolatban felvilágosítást tudunk nyújtani, a Home and People Ingatlanügynökség szegedi irodájában a Bécsi krt. 18. szám alatt.

Home and People akciós forint HITELEK:

*Részletekért és díjmentes kalkulációkért keresse hitelspecialista kollégánkat:

Szalai Gábor Hitelspecialista

Töltsd fel ingatlanhirdetésed ingyenesen!

Ingyenes hirdetésfeladás
Havi több mint egymillió ingatlankereső
Egyszerű és gyors hirdetésfeladás
Hirdetésfeladás
eladó
Országh Gábor T.Ingatlanreferens
+36 70...

Töltsd fel ingatlanhirdetésed ingyenesen!

Ingyenes hirdetésfeladás
Havi több mint egymillió ingatlankereső
Egyszerű és gyors hirdetésfeladás
Hirdetésfeladás
Bank360Bank360
Személyi kölcsön
Lakáshitel
Bankszámla
Utasbiztosítás
1 000 000 Ft50 000 000 Ft
6 hónap50 hónap