Ingatlan360 logo
  • Magánszemélyeknek
  • Közvetítőknek
  • Hirdetésfeladás
  • Árak és hirdetési lehetőségek
  • Mennyit ér az ingatlanom?
  • Ingatlan statisztikák

Eladó téglalakás Gerecse, Tatabánya

Gerecse, Tatabánya képe
20
Gerecse, Tatabánya 2. képe
Gerecse, Tatabánya 3. képe20
130 M Ft
1 214 953 Ft / m²
107m2
Alapterület
4
Szoba
Szobák száma
4
Építés éve
nincs megadva
Ingatlan állapota
Új
Emelet
4.
Parkolás
Nincs
Légkondicionáló
Nincs
Közös költség
nincs megadva
Fűtés
Házközponti (egyedi mérővel)
Fal építési anyaga
Tégla
Lift
Van
Az ingatlanról:
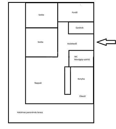
Eladó panorámás LUXUS kivitelezett Penthouse lakás a Gerecse lakóparkban, Tatabánya közkedvelt részén!
Az ingatlan szerkezetkészen lett vásárolva és egyedileg lett beépítve, luxus kivitelezésben, egyedileg ebbe a lakásba tervezve!

Hatalmas amerikai konyhás nappali, étkező, teljesen felszerelt konyhaszekrénnyel, gépesítve, 2 hálószoba és egy gardrób szoba.
Tágas fürdőszoba nagy káddal, zuhanykabinnal, WC-vel.
Külön helyiségben még egy vendég WC is beépítésre került, amiben a szárító és a mosógép található, ami szintén benne van az árban.
Beépített gardrób szekrények ledes megvilágítással, tolóajtókkal hatalmas, plafonig épített minden igényt kielégítően lett kialakítva.
A lakás komplett bútorzata is design lámpákkal megvilágítottak.
Minden ami a képeken látható, a vételár részét képezi!

66nm-es hatalmas L alakú teraszra minden szobából ki lehet jutni.
Tökéletes lehetőség grillezésre, családi vagy baráti beszélgetésre, a nyári napsütésben napozásra, csodálatos panorámás kilátással.
Minden szoba klímával ellátva, télen alkalmi padlófűtés pluszban kapcsolható a nappaliban és a fürdőszobában.
Összes szoba elektromosan vezérelhető redőnnyel és szúnyoghálóval ellátott.

Védelemről a teljesen zárt terület gondoskodik, saját parkosított udvarral, minden irányból mágneskártyás kapukkal. Teremgarázs is van az épület alatt, igény szerint 3db külön megvásárolható a lakáshoz, így a lifteken keresztül akadálymentes a feljutás a lakásba.
A 3 darab parkolót egyben és külön is meg lehet vásárolni, de nem kötelező és nem tartozik bele a vételárba!
A parkolók vételára: 4.000.000,-Ft /db.
Vásárolható még az ingatlanhoz egy 20nm-es saját külön tároló is igény szerint, aminek a vételára: 4.000.000,-Ft

A lakás azonnal beköltözhető!
Parkolni az utcában, több oldalon is lehetséges.

Nagyon jó elhelyezkedés, gimnázium, iskola, óvoda, bölcsöde, bevásárló áruházak (0-24 is), Kormány hivatal, minden irányba buszmegálló, orvosi rendelők, sportpályák, sportcsarnok...stb

Hitelek, CSOK igénybe vehetőek.

Amennyiben először saját ingatlanát eladná azt kedvező feltételekkel tudom segíteni.

BANKFÜGGETLEN hitelcentrumunk minden elérhető bank és hitelintézet ajánlatát versenyezteti az Ön kedvéért, ráadásul DÍJMENTESEN.
A legjobb ajánlatokból végül Ön választhatja ki a nyertest.
Munkatársaink sokéves szakmai tapasztalattal várják Önt, előre egyeztetve akár a normál munkaidő után is.
Profi jogi háttér, energetikai tanúsítvány!

Jöjjön el nézze meg, tegyen ajánlatot.
F.Z. ...TOVÁBBI, TÖBBEZRES INGATLAN KÍNÁLAT: www.gdn-ingatlan.hu - GDN azonosító: 370693

Töltsd fel ingatlanhirdetésed ingyenesen!

Ingyenes hirdetésfeladás
Havi több mint egymillió ingatlankereső
Egyszerű és gyors hirdetésfeladás
Hirdetésfeladás
eladó
Fülöp ZoltánIngatlanreferens
+36 30...
iroda logo
GDN IngatlanhálózatIroda további hirdetései

Töltsd fel ingatlanhirdetésed ingyenesen!

Ingyenes hirdetésfeladás
Havi több mint egymillió ingatlankereső
Egyszerű és gyors hirdetésfeladás
Hirdetésfeladás
Bank360Bank360
Személyi kölcsön
Lakáshitel
Bankszámla
Utasbiztosítás
1 000 000 Ft50 000 000 Ft
6 hónap50 hónap