Ingatlan360 logo
  • Magánszemélyeknek
  • Közvetítőknek
  • Hirdetésfeladás
  • Árak és hirdetési lehetőségek
  • Mennyit ér az ingatlanom?
  • Ingatlan statisztikák

Eladó téglalakás Tiszavasvári

Tiszavasvári képe
15
Tiszavasvári 2. képe
Tiszavasvári 3. képe15
18 M Ft
264 706 Ft / m²
68m2
Alapterület
3
Szoba
Fix 3%-os Otthon Start lakáshitel
Szobák száma
3
Építés éve
1980
Ingatlan állapota
Átlagos
Emelet
3.
Parkolás
nincs megadva
Légkondicionáló
Nincs
Közös költség
nincs megadva
Fűtés
Távfűtés
Fal építési anyaga
Tégla
Lift
Nincs
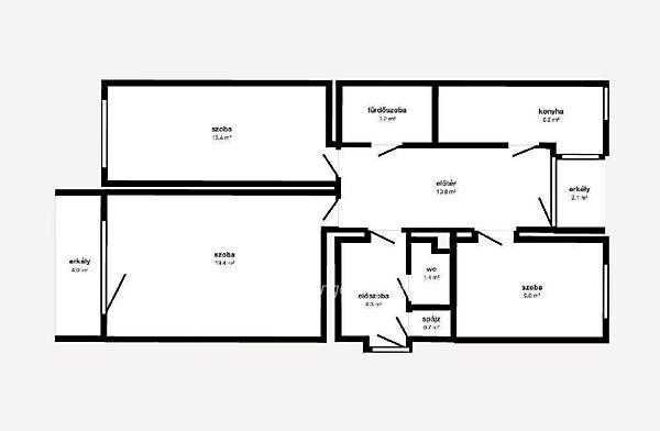
Az ingatlanról:
Eladó tágas 72 nm es 3 emeleti téglalakás Tiszavasváriban Tiszavasvári központjától néhány percre egy négyemeletes téglaépület 3 emeletén kínálunk eladásra egy karbantartott világos 72 nm es lakást Az ingatlan beton alapon épült tégla falazatú és központi radiátoros fűtéssel rendelkezik amely rendkívül kedvező rezsivel üzemel ? a téli hónapokban is tízezer forint alatt marad a fűtés költsége A keleti fekvésű lakás nyáron is kellemesen hűvös köszönhetően a ház előtt álló nagy árnyékot adó fáknak A környék csendes rendezett a városközpont üzletek óvoda és iskola mind pár perc sétára találhatók így ideális választás családok számára is OTP Banki hátterünknek köszönhetően finanszírozási igényekben pl Otthon Start Hitelprogram Babaváró Falusi CSOK CSOK Plusz Lakáshitel Személyi kölcsön stb illetve biztosítások tekintetében is díjmentesen soron kívüli ügyintézéssel segítem ügyfeleim Referenciaszám : M315013

Töltsd fel ingatlanhirdetésed ingyenesen!

Ingyenes hirdetésfeladás
Havi több mint egymillió ingatlankereső
Egyszerű és gyors hirdetésfeladás
Hirdetésfeladás
eladó
Kissné Orosz Ildikó KrisztinaIngatlanreferens
+36 20...
iroda logo
Nyíregyháza Bocskai utca 18-20 - OTP Ingatlanpont IrodaIroda további hirdetései

Töltsd fel ingatlanhirdetésed ingyenesen!

Ingyenes hirdetésfeladás
Havi több mint egymillió ingatlankereső
Egyszerű és gyors hirdetésfeladás
Hirdetésfeladás
Bank360Bank360
Személyi kölcsön
Lakáshitel
Bankszámla
Utasbiztosítás
1 000 000 Ft50 000 000 Ft
6 hónap50 hónap