Ingatlan360 logo
  • Magánszemélyeknek
  • Közvetítőknek
  • Hirdetésfeladás
  • Árak és hirdetési lehetőségek
  • Mennyit ér az ingatlanom?
  • Ingatlan statisztikák

Eladó téglalakás Vonyarcvashegy

Vonyarcvashegy képe
18
Vonyarcvashegy 2. képe
Vonyarcvashegy 3. képe18
34,9 M Ft
591 525 Ft / m²
59m2
Alapterület
2
Szoba
Fix 3%-os Otthon Start lakáshitel
Szobák száma
2
Építés éve
nincs megadva
Ingatlan állapota
Átlagos
Emelet
Földszint
Parkolás
nincs megadva
Légkondicionáló
Nincs
Közös költség
nincs megadva
Fűtés
Nincs
Fal építési anyaga
Tégla
Lift
nincs megadva
Az ingatlanról:
További információért látogasson el a Fundamenta Ingatlan oldalára!

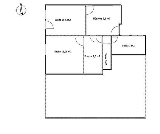
Vonyarcvashegy Rákóczi utcában lakás és hozzá tartozó udvarrész eladó !

A családi házas felépítmény 2 db , egymástól műszakilag elválasztott és használatában egymástól elkülönülő lakásból áll.

Az ingatlan jogilag rendezett, teher- és széljegymentes belterületi ingatlan, érvényes használati megállapodással.

Az egy szintből álló lakóházas felépítmény 59 m2 méretű önálló bejáratú lakását és a hozzá tartozó 107 m2 méretű telekrészt kínáljuk megvételre.

A lakás önálló mérőórákkal rendelkezik. Villany, víz és csatorna közművek vannak, gáz nincs bevezetve.

Az ingatlan felújítása megkezdődött, a befejezése az új lakó, az új tulajdonosok ízlése és igénye alapján folytatódhat.

Elhelyezkedése és mérete alapján kíváló választás lehet akár nyaralónak, vagy kisebb család lakhatására.

A Lido Strand 1,5 km távolságra, játszótér, és bevásárlási lehetőségek az utcában, pár perces sétára találhatóak az ingatlantól.

Amennyiben hirdetésem felkeltette az érdeklődését, várom megtisztelő hívását, megtekintés végett.

Töltsd fel ingatlanhirdetésed ingyenesen!

Ingyenes hirdetésfeladás
Havi több mint egymillió ingatlankereső
Egyszerű és gyors hirdetésfeladás
Hirdetésfeladás
eladó
Tóth TündeIngatlanreferens
+36 30...
iroda logo
Fundamenta IngatlanIroda további hirdetései

Töltsd fel ingatlanhirdetésed ingyenesen!

Ingyenes hirdetésfeladás
Havi több mint egymillió ingatlankereső
Egyszerű és gyors hirdetésfeladás
Hirdetésfeladás
Bank360Bank360
Személyi kölcsön
Lakáshitel
Bankszámla
Utasbiztosítás
1 000 000 Ft50 000 000 Ft
6 hónap50 hónap